Lipporannantie 5, 90500 Oulu

660€ / kk

2h,k,kh,las.parv,ap96

36.5㎡

Oulu, Lipporanta

Upealle paikalle Oulujokisuiston lähelle valmistunut As Oy Lipporannan Kuha! Hartaanselän ja meren läheisyys luovat viihtyisät puitteet laadukkaalle asumiselle kaupungin parhaimmilla paikoilla, modernilla uudella asuinalueella Länsi-Tuirassa. Tästä on hyvät kävely- ja pyörätiet kaupungin keskustaan, torille tai Toppilansaaren ulkoilu- ja virkistysalueelle. Löytyy luonnonläheisiä reittejä kävelysiltoineen ja vesistöineen. Alueella on erittäin monipuolisesti harrastusmahdollisuuksia.

Tämän kuudennen (6/6) kerroksen kaksion sisustusmateriaalit ovat tyylikästä vaaleaa värimaailmaa, valkoiset maalatut seinät ja lattiat puunväristä laminaattia. Keittiötilasta löytyy nykyaikainen koneistus: jääkaappipakastin, keraaminen liesi, erillisuuni ja astianpesukone. Kaakeloidussa kylpyhuoneessa on paikka omalle pyykinpesukoneelle ja kuivausrummulle. Lasitetulla parvekkeella puolestaan viihdyt pitkälle syksyyn saakka!

Taloyhtiöllä on pesutupa ja saunatilat, joihin on varattavissa vuoro erillismaksusta. Kellarissa ulkoiluvälinevarasto ja jokaiselle huoneistolle oma häkkivarasto. Lämmitys ja internetin perusnopeus sisältyvät vuokraan, vesimaksuennakkoa peritään vuokran yhteydessä 20€/hlö/kk. Asunnon mukana vuokrataan autopaikka autokannen alta hintaan 50€/kk.

Kotikatu365 tarjoaa asukkaiden käyttöön noin 500m2 yhteistilat, josta löytyvät mm olohuone, vierashuone, kuntosali, kokous- ja juhlatila, saunatilat, leikki- ja pelitila, it-työpisteet, seurusteluhuone ja aulatilat. Täällä voit lukaista päivän lehden, järjestää juhlat tai viettää aikaa seurustellen. Myös asukkaiden vieraat voivat majoittua yhteistilojen vierashuoneeseen. Palvelut kuuluu pääosin 17,80€/kk yhteispalvelumaksuun, joka maksetaan vuokran lisäksi, osasta palveluista peritään erilliskorvaus käytön mukaan (esim vierashuone). Taloyhtiöstä löytyy myös pesutupa, mikä on ilmainen.

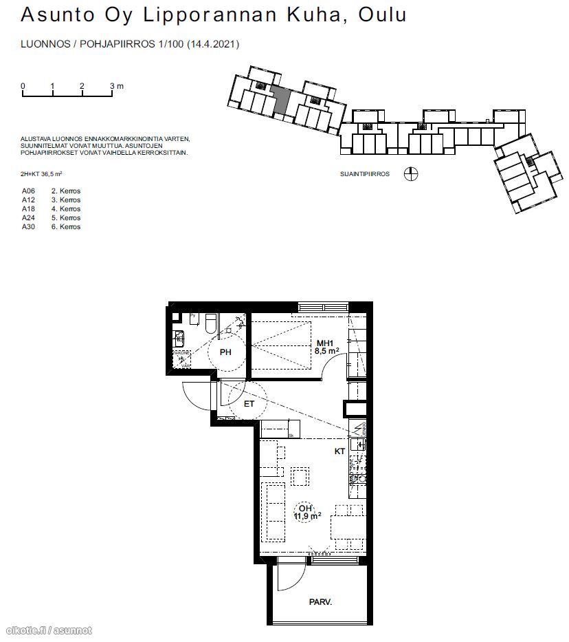
Hox! Pohjakuva oikea, muut kuvat vastaavasta asunnosta samasta talosta suuntaa antamaan!

-Vuokra 660€/kk
-Vakuus 660€
-Vesimaksuennakko 20€/hlö/kk
-Autohallipaikka 50€/kk
-Yhteiskäyttömaksu 17,80€/kk
-Vaaditaan puhtaat luottotiedot!

Vuokralaiselta edellytetään puhtaat luottotiedot, laaja kotivakuutus vastuuosineen sekä oma sähkösopimus. Sopimus on toistaiseksi voimassaoleva, 1kk irtisanomisajalla irtisanottavissa, mutta vuokrasuhteen kestäessä alle 12kk, sopimuksen irtisanoneen osapuolen tulee maksaa 1 kk:n vuokran suuruinen sopimussakko sopimuksen toiselle osapuolelle

Tämä upea koti on heti vapaa. Laita viestiä, soita p. 050 4667491 / Manu Saarikoski tai jätä yhteydenottopyyntö, käydään ihastelemassa paikan päällä!

Sijainti Lipporannantie 5, 90500 Oulu
Kaupunginosa Lipporanta
Asuinpinta-ala 36.5 m²
Huoneiston kokoonpano 2h,k,kh,las.parv,ap96
Huoneita 2
Kerros 6
Kunto Erinomainen
Parveke Kyllä
Asunnossa sauna Ei
Muut ehdot Vuokranmaksupäivä kk:n 5. päivä
Tilan pinta-ala 36.5m2
Asumistyyppi Vuokra

Vuokra 660€ / kk
Takuuvuokra 1kk:n vuokran suuruinen
Vesimaksu (teksti) Laskutetaan kulutuksen mukaisesti.Vesimaksuennakko 20,00 €.

Uudiskohde Ei
Valmistumisvuosi 2022
Talon tyyppi Kerrostalo
Kerroksia 6
Hissi Kyllä
Taloyhtiössä on sauna Ei
Energialuokka B2018
Energiatodistus Kyllä
Lisätietoja lämmityksestä K
Isännöinti Terwa

Pysäköintimaksu Kyllä

Kartalla

Ota yhteyttä kohteesta

Kohteen tiedot

Lipporannantie 5, 90500 Oulu
Välittäjä: Manu Saarikoski
Välittäjän numero: 050 466 7491
Toimipiste: Lumijoentie 1, 90400 Oulu
Yhteydenoton aihe

Vuokrattavat asunnot