Isokatu 87, 90120 Oulu

760€ / kk

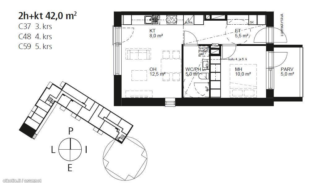
2h,kt,kh,parv

42㎡

Oulu, Heinäpää

Vapautuu 01.05.2026

Heinäpäähän 2019 valmistunut pyöreän Puistovahdin sivuun kerrostalo, josta vuokrattavana viihtyisä kaksio. Tästä on helppo siirtyä ydinkeskustan palvelujen ja kauppojen ääreen, lähistöltä löytyy myös Heinäpään viihtyisät liikunta- ja urheilualueet. Citybussin reitti kulkee myös läheltä, täältä kulkuyhteydet mm. yliopiston suuntaan ja koulukeskuksiin hyvät. Limingantullin kauppapalvelut myös kävelymatkan päässä.

Asunto on 4. kerroksesta, tilava ja valoisa kaksio. Huoneistojen seinät valkoisin maalipinnoin, lattiat lautaparkettia. Keittiötilan koneistus on nykyaikainen, jää/pakastinkaappi, astianpesukone ja liesi. Säilytys tilaakin on mukavasti. Kaakeloidussa, tilavassa kylpyhuoneessa on liitäntä pyykkikoneelle, myös lämmön talteenotto / ilmanvaihto on huonekohtainen. Asunnossa on oma viihtyisä parveke.

Kuvat toisesta vastaavalla pohjalla olevasta asunnosta.

-Vuokra 760€/kk
-Vakuus 760€
-Vesimaksuennakko 20€/kk/hlö
-sisältää lämmityksen ja taloyhtiölaajakaistan
-Vuokralainen ottaa oman kotivakuutuksen ja tekee käyttösähkösopimuksen
-Luottotiedot tarkistetaan

Tämä huoneisto hyvällä sijainnilla on 1.5. vapaa.

Jätä yhteydenottopyyntö tai soita arkisin klo 9-16.00 040 6734433 / Jarmo Lepistö

.

Sijainti Isokatu 87, 90120 Oulu
Kaupunginosa Heinäpää
Asuinpinta-ala 42 m²
Huoneiston kokoonpano 2h,kt,kh,parv
Huoneita 2
Kerros 4
Vapautuu 01.05.2026
Kunto Erinomainen
Parveke Kyllä
Asunnossa sauna Ei
Muut ehdot Vuokranmaksupäivä kk:n 5. päivä
Tilan pinta-ala 42m2
Asumistyyppi Vuokra

Vuokra 760€ / kk
Takuuvuokra 1kk:n vuokran suuruinen
Vesimaksu (teksti) Laskutetaan kulutuksen mukaisesti.Vesimaksuennakko 20,00 €.

Uudiskohde Ei
Valmistumisvuosi 2019
Talon tyyppi Kerrostalo
Kerroksia 5
Hissi Kyllä
Taloyhtiössä on sauna Ei
Energialuokka C2018
Energiatodistus Kyllä
Lisätietoja lämmityksestä K
Isännöinti Kiinteistötahkola 0207 480 200

Pysäköintimaksu Ei

Kartalla

Ota yhteyttä kohteesta

Kohteen tiedot

Isokatu 87, 90120 Oulu
Välittäjä: Jarmo Lepistö
Välittäjän numero: 040 6734433
Toimipiste: Lumijoentie 1, 90400 Oulu
Yhteydenoton aihe

Vuokrattavat asunnot