Oritkarintie 1 B, 90400 Oulu

22000€ / kk

Tuotantotila ja toimisto

2248㎡

Oulu, Oritkari

Vapautuu 01.01.2027

Vuokrataan tai myydään monien mahdollisuuksien tuotantotila Oritkarista.

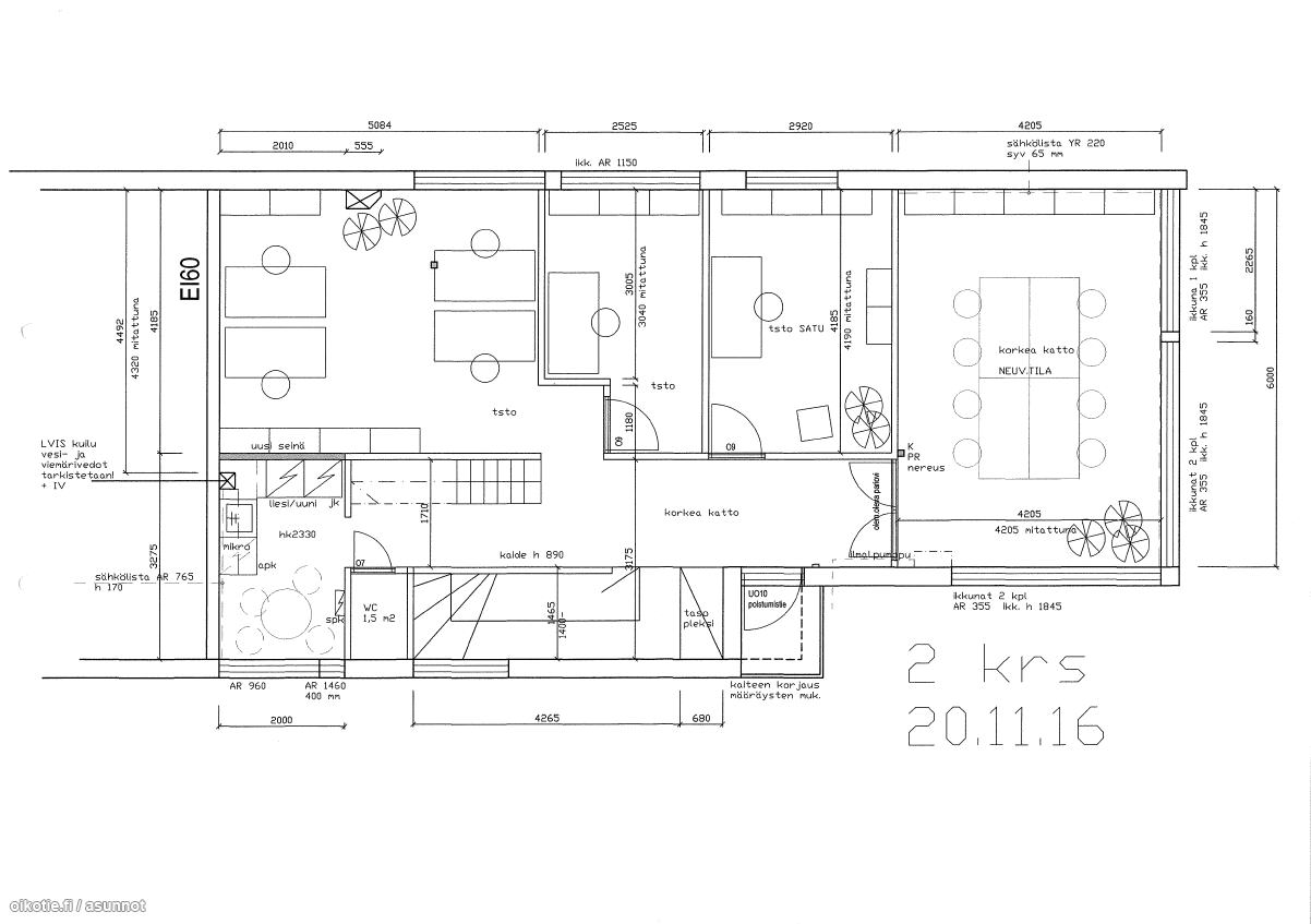
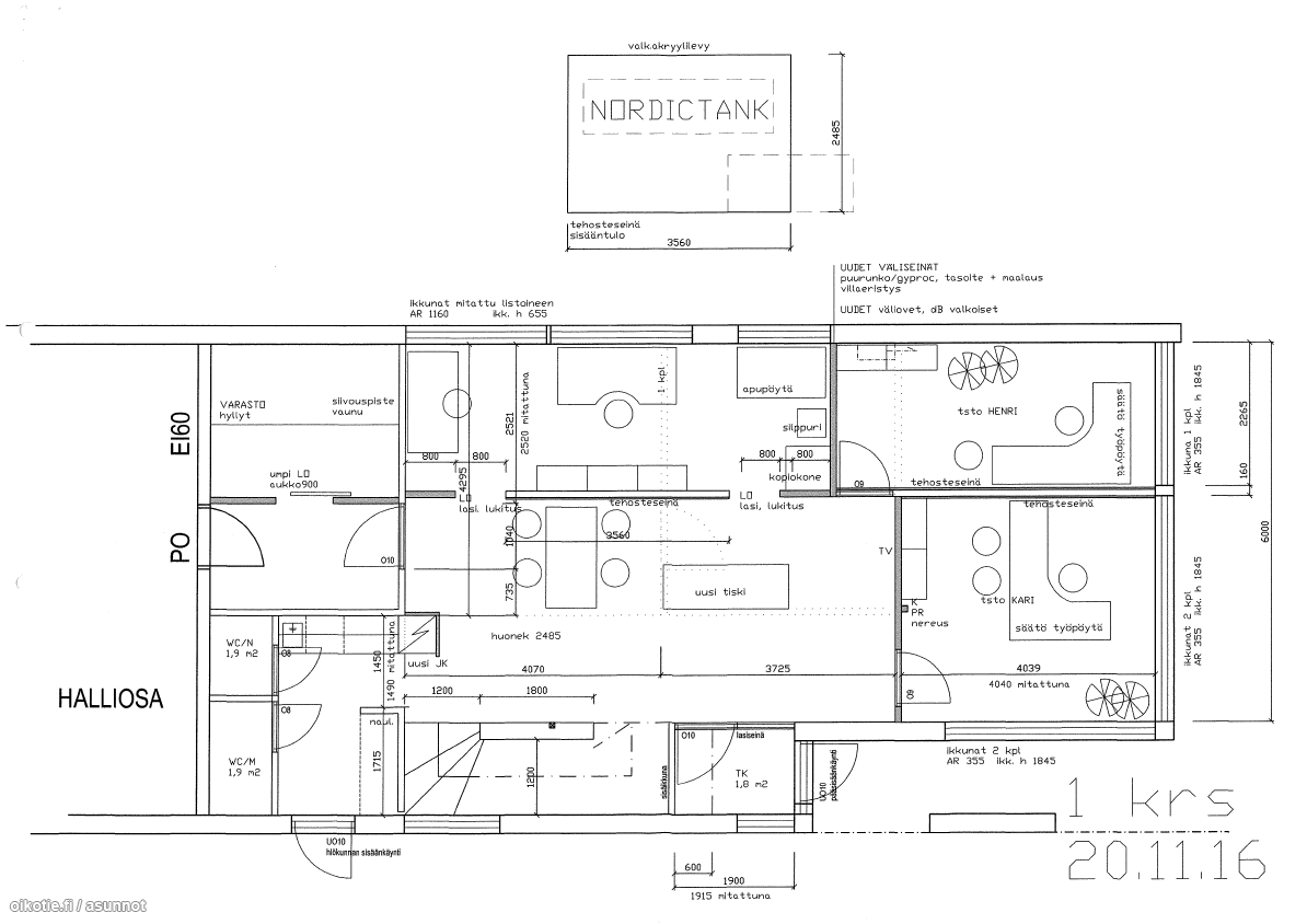
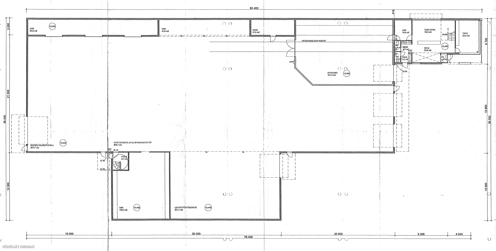
Tila koostuu noin 2000m2 läpiajettavasta tuotantotilasta, sekä reilu 200m2 toimistotilasta (neliömäärät kerrosaloja). Isolla yli hehtaarin tontilla on reilusti tilaa kalustolle ja tavaralle. Myös tontti on läpiajettava raskaallakin kalustolla. Siistit toimistotilat ovat kahdessa tasossa, jotka koostuvat eri kokoisista toimisto- ja neuvottelutiloista. Tuotantotilaan mahtuu sisälle kaksi raskaan kaluston yhdistelmään peräkkäin. Tuotantotiloissa on hyvä, uudistettu valaistus.

Kohde on kaukolämmössä. Sijainti on erinomaisten kulkuyhteyksien varrella ja moottoritielle on nopea yhteys.
Vuokra on 22.000€ +alv. Vuokralainen vastaa kohteen käyttökuluista.

Ota yhteyttä niin käydään tutustumassa!

Lisätiedot 040 5400 672 tai joni.romppainen@kiinteistotahkola.fi.

Kysy myös muita vaihtoehtojamme!

Sijainti Oritkarintie 1 B, 90400 Oulu
Kaupunginosa Oritkari
Asuinpinta-ala 2248 m²
Huoneiston kokoonpano Tuotantotila ja toimisto
Kerros 1
Vapautuu 01.01.2027
Kunto Erinomainen
Parveke Ei
Asunnossa sauna Ei
Muut ehdot Vuokranmaksupäivä kk:n 5. päivä
Tilan pinta-ala 2248m2
Asumistyyppi Liikekiinteistövaihto

Vuokra 22000€ / kk
Takuuvuokra sopimuksen mukaan

Uudiskohde Ei
Valmistumisvuosi 2003
Kerroksia 2
Hissi Ei
Taloyhtiössä on sauna Ei
Energiatodistus Ei
Lisätietoja lämmityksestä K

Pysäköintimaksu Ei

Kartalla

Ota yhteyttä kohteesta

Kohteen tiedot

Oritkarintie 1 B, 90400 Oulu
Välittäjä: Joni Romppainen
Välittäjän numero: 0405400672
Toimipiste: Lumijoentie 1, 90400 Oulu
Yhteydenoton aihe

Vuokrattavat toimitilat