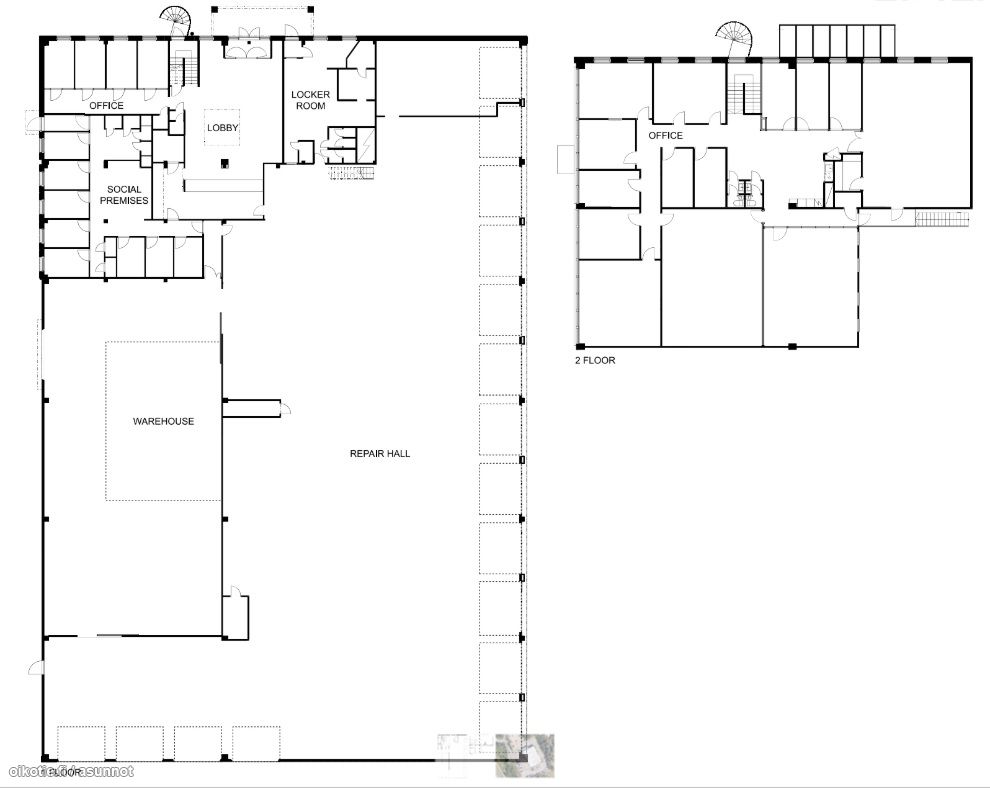
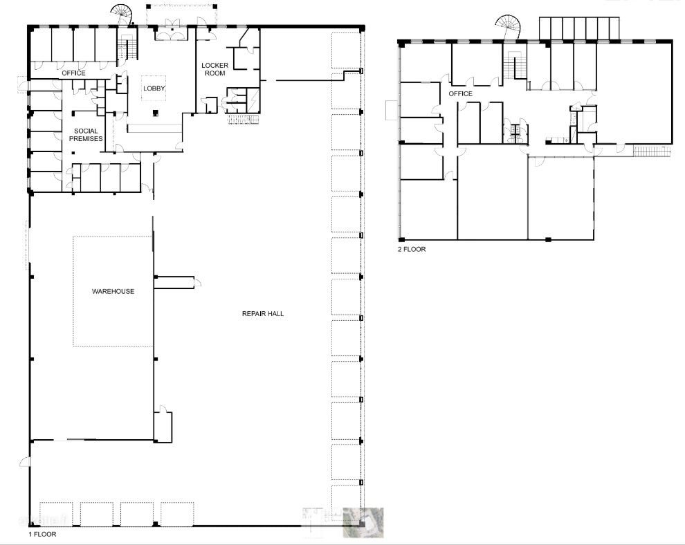
Koskelossa kehä 3:n varrella raskaan kaluston hallitilaa.
Useita nosto-ovia ja lastaus maan-tasa.
Isot tilavat piha-alueet.
Hallitilat jaettavissa.
Lisätiedot: Sami Tukiainen 0400 467 694 / sami.tukiainen@kiinteistotahkola.fi
| Sijainti | Kiilaniityntie 10, 02920 Espoo |
|---|---|
| Kaupunginosa | Koskelo |
| Asuinpinta-ala | 2413 m² |
| Parveke | Ei |
| Asunnossa sauna | Ei |
| Muut ehdot | Vuokranmaksupäivä kk:n 5. päivä |
| Tilan pinta-ala | 2413m2 |
| Asumistyyppi | Liikekiinteistövaihto |
| Takuuvuokra | 1kk:n vuokran suuruinen |
|---|
| Uudiskohde | Ei |
|---|---|
| Hissi | Ei |
| Taloyhtiössä on sauna | Ei |
| Energiatodistus | Ei |
| Lisätietoja lämmityksestä | K |
| Pysäköintimaksu | Ei |
|---|
Kartalla
Ota yhteyttä kohteesta
Kohteen tiedot
Kiilaniityntie 10, 02920 Espoo
Välittäjä:
Sami Tukiainen
Välittäjän numero:
0400 467 694
Toimipiste:
Itälahdenkatu 15-17, 00210 Helsinki