Ostomiehentie 13, 90420 Oulu

325.95€ / kk

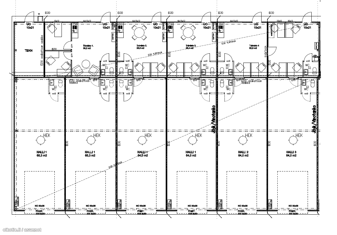
Uutta toimisto- ja hallitilaa

26.5㎡

Oulu, Metsokangas

Vapautuu 01.10.2026

Moottoritien varrelta Metsokankaalta vuokrataan monenlaiseen yritys- tai harrastustoimintaan soveltuvaa uutta toimitilaa. Erinomaiselle sijainnille sijoittuvasta kokonaisuudesta on vuokrattavana toimisto- ja hallitliaa. Tilaratkaisut ja -varustelut ovat muokattavissa tarpeen mukaan sopivaksi. Tilojen mukana on mahdollista vuokrata myös pihatilaa, ja isolle asfalttipihalle pääsee isommallakin ajoneuvolla.

Sijainti on erittäin hyvä, sillä paikalle on helppo tulla ja vältät kaupungin ruuhkat. Yhteydet ovat nopeat joka puolelle kaupunkia, ja Kaakkurin sekä Oulunportin kattavat palvelut ovat lähellä. Kohteessa on myös mahdollisuus moottoritielle näkyvälle valomainokselle.

Tilat ovat kaukolämmössä vesikiertoisella lattialämmityksellä. Lämmitys kuuluu vuokraan, vuokran lisäksi maksetaan käyttösähköstä ja vedestä kulutuksen mukaan.

Hallitiloissa on voimavirta, viemärivaraukset, LED -valaistus, pinnoitettu lattia, lattiakaivo, vesipiste ja sähköinen nosto-ovi. Toimistotiloihin voidaan toteuttaa varustelut tarpeen mukaan.

Ole yhteydessä, niin käydään tutustumassa!

Lisätiedot 040 5400 672 tai joni.romppainen@kiinteistotahkola.fi

Sijainti Ostomiehentie 13, 90420 Oulu
Kaupunginosa Metsokangas
Asuinpinta-ala 26.5 m²
Huoneiston kokoonpano Uutta toimisto- ja hallitilaa
Kerros 1
Vapautuu 01.10.2026
Kunto Uusi
Parveke Ei
Asunnossa sauna Ei
Muut ehdot Vuokranmaksupäivä kk:n 5. päivä
Tilan pinta-ala 26.5m2
Asumistyyppi Liikekiinteistövaihto

Vuokra 325.95€ / kk
Takuuvuokra sopimuksen mukaan
Vesimaksu (teksti) Laskutetaan kulutuksen mukaisesti.

Uudiskohde Kyllä
Valmistumisvuosi 2025
Kerroksia 1
Hissi Ei
Taloyhtiössä on sauna Ei
Energiatodistus Ei
Lisätietoja lämmityksestä K

Pysäköintimaksu Ei

Kartalla

Ota yhteyttä kohteesta

Kohteen tiedot

Ostomiehentie 13, 90420 Oulu
Välittäjä: Joni Romppainen
Välittäjän numero: 0405400672
Toimipiste: Lumijoentie 1, 90400 Oulu
Yhteydenoton aihe

Vuokrattavat toimitilat