Kasarmintie 8, 90100 Oulu

795€ / kk

2h,kt,kh,sa,las.parv,ahp

56㎡

Oulu, Myllytulli

Vapautuu 01.05.2026

Näitä on todella harvoin tarjolla! Todella viihtyisässä, upeassa puutarhamaisessa Ainolan Portissa, tilava kaksio vuokrattavana.

Talon erikoisuutena sisäpihan talvipuutarha, joka luo rauhallisen ja viihtyisän olohuoneen kaikkien käyttöön. Tältä sisäpihalta löytyy myös pienimuotoinen kuntosali sekä ns. kerhohuonenurkkaus. Talon välittömässä läheisyydessä löytyy mm. kaunis Ainolanpuisto, ravintola Tuba ja Oulun Taidemuseo. Linja-autopysäkki kävelymatkan päässä. Alueen hyvät pyörä- ja kävelytiet palvelevat aktiivista liikkujaa.

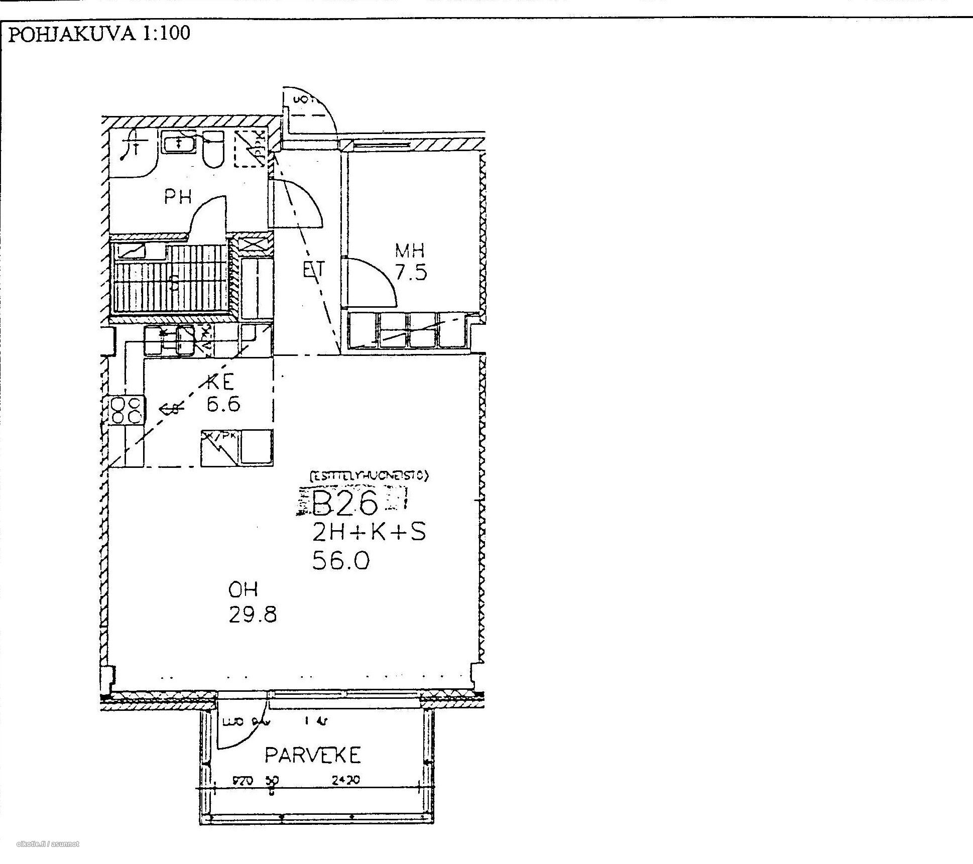
Tässä toisen (2/4) kerroksen tilavassa kaksiossa on lasitettu parveke Ainolanpuistoon päin. Lattiat parkettia ja seinät maalipinnoin. Keittiön varusteluna jääkaappipakastin, astianpesukone, uuni/liesi ja kivasti kaappitilaa. Kylpyhuoneessa liitännät pyykinpesukoneelle sekä arjen luksus, oma sauna!

Taloyhtiöstä löytyy häkkivarastot ja pyörävarasto. Kysy tarvittaessa autohallipaikkaa kellarikerroksen autohallista hintaan 100€/kk! Ei lemmikkejä.

-Vuokra 795€/kk
-Vakuus 795€
-Vesiennakkomaksu 15€/hlö/kk
-Kysy tarvittaessa autopaikkaa
-Sisältää lämmityksen ja taloyhtiölaajakaistan
-Vuokralainen tekee oman käyttösähkösopimuksen ja ottaa laajan kotivakuutuksen vastuuosineen
-Vaaditaan puhtaat luottotiedot!

Tämä ihana asunto on 1.5.2026 vapaa. Laita viestiä, soita p. 050 322 5811 / Tiia Kukko tai jätä yhteydenottopyyntö, käydään ihastelemassa paikan päällä!

Sijainti Kasarmintie 8, 90100 Oulu
Kaupunginosa Myllytulli
Asuinpinta-ala 56 m²
Huoneiston kokoonpano 2h,kt,kh,sa,las.parv,ahp
Huoneita 2
Kerros 2
Vapautuu 01.05.2026
Kunto Erinomainen
Parveke Kyllä
Asunnossa sauna Kyllä
Muut ehdot Vuokranmaksupäivä kk:n 5. päivä
Tilan pinta-ala 56m2
Asumistyyppi Vuokra

Vuokra 795€ / kk
Takuuvuokra 1kk:n vuokran suuruinen
Vesimaksu (teksti) Laskutetaan kulutuksen mukaisesti.Vesimaksuennakko 15,00 €.

Uudiskohde Ei
Valmistumisvuosi 1996
Talon tyyppi Kerrostalo
Kerroksia 4
Hissi Kyllä
Taloyhtiössä on sauna Ei
Energiatodistus Ei
Lisätietoja lämmityksestä K
Isännöinti OIT 08 4152 5000

Pysäköintimaksu Kyllä

Kartalla

Ota yhteyttä kohteesta

Kohteen tiedot

Kasarmintie 8, 90100 Oulu
Välittäjä: Tiia Kukko
Välittäjän numero: 0503225811
Toimipiste: Lumijoentie 1, 90400 Oulu
Yhteydenoton aihe

Vuokrattavat asunnot