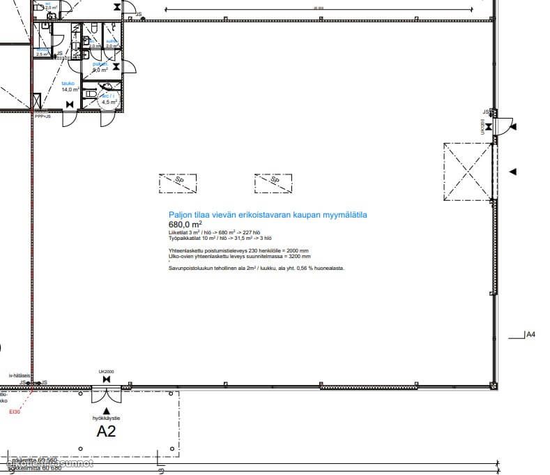
Vapautumassa vuokrattavaksi 1.5.2026 alkaen näyttävä liiketila. Toimitila on katutasossa ja se sisältää pienet sosiaalitilat. Tilassa on nosto-ovi sekä erillinen sisäänkäynti. Kohteella on pihatilaa runsaasti. Toimitila soveltuu hyvin showroom/liiketilakäyttöön, varastoksi tai pientuotannon käyttöön.
Kysy lisää
Niklas Sivula 050 472 8090 niklas.sivula@kiinteistotahkola.fi
Jani Kaisto 040 960 6424 jani.kaisto@kiinteistotahkola.fi
| Sijainti | Autokeskuksentie 12, 33960 Pirkkala |
|---|---|
| Kaupunginosa | Linnakallio |
| Asuinpinta-ala | 735 m² |
| Huoneiston kokoonpano | Liiketila |
| Kunto | Erinomainen |
| Parveke | Ei |
| Asunnossa sauna | Ei |
| Muut ehdot | Vuokranmaksupäivä kk:n 5. päivä |
| Tilan pinta-ala | 735m2 |
| Asumistyyppi | Liikekiinteistövaihto |
| Takuuvuokra | 1kk:n vuokran suuruinen |
|---|---|
| Vesimaksu (teksti) | Laskutetaan kulutuksen mukaisesti. |
| Uudiskohde | Ei |
|---|---|
| Hissi | Ei |
| Taloyhtiössä on sauna | Ei |
| Energiatodistus | Ei |
| Lisätietoja lämmityksestä | K |
| Pysäköintimaksu | Ei |
|---|
Kartalla
Ota yhteyttä kohteesta
Kohteen tiedot
Autokeskuksentie 12, 33960 Pirkkala
Välittäjä:
Niklas Sivula
Välittäjän numero:
050 472 8090
Toimipiste:
Kuokkamaantie 4, 33800 Tampere