Palolankuja 4, 90630 Oulu

Myyntihinta 585 000 €

Velaton hinta 585 000 €

599㎡

Oulu, Rusko

Vapautuu 01.09.2026

Myydään Ruskosta hallitila tilavalla tontilla!

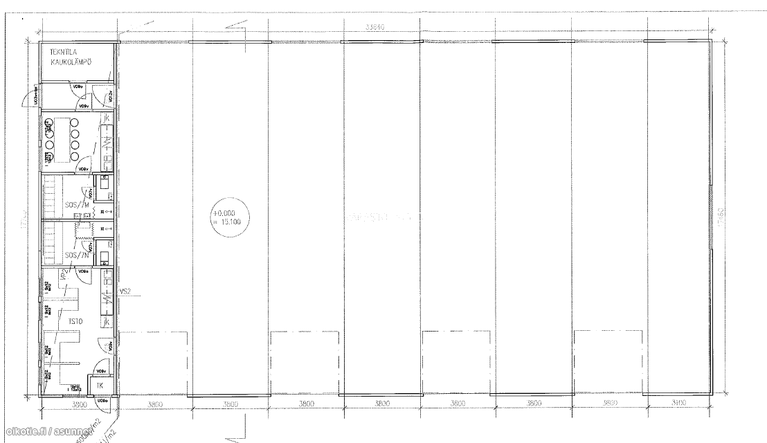
Tila jakautuu korkeaan hallitilaan, jonka yhteydessä on toimisto-/sosiaalitilat. Halliin on neljä isoa, sähkötoimista nosto-ovea sekä käyntiovet. Lattia on betonipinnalla, ja lattiakaivoja useita. Ympäri aidatulla pihalla on reilusti tilaa kalustolle ja tavaran säilytykseen. Piha-alue on pääosin asfaltoitu ja tontille on avattava portti.

Tilan lämmitys on toteutettu maalämmöllä (lämpöpuhaltimet), lisäksi on 2kpl ilmalämpöpumppuja. Toimisto-osassa on sähkölämmitys.
Tilat vapautuvat käyttöön 1.9.2026 mennessä. Tästä toimivat tilat omaksi reilulla pihatilalla!

Esittelyt ja lisätiedot:
Joni Romppainen
040 5400 672
joni.romppainen@kiinteistotahkola.fi

Sijainti Palolankuja 4, 90630 Oulu
Kaupunginosa Rusko
Asuinpinta-ala 599 m²
Pinta-alojen lisätiedot Kohteen kerrosala on 599m2
Vapautuu 01.09.2026
Parveke Ei
Asunnossa sauna Ei
Tilan pinta-ala 599m2
Asumistyyppi Liikekiinteistömyynti
Kohde on Kiinteistö

Myyntihinta 585 000 €
Velaton hinta 585 000€

Uudiskohde Ei
Hissi Ei
Taloyhtiössä on sauna Ei
Energialuokka Ei lain edellyttämää energiatodistusta
Energiatodistus Ei
Tontin omistus Vuokrattu
Onko osuus lunastettu Ei
Tontin koko 2785m2
Maan vuokraaja Oulun kaupunki
Kaavoitustiedot Asemakaava

Kartalla

Ota yhteyttä kohteesta

Kohteen tiedot

Palolankuja 4, 90630 Oulu
Välittäjä: Joni Romppainen
Välittäjän numero: +358405400672
Toimipiste: Lumijoentie 1, 90400 Oulu
Yhteydenoton aihe

Myytävät toimitilat