Monikäyttöistä ja modernia toimistotilaa keskeisellä sijainnilla.
Helsingin Lassilanlinna on täysin uudistettu kiinteistö jossa tilat, piha-alue ja koko kiinteistö peruskorjattu uutta vastaavaksi. Alueella erinomaiset kulkuyhteydet autolla ja julkisilla. Autopaikkoja tarjolla runsaasti pysäköintihallista.
Monikäyttöistä toimistotilaa kahdessa kerroksessa (300m2 – 1000m2). ´
Lisätiedot ja näytöt valtteri.mauno@kiinteistotahkola.fi tai 040 3500 442
| Sijainti | Sentnerikuja 2, 00440 Helsinki |
|---|---|
| Kaupunginosa | Lassila |
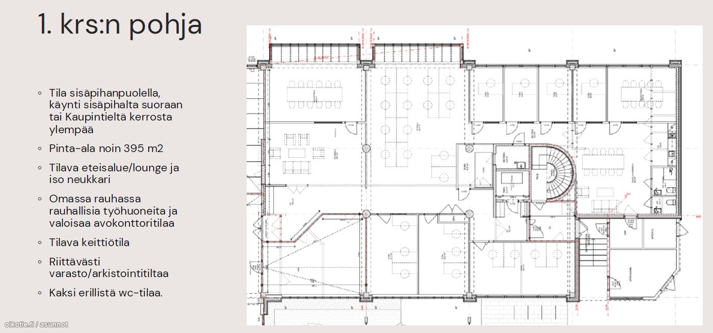
| Asuinpinta-ala | 395 m² |
| Kunto | Uusi |
| Parveke | Ei |
| Asunnossa sauna | Ei |
| Muut ehdot | Vuokranmaksupäivä kk:n 5. päivä |
| Tilan pinta-ala | 395m2 |
| Asumistyyppi | Liikekiinteistövaihto |
| Takuuvuokra | 1kk:n vuokran suuruinen |
|---|
| Uudiskohde | Ei |
|---|---|
| Hissi | Kyllä |
| Taloyhtiössä on sauna | Ei |
| Energialuokka | B2018 |
| Energiatodistus | Kyllä |
| Lisätietoja lämmityksestä | K |
| Pysäköintimaksu | Ei |
|---|
Kartalla
Ota yhteyttä kohteesta
Kohteen tiedot
Sentnerikuja 2, 00440 Helsinki
Välittäjä:
Kiinteistötahkola Helsinki
Välittäjän numero:
0401580999
Toimipiste:
Itälahdenkatu 15-17, 00210 Helsinki