Gneissikuja 3, 90620 Oulu

5200€ / kk

Tuotanto- ja toimistotilaa

633㎡

Oulu, Takalaanila

Vapautuu 01.03.2026

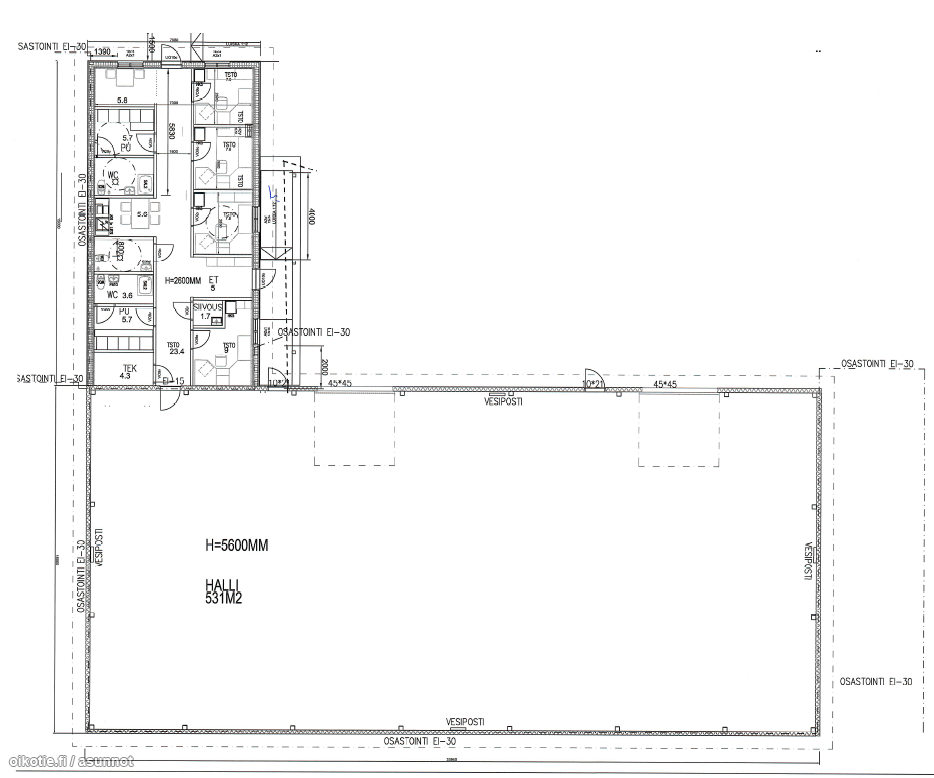
Vuokrataan erinomaiselta sijainnilta korkeaa tuotantotilaa ja toimistotilaa.

2013 valmistunut kohde on kaukolämmössä. Tilat jakautuvat noin 531m2 tuotantotilaan ja noin 102m2 toimistotilaan. Tuotantotiloihin on kaksi isoa nosto-ovea, ja hallitiloista pääsee suoraan toimistosiipeen. Tuotantotilassa on hyvä valaistus, lattiakaivot, oma taukotila sekä WC. Tiloissa on paineilmaverkosto valmiina. Toimisto-osassa on 3 erillistä, toimistohuonetta, keittiö- ja taukotila, pukuhuone, pesuhuone sekä vessat.

Tontti on omassa käytössä kokonaan, joten pihallekin mahtuu tavaraa ja logistiikka toimii. Lämmitys sisältyy edulliseen vuokraan, lisäksi maksetaan käyttösähköstä ja vedestä. Tässä mahdollisuus monenlaiseen toimintaan!

Lisätiedot 040 5400 672 tai joni.romppainen@kiinteistotahkola.fi.

Kysy myös muita vaihtoehtojamme!

Sijainti Gneissikuja 3, 90620 Oulu
Kaupunginosa Takalaanila
Asuinpinta-ala 633 m²
Huoneiston kokoonpano Tuotanto- ja toimistotilaa
Kerros 1
Vapautuu 01.03.2026
Kunto Erinomainen
Parveke Ei
Asunnossa sauna Ei
Muut ehdot Vuokranmaksupäivä kk:n 5. päivä
Tilan pinta-ala 633m2
Asumistyyppi Liikekiinteistövaihto

Vuokra 5200€ / kk
Takuuvuokra sopimuksen mukaan
Vesimaksu (teksti) Laskutetaan kulutuksen mukaisesti.

Uudiskohde Ei
Valmistumisvuosi 2013
Kerroksia 1
Hissi Ei
Taloyhtiössä on sauna Ei
Energiatodistus Ei
Lisätietoja lämmityksestä K

Pysäköintimaksu Ei

Kartalla

Ota yhteyttä kohteesta

Kohteen tiedot

Gneissikuja 3, 90620 Oulu
Välittäjä: Joni Romppainen
Välittäjän numero: 0405400672
Toimipiste: Lumijoentie 1, 90400 Oulu
Yhteydenoton aihe

Vuokrattavat toimitilat