Telinetie 7, 33880 Lempäälä

Halli + toimisto + pihatila

507㎡

Lempäälä, Uusi-Eurooppa

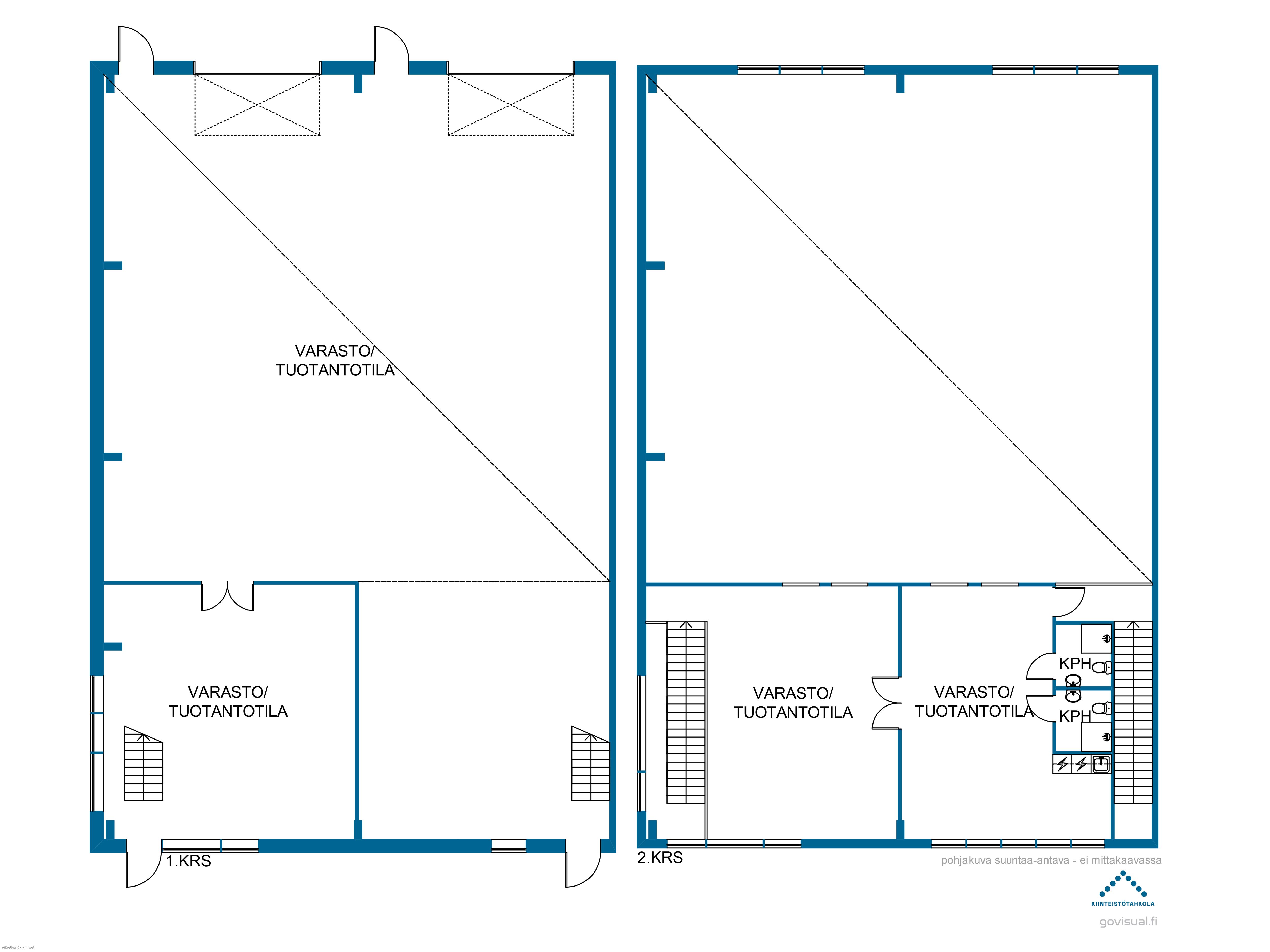
Modernia ja edustavaa toimitilaa Lempäälässä, aivan Tampereen tuntumassa ja noin 10 km kaupungin keskustasta. Kokonaispinta-ala on 507,5 m², josta noin 317 m² on hallitilaa, alakerran ikkunallista showroom tilaa noin 60m² ja toisen kerroksen toimistotilat käsittävät noin 127 m². Tila sijaitsee rakennuksen päädyssä, ja suuret näyteikkunat sopivat erinomaisesti esimerkiksi showroom-käyttöön.

Hallitila on korkea ja varustettu vesikiertoisella lattialämmityksellä. Sähkökäyttöiset nosto-ovet helpottavat toimintaa. Lämmitys sekä toisen kerroksen tilojen jäähdytys toteutetaan maalämmöllä, ja ne sisältyvät vuokraan samoin kuin kiinteistön huolto. Kiinteistöllä on tilava yhteiskäyttöinen, asfaltoitu piha-alue. Lisäksi on mahdollista yhdistää viereisiä tiloja suuremman kokonaisuuden muodostamiseksi – kysy lisätietoja.

Sijainti Telinetie 7, 33880 Lempäälä
Kaupunginosa Uusi-Eurooppa
Asuinpinta-ala 507 m²
Huoneiston kokoonpano Halli + toimisto + pihatila
Kerros 1
Kunto Uusi
Parveke Ei
Asunnossa sauna Ei
Muut ehdot Vuokranmaksupäivä kk:n 5. päivä
Tilan pinta-ala 507m2
Asumistyyppi Liikekiinteistövaihto

Takuuvuokra 1kk:n vuokran suuruinen
Vesimaksu (teksti) Laskutetaan kulutuksen mukaisesti.

Uudiskohde Ei
Valmistumisvuosi 2025
Kerroksia 1
Hissi Ei
Taloyhtiössä on sauna Ei
Energialuokka A2018
Energiatodistus Kyllä
Lisätietoja lämmityksestä K

Pysäköintimaksu Kyllä

Kartalla

Ota yhteyttä kohteesta

Kohteen tiedot

Telinetie 7, 33880 Lempäälä
Välittäjä: Jani Kaisto
Välittäjän numero: 040 960 6424
Toimipiste: Kuokkamaantie 4, 33800 Tampere
Yhteydenoton aihe

Vuokrattavat toimitilat