Rautatienkatu 81, 90400 Oulu

8750€ / kk

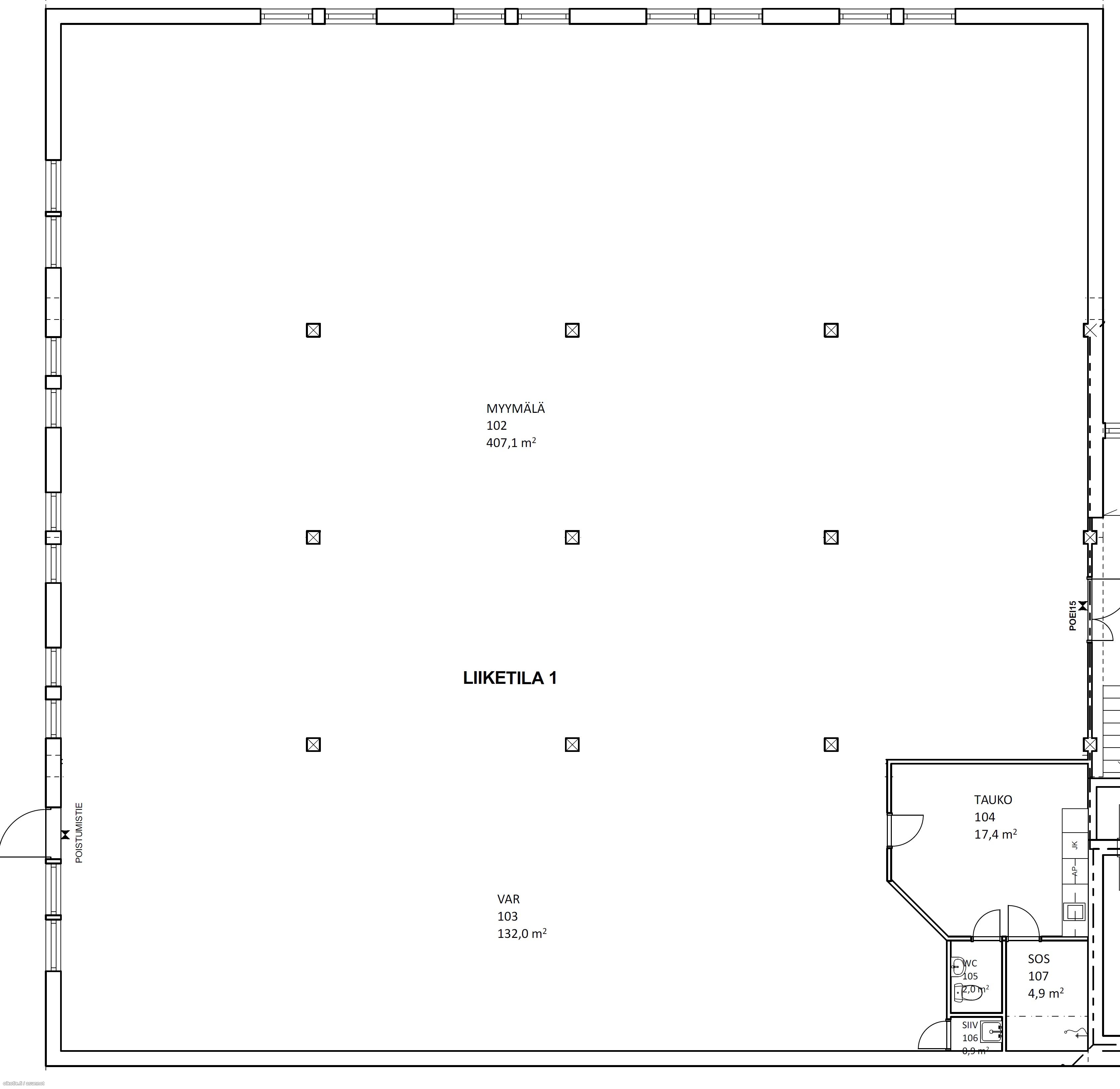
Remontoitu toimisto/liiketila

565㎡

Oulu, Limingantulli

Vapautuu 01.02.2027

Huippupaikalla Limingantien ja Rautatienkadun kulmauksessa näkyvä liiketila. Näkyvyyttä saa myös talon mainospylonista. Tilat uusittiin sisältä muutama vuosi sitten tehdyssä kattavassa remontissa täydellisesti ja myös rakennuksen julkisivut, katto ja ikkunat uusittiin.

Tilaa on mahdollista muokata mm. pohjaratkaisun osalta tarpeitanne sopivaksi. Käytössänne on tarvittaessa tilasuunnittelija ja remontin toteuttaja, minkä ansiosta muuttaminen on helppoa!

Millainen alue Limingantulli on?

Limingantie on yksi keskustaan johtavista pääväylistä, jonka vuoksi ilmaista näkyvyyttä on tarjolla. Ohitse ajaa keskimäärin 18 000 autoa päivittäin ja lisäksi runsaat määrät pyöräilijöitä ja jalankulkijoita. Kaupunginosa on kävelymatkan päässä keskustasta ja keskustan ohella kaupungin tärkein kauppapaikka. Lähiympäristössä sijaitsee mm. XXL, Power, Prisma, Gigantti, Alasintien liikekeskus ja paljon eri alojen erikoisliikkeitä. Tämän parempaa paikkaa on siis vaikea löytää.

Muuta tärkeää tietoa tilasta

– Tilassa oma koneellinen ilmanvaihto ja jäähdytys.
– Autopaikkoja vuokrattavissa 8kpl pihalta ja 2kpl parkkihallista.
– Tilan vuokra on 8750 €/kk + alv. Vesimaksut ja sähkö erilliskorvauksena.
– Vapautuminen 1.2.2027

Kysy lisätietoja tai sovi esittelystä!

Eikö tämä ole sopiva? Kysy muita vaihtoehtojamme!

Sijainti Rautatienkatu 81, 90400 Oulu
Kaupunginosa Limingantulli
Asuinpinta-ala 565 m²
Huoneiston kokoonpano Remontoitu toimisto/liiketila
Kerros 1
Vapautuu 01.02.2027
Kunto Erinomainen
Parveke Ei
Asunnossa sauna Ei
Muut ehdot Vuokranmaksupäivä kk:n 5. päivä
Tilan pinta-ala 565m2
Asumistyyppi Liikekiinteistövaihto

Vuokra 8750€ / kk
Takuuvuokra 3kk:n vuokran suuruinen

Uudiskohde Ei
Valmistumisvuosi 1990
Kerroksia 2
Hissi Ei
Taloyhtiössä on sauna Ei
Energialuokka H
Energiatodistus Kyllä
Lisätietoja lämmityksestä K
Isännöinti Retta

Pysäköintimaksu Ei

Kartalla

Ota yhteyttä kohteesta

Kohteen tiedot

Rautatienkatu 81, 90400 Oulu
Välittäjä: Henri Huotari
Välittäjän numero: 0405418854
Toimipiste: Lumijoentie 1, 90400 Oulu
Yhteydenoton aihe

Vuokrattavat toimitilat