Vanhantullinkatu 4, 90100 Oulu

2180€ / kk

Siistiä toimistotilaa

125㎡

Oulu, Keskusta

Vuokrataan erittäin siistiä toimistotilaa Oulun Keskusta-alueelta likeltä Etu-Lyöttyä.

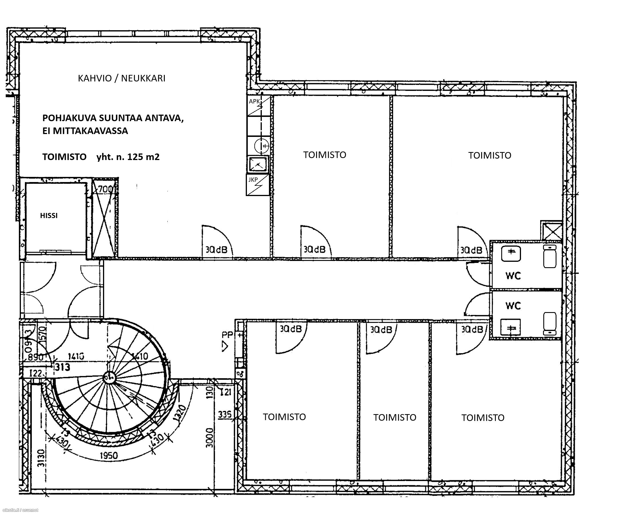
Tilat ovat todella siistit ja koostuu käytävän ja kahden wc:n lisäksi kuudesta äänieristetyllä ovella varustetusta tilasta. Tiloista viisi palvelee paremmin toimisto-/vastaanottokäytössä, lisäksi on yksi isompi tila, josta löytyy keittiökalustus ja toimittaa mm. kahvion ja neukkarin virkaa.

Tiloissa on koneellinen ilmanvaihto, valokuitu, tehokas led-valaistus, tiloissa myös valvontavalmius ja hissi kulkee toimiston sisäänkäynnin vierestä, tilaan on esteetön pääsy.

Lisäksi talon kellarista on vuokrattavissa varastotilaa. Erilliset sosiaalitilat ovat myös vuokralaisen käytettävissä talon kellarikerroksessa. Autopaikkoja löytyy sisäpihalta ja tarvittaeessa viereisestä autohallista, varmista saatavuus.

Tilan vuokra on 2180,00 €/kk + alv. Vuokra sisältää lämmityksen.
Vuokran lisäksi vuokralainen vastaa erilliskorvaukena vedestä kulutuksen mukaan ja tekee oman sähkösopimuksen. Myös jätemaksu erilliskorvauksena.

Tila on heti vapaa, joten tässä on loistava tilaisuus aloittaa toiminta nopeallakin aikataululla!

Esittelyt ja lisätiedot:
Sami Kortesoja, 0458964803
sami.kortesoja@kiinteistotahkola.fi

Ole yhteydessä ja kysy lisää!

Eikö tämä ole sopiva? Kysy muita vaihtoehtojamme!

Sijainti Vanhantullinkatu 4, 90100 Oulu
Kaupunginosa Keskusta
Asuinpinta-ala 125 m²
Huoneiston kokoonpano Siistiä toimistotilaa
Kerros 3
Kunto Erinomainen
Parveke Ei
Asunnossa sauna Ei
Muut ehdot Vuokranmaksupäivä kk:n 5. päivä
Tilan pinta-ala 125m2
Asumistyyppi Liikekiinteistövaihto

Vuokra 2180€ / kk
Takuuvuokra 3kk:n vuokran suuruinen

Uudiskohde Ei
Kerroksia 5
Hissi Kyllä
Taloyhtiössä on sauna Ei
Energiatodistus Ei
Lisätietoja lämmityksestä K

Pysäköintimaksu Kyllä

Kartalla

Ota yhteyttä kohteesta

Kohteen tiedot

Vanhantullinkatu 4, 90100 Oulu
Välittäjä: Sami Kortesoja
Välittäjän numero: 045 896 4803
Toimipiste: Lumijoentie 1, 90400 Oulu
Yhteydenoton aihe

Vuokrattavat toimitilat