Lipporannantie 5, 90500 Oulu

51 870€

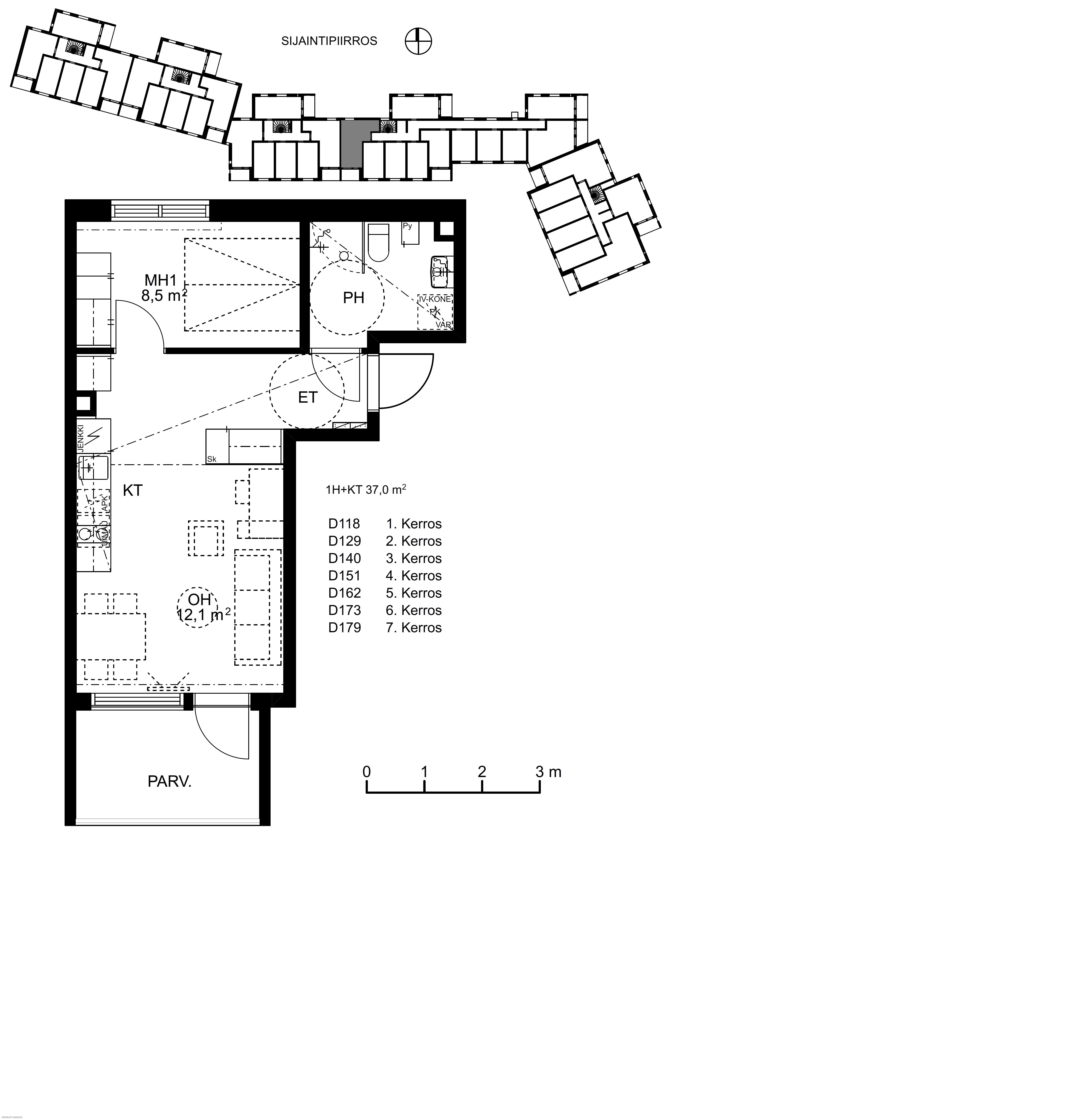
2h,kt,kh,las.parv.

37㎡

Oulu,

Vapautuu 31.12.2025

Myydään Asunto Oy Lipporannan Taimen, Oulu -nimisestä yhtiöstä 4.kerroksen valoisa läpitalon kaksio lasitetulla parvekkeella. Oman kodin etsijät, ensiasunnon ostajat ja sijoittajat! Tässä nyt mahdollisuus hankkia oma koti upealta paikalta tai tuottava sijoitusasunto. Huoneisto vapautuu viimeistään 31.12.2025, mahdollisesti jo 15.12.

Lisäksi mahdollisuus ostaa autohallipaikka viereisestä Koy Lipporannan Parkki pysäköintihallista. Autopaikan velaton hinta 6 900,00 euroa.

Alueena Lipporanta on kasvava, merellinen ja viihtyisä – lähellä Nallikarin hiekkarannat, Nallisportin liikuntakeskus. Oulujoen suistoalueella on hienot ulkoilumahdollisuudet. Lähellä myös Tuiran palvelut. Tästä on näppärät ja helpot yhteydet jalan, pyöräillen, julkisin tai autoillen niin keskustaan kuin yliopistollekin.

Asuntoon valittu laadukkaat nykyaikaiset materiaalit, lattiat laminaattia ja seinät maalipinnoin. Keittiössä Topi Keittiön kiintokalusteet ja varusteluna mm. keraaminen liesi + uuni, jää/pakastinkaappi, astianpesukone sekä tilavaraus mikroaaltouunille. Kaakeloidusta kylpyhuoneesta löytyy tilavaraus pyykinpesukoneelle. Huoneistossa nykyaikainen koneellinen tulo- ja poistoilmanvaihto, joka varustettu lämmöntalteenotolla.

Taloyhtiöstä löytyy yhteiskäyttövälineitä sekä kattavat yhteiset tilat. Yhtiöllä mm. yhteiskäyttöauto ja -polkupyöriä, kuntosali, olohuone, vierashuone, leikkitila ja työtiloja, sekä saunatilat.

Soita ja sovi esittely!
Myyntiä hoitaa:
Juha Kortesoja
0400677400
juha.kortesoja@kiinteistotahkola.fi

Sijainti Lipporannantie 5, 90500 Oulu
Asuinpinta-ala 37 m²
Kokonaispinta-ala 37m2
Pinta-alojen lisätiedot Yhtiöjärjestyksen mukainen, Isännöitsijäntodistuksen mukainen
Huoneiston kokoonpano 2h,kt,kh,las.parv.
Huoneita 2
Kerros 4
Vapautuu 31.12.2025
Kunto Erinomainen
Parveke Kyllä
Tehdyt remontit

2023 Lämmityksen tasapainotus (kuului rakentamisurakkaan)
2023 Vuositarkastuksen ennakkotarkastus (C-D raput)

Asunnossa sauna Ei
Tilan pinta-ala 37m2
Asumistyyppi Omistus
Kohde on Osakehuoneisto

Myyntihinta 51 870 €
Neliöhinta 3 432.43 € /m²
Velaton hinta 127 000€
Rahoitusvastike 395.9€ / kk
Hoitovastike 177.6€ / kk
Yhtiövastike yhteensä 573.5€ / kk
Vesimaksu (teksti) Kulutuksen mukaan, ennakkomaksu. 20 € / hlö / kk
Muut kustannukset Tietoliikenneyhteysmaksu: 1,90 € / kk. Muu maksu - Yhteistilojen käyttömaksu: 17,88 € / kk. Lisätietoa velkaosuudesta: Lainan viimeinen maksupäivä 30.5.2047. Euribor 12kk + 1,20%-yks..

Uudiskohde Ei
Valmistumisvuosi 2022
Talon tyyppi Kerrostalo
Kerroksia 7
Hissi Kyllä
Taloyhtiössä on sauna Kyllä
Energialuokka B2018
Energiatodistus Ei
Lisätietoja lämmityksestä Lämmitystapa: Kaukolämpö. Lämmönjakotapa: Vesikiertoinen patterilämmitys. Lisätietoa asunnon lämmityksestä: Kylpyhuoneessa ja wc:ssä mukavuuslattialämmitys
Isännöinti Isännöintitoimisto Isännöintipalvelu Terwa Oy Tarkka-ampujankatu 14 L 7 90120 Oulu Isännöitsijä Helena Pöykiö 0447448693
Taloyhtiön nimi Asunto Oy Lipporannan Taimen, Oulu
Rakennusmateriaali Pääasiallinen rakennusmateriaali: Betoni
Kattotyyppi Tasakatto
Kattomateriaali Huopakate
Tontin omistus Vuokrattu
Onko osuus lunastettu Ei
Tontin koko 6103m2
Maan vuokraaja Oulun Kaupunki
Kiinteistön hoito Huoltoyhtiö. Huoltia Oy
Kaavoitustiedot Asemakaava

Kartalla

Ota yhteyttä kohteesta

Kohteen tiedot

Lipporannantie 5, 90500 Oulu
Välittäjä: Juha Kortesoja
Välittäjän numero: +358400677400
Toimipiste: Lumijoentie 1, 90400 Oulu
Yhteydenoton aihe

Myytävät asunnot