Vihikari 10, 90440 Kempele

Toimistotilaa

131㎡

Kempele, Kempele

Vapautuu 01.04.2026

Kempeleen Vihikarista Lentokentäntien varresta vuokrattavana erinomaiset toimistotilat!

Tilat ovat loistavalla sijainnilla hyvien kulkuyhteyksien ja kattavien palveluiden läheisyydessä.
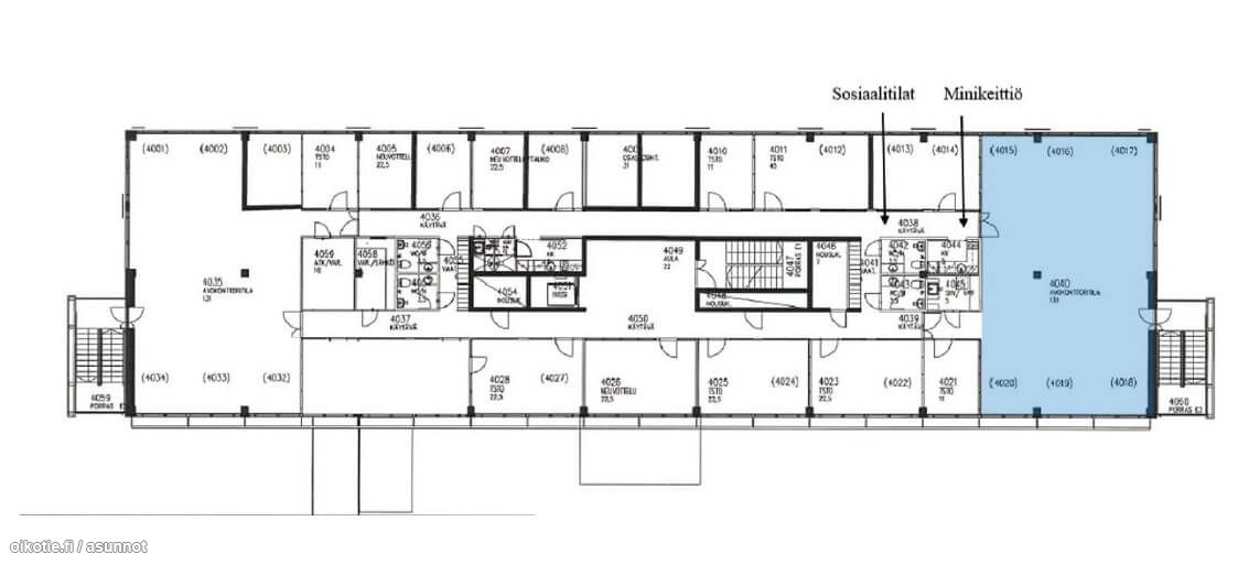
Omien toimistotilojen lisäksi kiinteistössä on aulapalvelu, lounasravintola ja neuvottelutilat saunaosastoineen.

Kiinteistön piha-alueelta löytyy myös hyvin pysäköintitilaa isompaankin tarpeeseen..

Vuokra 2416,95 €/kk + alv.
Vuokra sisältää pääomavuokran sekä ylläpitovuokran.

Tässä on loistava tilaisuus vuokrata viihtyisät tilat näyttävästä talosta huippusijainnilta!

Vihikari 10 kiinteistöstä on vuokrattavana toimitiloja pienemmästä 11 m2 varastotilasta 1555 m2 toimistokokonaisuuteen asti.
Kiinteistöstä löytyy myös vuokrattavaa tuotantotilaa.

Ole yhteydessä ja kysy lisää!

Eikö tämä ole sopiva? Kysy muita vaihtoehtojamme!

Sijainti Vihikari 10, 90440 Kempele
Kaupunginosa Kempele
Asuinpinta-ala 131 m²
Huoneiston kokoonpano Toimistotilaa
Kerros 4
Vapautuu 01.04.2026
Kunto Erinomainen
Parveke Ei
Asunnossa sauna Ei
Muut ehdot Vuokranmaksupäivä kk:n 5. päivä
Tilan pinta-ala 131m2
Asumistyyppi Liikekiinteistövaihto

Takuuvuokra 3kk:n vuokran suuruinen

Uudiskohde Ei
Valmistumisvuosi 2000
Kerroksia 6
Hissi Kyllä
Taloyhtiössä on sauna Ei
Energiatodistus Ei
Lisätietoja lämmityksestä K

Pysäköintimaksu Ei

Kartalla

Ota yhteyttä kohteesta

Kohteen tiedot

Vihikari 10, 90440 Kempele
Välittäjä: Sami Kortesoja
Välittäjän numero: 045 896 4803
Toimipiste: Lumijoentie 1, 90400 Oulu
Yhteydenoton aihe

Vuokrattavat toimitilat