Limingantullista vuokrattavana jäähdytettyä toisen kerroksen toimistotilaa!
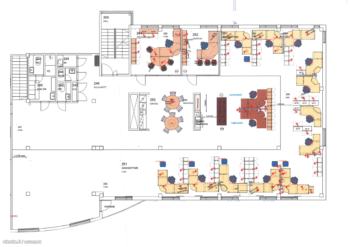
Tila on pääosin avotoimistoa. Tilassa on isompi neukkari, ruokailutila sekä yksi erillinen toimistohuone. Lisäksi on sosiaalitilat, suihku ja 3 wc:tä. Pintoja ja mm. keittiökalusteet on uusittu ajan saatossa. Tilassa on koneellinen ilmanvaihto ja jäähdytys. Autopaikkoja on saatavilla, lisäksi pysäköintipaikkoja mm. kadun varressa.
Vuokra toimistotilalle on 8,40€/m2 +alv sisältäen lämmityksen. Sähköstä ja vedestä maksetaan kulutuksen mukaan. Tila on vapautettavissa pian uuden vuokralaisen käyttöön.
Ole yhteydessä ja järjestetään esittely!
Eikö tämä ole sopiva? Kysy muita vaihtoehtojamme!
| Sijainti | Kempeleentie 7, 90400 Oulu |
|---|---|
| Kaupunginosa | Limingantulli |
| Asuinpinta-ala | 372 m² |
| Huoneiston kokoonpano | Toimistotilaa |
| Kerros | 2 |
| Vapautuu | 01.12.2025 |
| Kunto | Erinomainen |
| Parveke | Ei |
| Asunnossa sauna | Ei |
| Muut ehdot | Vuokranmaksupäivä kk:n 5. päivä |
| Tilan pinta-ala | 372m2 |
| Asumistyyppi | Liikekiinteistövaihto |
| Vuokra | 3124.8€ / kk |
|---|---|
| Takuuvuokra | sopimuksen mukaan |
| Vesimaksu (teksti) | Laskutetaan kulutuksen mukaisesti. |
| Uudiskohde | Ei |
|---|---|
| Valmistumisvuosi | 1992 |
| Kerroksia | 2 |
| Hissi | Ei |
| Taloyhtiössä on sauna | Ei |
| Energiatodistus | Ei |
| Lisätietoja lämmityksestä | K |
| Isännöinti | Kiinteistötahkola |
| Pysäköintimaksu | Kyllä |
|---|
Kartalla
Ota yhteyttä kohteesta
Kohteen tiedot
Kempeleentie 7, 90400 Oulu
Välittäjä:
Joni Romppainen
Välittäjän numero:
0405400672
Toimipiste:
Lumijoentie 1, 90400 Oulu