Teknologiantie 11, 90590 Oulu

2720€ / kk

Siistiä toimistotilaa

272㎡

Oulu, Teknologiakylä

Tilava ja edullinen toimisto tarjolla Teknologiakylästä.

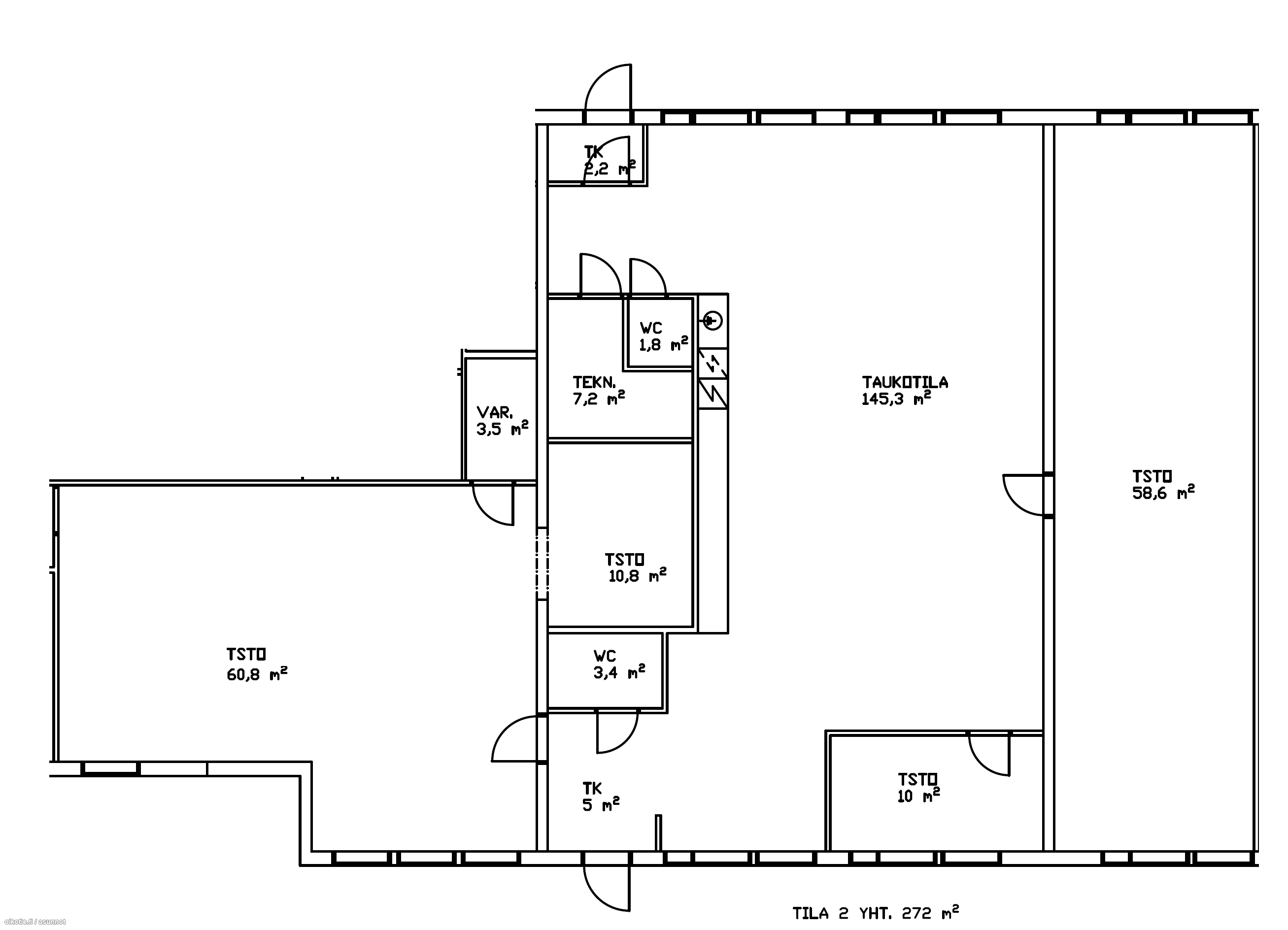
Siisti toimistotila on jaettu taukotilaa lukuun ottamatta osiin. Tiloista 58,6m2 tila on jaettu neljään osaan lasiseinäkkeillä, jotka ovat helposti purettavissa. Taukotilan yhteydessä on 10m2 toimistohuone, kaksi vessaa sekä pieni varastokoppi. Toisessa vessassa suihkukaappi. Tiloissa on koneellinen ilmanvaihto ja viilennys, valokuituverkko ja hyvä valaistus. Lämmitystolpallisia autopaikkoja löytyy pihasta mukavasti. Tila on mahdollista jakaa kahteen osaan, jotka kooltaan 194m2 ja 78m2.

Edullinen vuokra sisältää lämmityksen, veden ja kiinteistöhuollon. Käyttösähköstä maksetaan kulutusperusteinen sähkövastike.

Lisätiedot 040 5400 672 tai joni.romppainen@kiinteistotahkola.fi.

Eikö tämä ole sopiva? Kysy muita vaihtoehtojamme!

Sijainti Teknologiantie 11, 90590 Oulu
Kaupunginosa Teknologiakylä
Asuinpinta-ala 272 m²
Huoneiston kokoonpano Siistiä toimistotilaa
Kerros 1
Kunto Erinomainen
Parveke Ei
Asunnossa sauna Ei
Muut ehdot Vuokranmaksupäivä kk:n 5. päivä
Tilan pinta-ala 272m2
Asumistyyppi Liikekiinteistövaihto

Vuokra 2720€ / kk
Takuuvuokra sopimuksen mukaan
Vesimaksu (teksti) Laskutetaan kulutuksen mukaisesti.

Uudiskohde Ei
Kerroksia 1
Hissi Ei
Taloyhtiössä on sauna Ei
Energiatodistus Ei
Lisätietoja lämmityksestä K

Pysäköintimaksu Kyllä

Kartalla

Ota yhteyttä kohteesta

Kohteen tiedot

Teknologiantie 11, 90590 Oulu
Välittäjä: Joni Romppainen
Välittäjän numero: 0405400672
Toimipiste: Lumijoentie 1, 90400 Oulu
Yhteydenoton aihe

Vuokrattavat toimitilat