Professorintie 9, 90440 Kempele

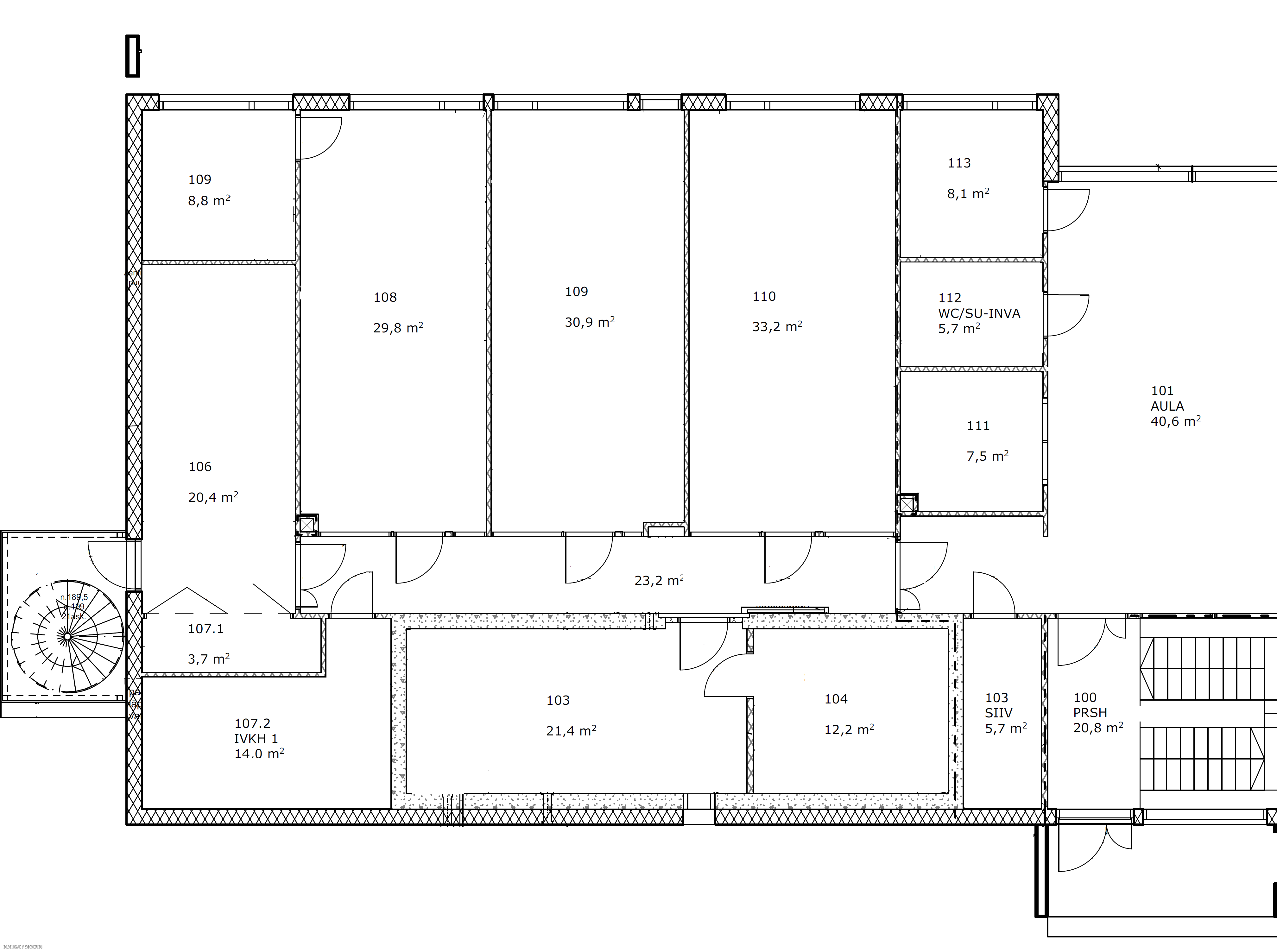
Toimisto- / laboratoriotilaa

286㎡

Kempele, Vihiluoto

Vapautuu 01.09.2026

Näkyvältä paikalta vuokrataan laadukasta tilaa, joka soveltuu mm. toimisto- tai laboratoriokäyttöön.

Tila on varusteltu jäähdytyksellä ja talossa on tehokas ilmanvaihto. Tila koostuu eri kokoisista työhuoneista ja -tiloista, muutostöitä voidaan toteuttaa. Myös vesilinjoja ja sähköä on hyvin käytettävissä. Tila sijaitsee katutasossa, joten tavaran tuonti ja lähetys on helppoa. Lämmitys on maalämmössä joka kuuluu vuokraan. Tiloissa on sähkölukot ja kulunvalvonta. Autopaikkoja on mukavasti pihalla, tarvittaessa myös katospaikkoja järjestettävissä. Tarvittaessa tila on mahdollista jakaa kahteen osaan.

Lentokentäntien varrella yrityksesi näkyvyys on taattu ja paikalle on helppo tulla. Kulkuyhteydet ovat erinomaiset, sillä Oulun keskustaan ajaa vartissa, lentokentälle reilu 5 minuutissa sekä hyvä bussiyhteys kulkee Lentokentäntietä. Alueella toimii paljon yrityksiä ja lounaspaikkoja on lähellä.

Tilat soveltuvat ja ovat muokattavissa hyvin monenlaiseen käyttöön. Myös halli-/tuotantotilaa voi tiedustella vuokrattavaksi samassa yhteydessä. Olethan yhteydessä niin käydään katsomassa tiloja!

Lisätiedot 040 5400 672 tai joni.romppainen@kiinteistotahkola.fi.

Eikö tämä ole sopiva? Kysy muita vaihtoehtojamme!

Sijainti Professorintie 9, 90440 Kempele
Kaupunginosa Vihiluoto
Asuinpinta-ala 286 m²
Huoneiston kokoonpano Toimisto- / laboratoriotilaa
Kerros 1
Vapautuu 01.09.2026
Kunto Erinomainen
Parveke Ei
Asunnossa sauna Ei
Muut ehdot Vuokranmaksupäivä kk:n 5. päivä
Tilan pinta-ala 286m2
Asumistyyppi Liikekiinteistövaihto

Takuuvuokra sopimuksen mukaan
Vesimaksu (teksti) Laskutetaan kulutuksen mukaisesti.

Uudiskohde Ei
Valmistumisvuosi 2019
Kerroksia 2
Hissi Ei
Taloyhtiössä on sauna Ei
Energiatodistus Ei
Lisätietoja lämmityksestä K

Pysäköintimaksu Ei

Kartalla

Ota yhteyttä kohteesta

Kohteen tiedot

Professorintie 9, 90440 Kempele
Välittäjä: Joni Romppainen
Välittäjän numero: 0405400672
Toimipiste: Lumijoentie 1, 90400 Oulu
Yhteydenoton aihe

Vuokrattavat toimitilat