VUOKRATAAN HALLITILAA NURMIJÄRVELTÄ!
Vapaa heti!
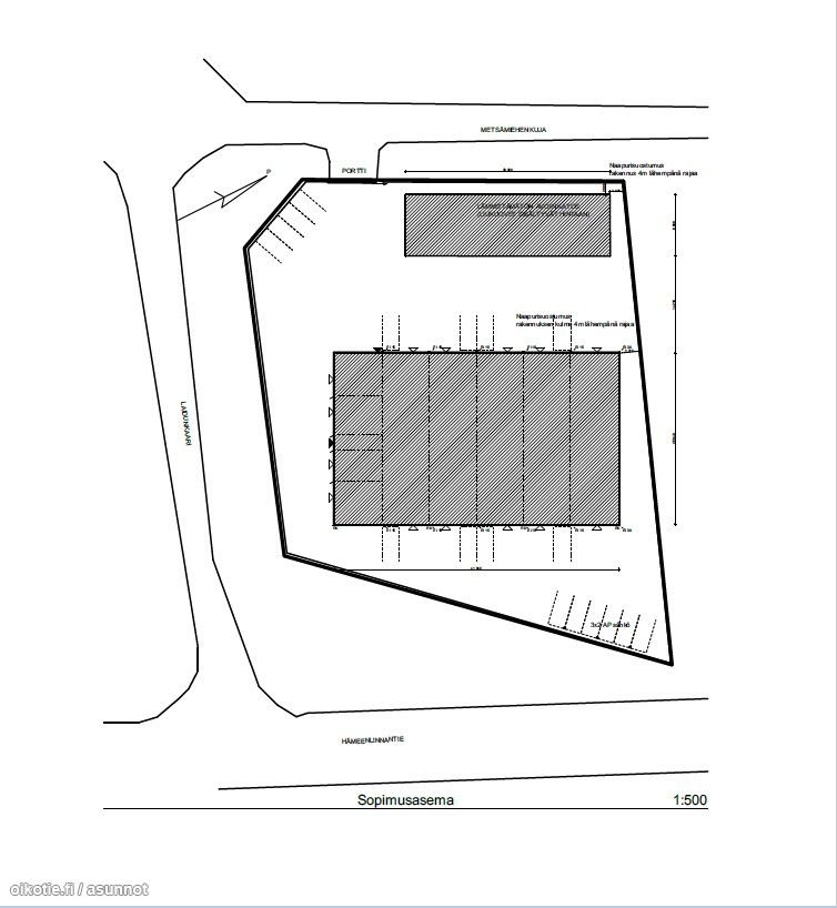
Nurmijärvellä metsämiehenkujalla hyvien kulkuyhteyksien varrella vuokrattavana hallitila.
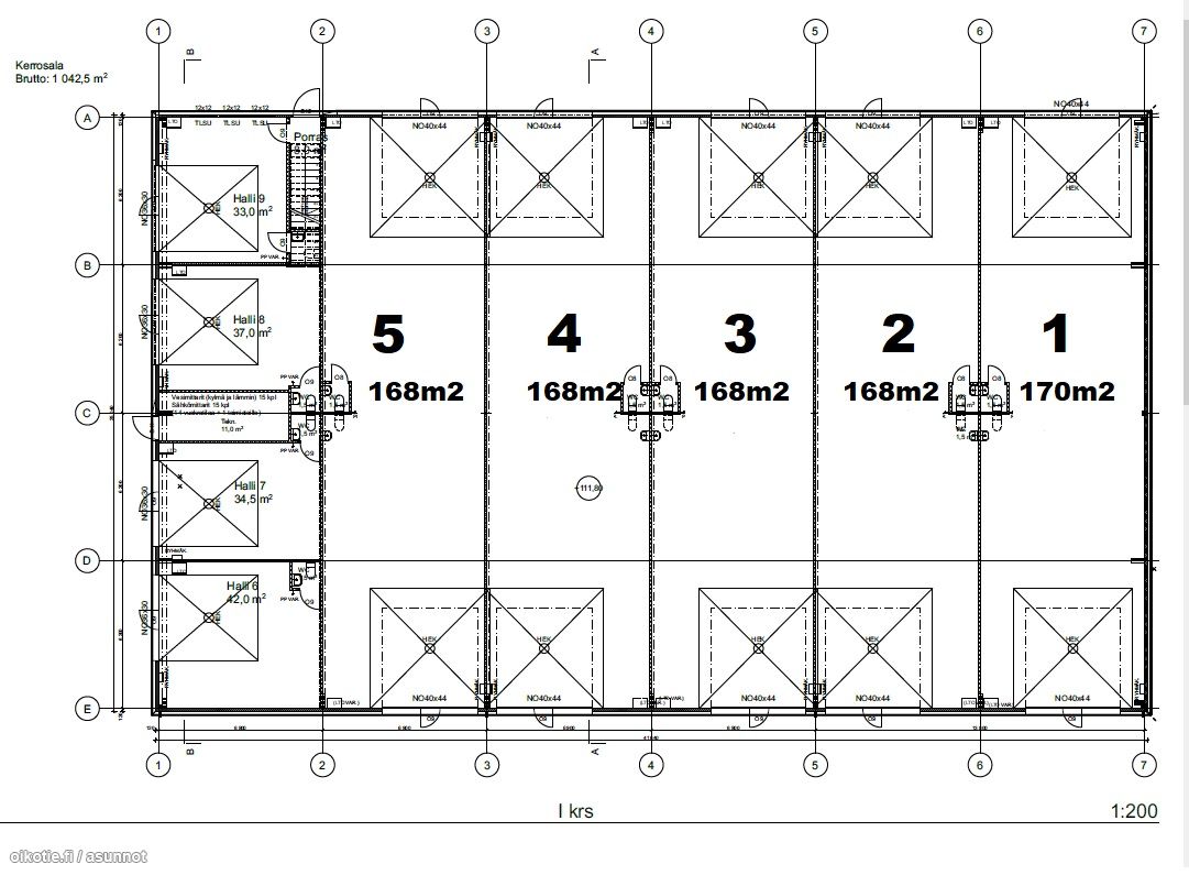
Hallin vapaa korkeus noin 6 metriä.
Tilat ovat asfaltoidulla ja aidatulla tontilla.
Hallien varustelu mm: wc, maalämpö, internet-yhteys, kylmä ja lämmin vesi, valaistus, moottoroidut nosto-ovet, öljyn-ja hiekanerotuskaivot, kameravalvonta, masterpop-pinnoitettu lattia, voimavirta.
Sopiii monenlaiseen käyttöön.
Kysy Lisää!
Sampo Ylikulju
040 354 1771
sampo.ylikulju@kiinteistotahkola.fi
| Sijainti | Metsämiehenkuja 1, 01900 Nurmijärvi |
|---|---|
| Kaupunginosa | Nurmijärvi |
| Asuinpinta-ala | 85 m² |
| Kerros | 1 |
| Kunto | Uusi |
| Parveke | Ei |
| Asunnossa sauna | Ei |
| Muut ehdot | Vuokranmaksupäivä kk:n 5. päivä |
| Tilan pinta-ala | 85m2 |
| Asumistyyppi | Liikekiinteistövaihto |
| Takuuvuokra | 2kk:n vuokran suuruinen |
|---|
| Uudiskohde | Kyllä |
|---|---|
| Valmistumisvuosi | 2022 |
| Kerroksia | 1 |
| Hissi | Ei |
| Taloyhtiössä on sauna | Ei |
| Energiatodistus | Ei |
| Lisätietoja lämmityksestä | K |
| Pysäköintimaksu | Ei |
|---|
Kartalla
Ota yhteyttä kohteesta
Kohteen tiedot
Metsämiehenkuja 1, 01900 Nurmijärvi
Välittäjä:
Sampo Ylikulju
Välittäjän numero:
040 354 1771
Toimipiste:
Itälahdenkatu 15-17, 00210 Helsinki