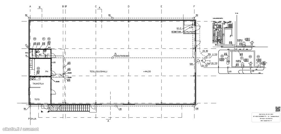
Haapaniitynkadulla Keravalla juuri valmistunut 450m2 halli. Hallista löytyy mm 3 * nosto-ovi, lattiakaivo, voimavirta jne.
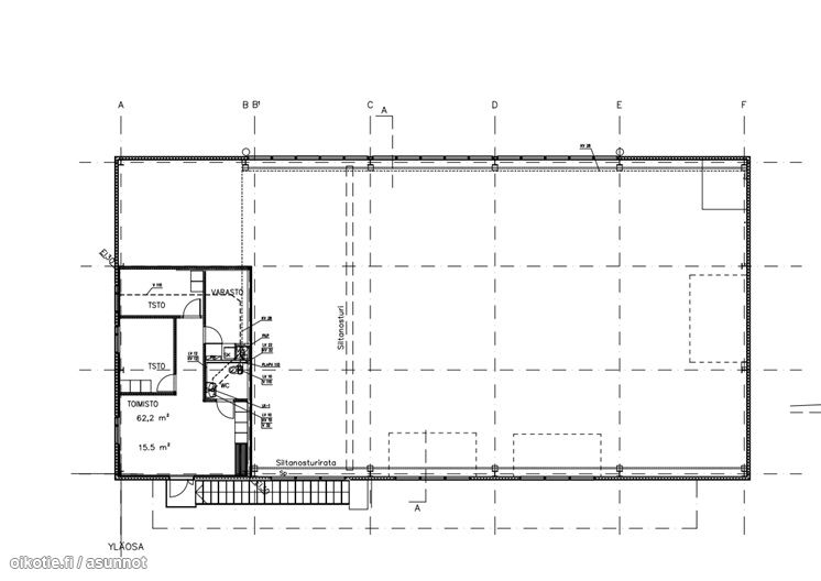
Halli sopii monenlaiseen käyttöön. Korkeutta noin 8 metriä ja sinne on mahdollista asentaa 10 tonnin siltanosturi.
Lisätiedot. Sampo Ylikulju 040 354 1771 tai sampo.ylikulju@kiinteistotahkola.fi
| Sijainti | Haapaniitynkatu 8, 04230 Kerava |
|---|---|
| Kaupunginosa | Pihkaniitty |
| Asuinpinta-ala | 450 m² |
| Huoneiston kokoonpano | Halli |
| Kerros | 1 |
| Kunto | Uusi |
| Parveke | Ei |
| Asunnossa sauna | Ei |
| Muut ehdot | Vuokranmaksupäivä kk:n 5. päivä |
| Tilan pinta-ala | 450m2 |
| Asumistyyppi | Liikekiinteistövaihto |
| Takuuvuokra | 2kk:n vuokran suuruinen |
|---|
| Uudiskohde | Kyllä |
|---|---|
| Valmistumisvuosi | 2025 |
| Kerroksia | 1 |
| Hissi | Ei |
| Taloyhtiössä on sauna | Ei |
| Energiatodistus | Ei |
| Lisätietoja lämmityksestä | K |
| Pysäköintimaksu | Ei |
|---|
Kartalla
Ota yhteyttä kohteesta
Kohteen tiedot
Haapaniitynkatu 8, 04230 Kerava
Välittäjä:
Sampo Ylikulju
Välittäjän numero:
040 354 1771
Toimipiste:
Itälahdenkatu 15-17, 00210 Helsinki