Puutarhakatu 13, 33210 Tampere

Myymälähuoneisto+varastotilat

512㎡

Tampere, Keskusta

Monikäyttöinen liiketila vuokrattavana Tampereen keskustassa

Tarjolla valoisa ja muunneltavissa oleva liiketila vilkkaan Puutarhakadun varrella Tampereen sydämessä. Suuret näyteikkunat kadulle tarjoavat yrityksellesi erinomaisen näkyvyyden, ja useat paikat valomainoksille lisäävät houkuttelevuutta entisestään.

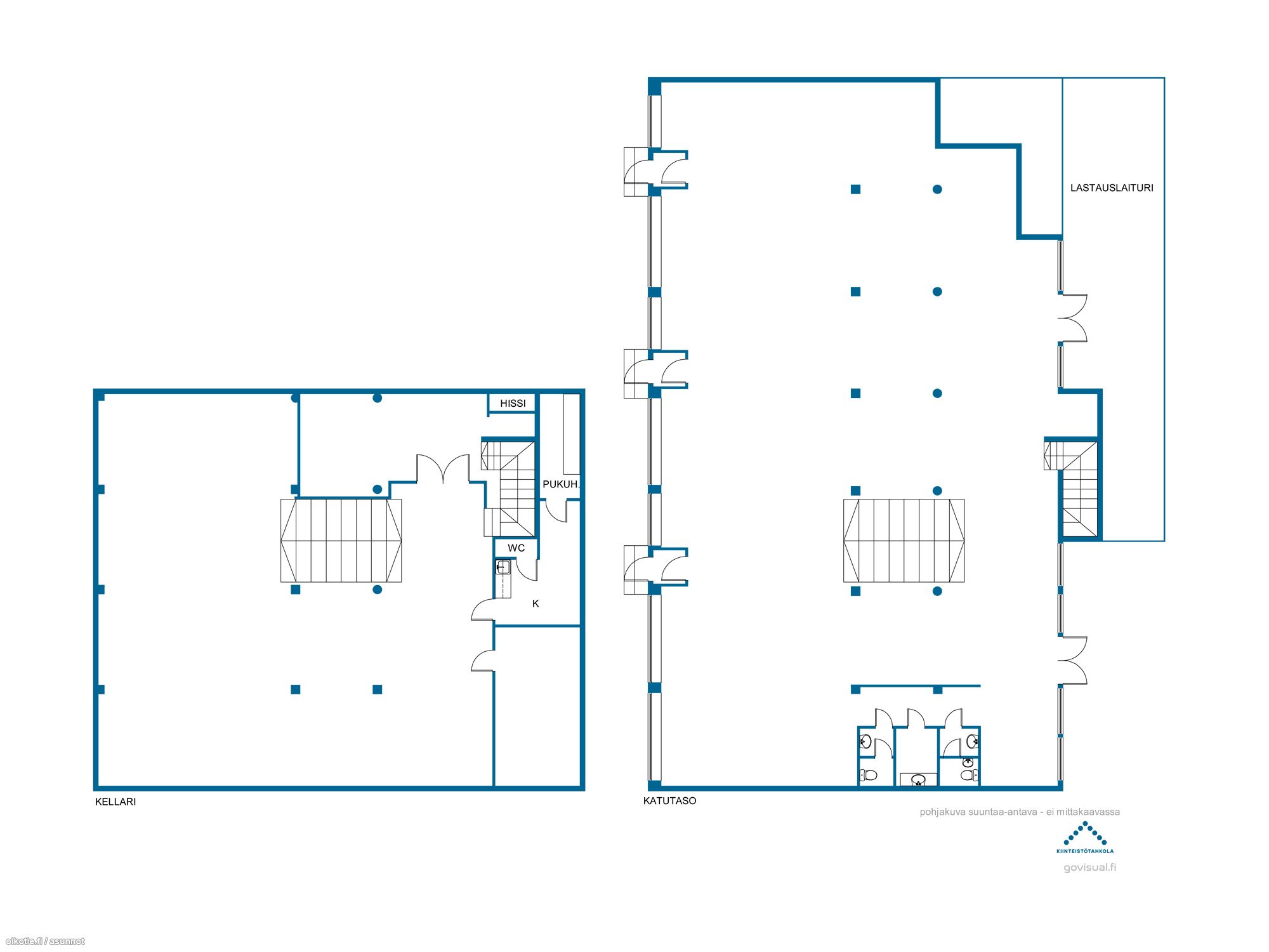
– Yläkerta: Myymälätilaa 300 m².
– Alakerta: Varasto- ja monitoimitilaa 212 m², jossa keittiö, sosiaalitilat ja toimistohuone.
– Kokonaispinta-ala: 512 m².
– Useita sisäänkäyntejä Puutarhakadulta sekä kolme takaovea sisäpihan lastauslaiturille.
– Tavarahissi sekä leveät portaat helpottavat tavaroiden siirtelyä kerrosten välillä.

Tila on hyvin muunneltavissa ja voidaan jakaa myös kolmeen pienempään osaan, mikä mahdollistaa erilaiset käyttötarkoitukset tai vuokrauksen osittain. Talotekniikka sallii myös tilan käytön ravintolana.
Sijainti, joustavat tilaratkaisut ja hyvät logistiikkamahdollisuudet tekevät tästä liiketilasta täydellisen vaihtoehdon monenlaiseen yritystoimintaan.

Kysy näyttöä tai lisätietoja jani.kaisto@kiinteistotahkola.fi tai 040 960 6424.

Sijainti Puutarhakatu 13, 33210 Tampere
Kaupunginosa Keskusta
Asuinpinta-ala 512 m²
Huoneiston kokoonpano Myymälähuoneisto+varastotilat
Kerros 1
Kunto Erinomainen
Parveke Ei
Asunnossa sauna Ei
Muut ehdot Vuokranmaksupäivä kk:n 5. päivä
Tilan pinta-ala 512m2
Asumistyyppi Liikekiinteistövaihto

Takuuvuokra Sovitaan
Vesimaksu (teksti) Laskutetaan kulutuksen mukaisesti.

Uudiskohde Ei
Valmistumisvuosi 1962
Kerroksia 1
Hissi Kyllä
Taloyhtiössä on sauna Ei
Energialuokka F2018
Energiatodistus Kyllä
Lisätietoja lämmityksestä K
Isännöinti Kiinteistötahkola / Samuli Sandberg

Pysäköintimaksu Kyllä

Kartalla

Ota yhteyttä kohteesta

Kohteen tiedot

Puutarhakatu 13, 33210 Tampere
Välittäjä: Jani Kaisto
Välittäjän numero: 040 960 6424
Toimipiste: Kuokkamaantie 4, 33800 Tampere
Yhteydenoton aihe

Vuokrattavat toimitilat