Vuokrataan Tampereen Sarankulmasta logistiikkatilaa!
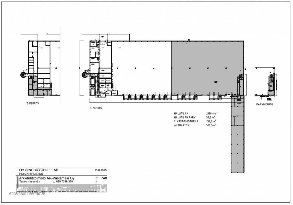
Suuri yli 5500m2 kokonaisuus jakautuu noin 4538m2 varastotilasta, 671m2 sosiaali ja toimistotilasta sekä noin 553m2 kylmästä/katetusta varastotilasta.
Hallin vapaa korkeus on 5,5-6,3m2 ja tontti on tilava, yli 15 500m2.
Kysy näyttöä tai lisätietoja jani.kaisto@kiinteistotahkola.fi tai 040 960 6424.
| Sijainti | Patamäenkatu 4, 33900 Tampere |
|---|---|
| Kaupunginosa | Sarankulma |
| Asuinpinta-ala | 5742 m² |
| Huoneiston kokoonpano | Tuotanto+sos.tila+kylmä var. |
| Kerros | 1 |
| Kunto | Erinomainen |
| Parveke | Ei |
| Asunnossa sauna | Ei |
| Muut ehdot | Vuokranmaksupäivä kk:n 5. päivä |
| Tilan pinta-ala | 5742m2 |
| Asumistyyppi | Liikekiinteistövaihto |
| Takuuvuokra | 1kk:n vuokran suuruinen |
|---|
| Uudiskohde | Ei |
|---|---|
| Valmistumisvuosi | 1977 |
| Kerroksia | 1 |
| Hissi | Ei |
| Taloyhtiössä on sauna | Ei |
| Energiatodistus | Ei |
| Lisätietoja lämmityksestä | K |
| Pysäköintimaksu | Ei |
|---|
Kartalla
Ota yhteyttä kohteesta
Kohteen tiedot
Patamäenkatu 4, 33900 Tampere
Välittäjä:
Jani Kaisto
Välittäjän numero:
040 960 6424
Toimipiste:
Kuokkamaantie 4, 33800 Tampere