Rautatienkatu 81, 90400 Oulu

2700€ / kk

Remontoitu toimisto/liiketila

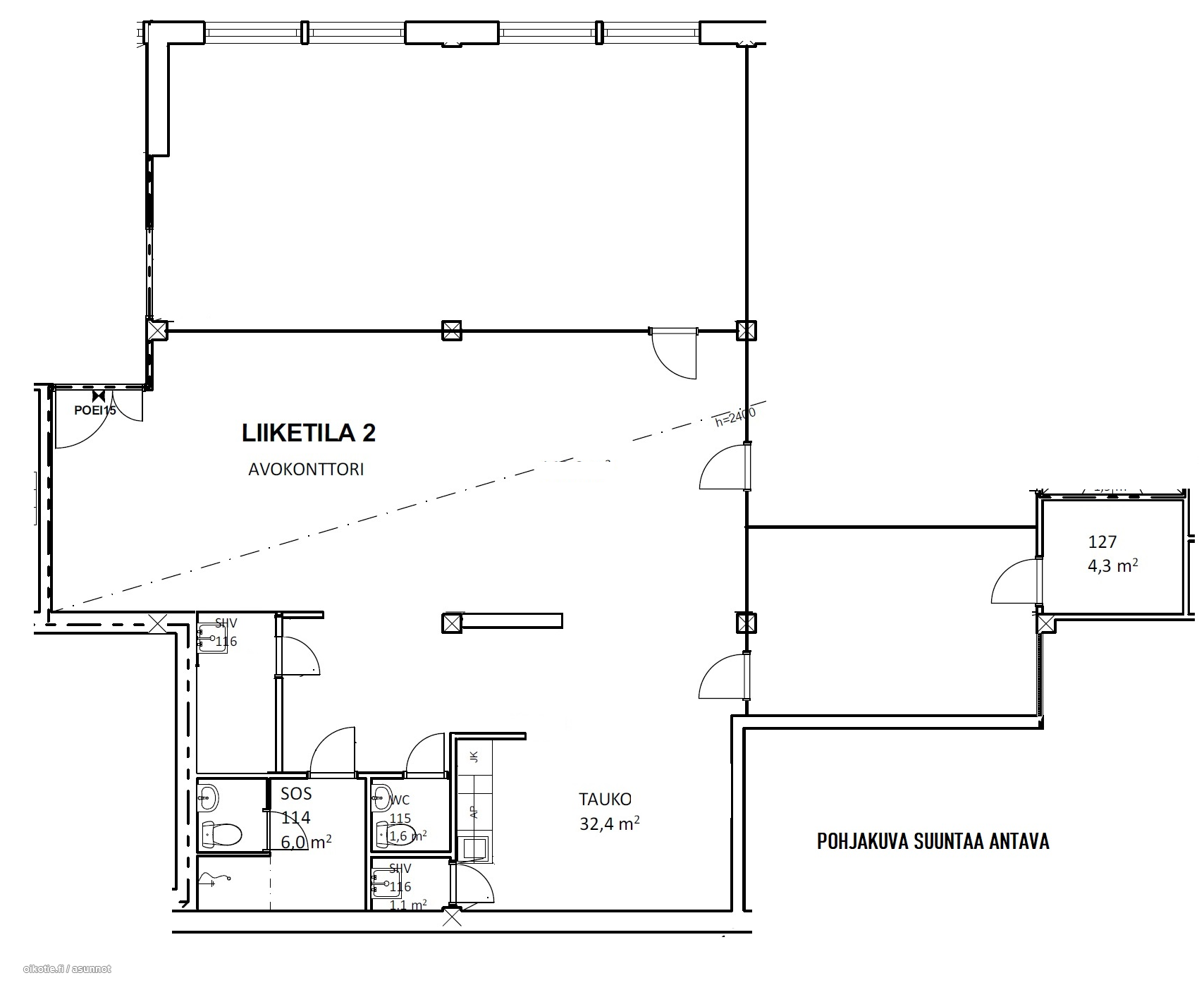
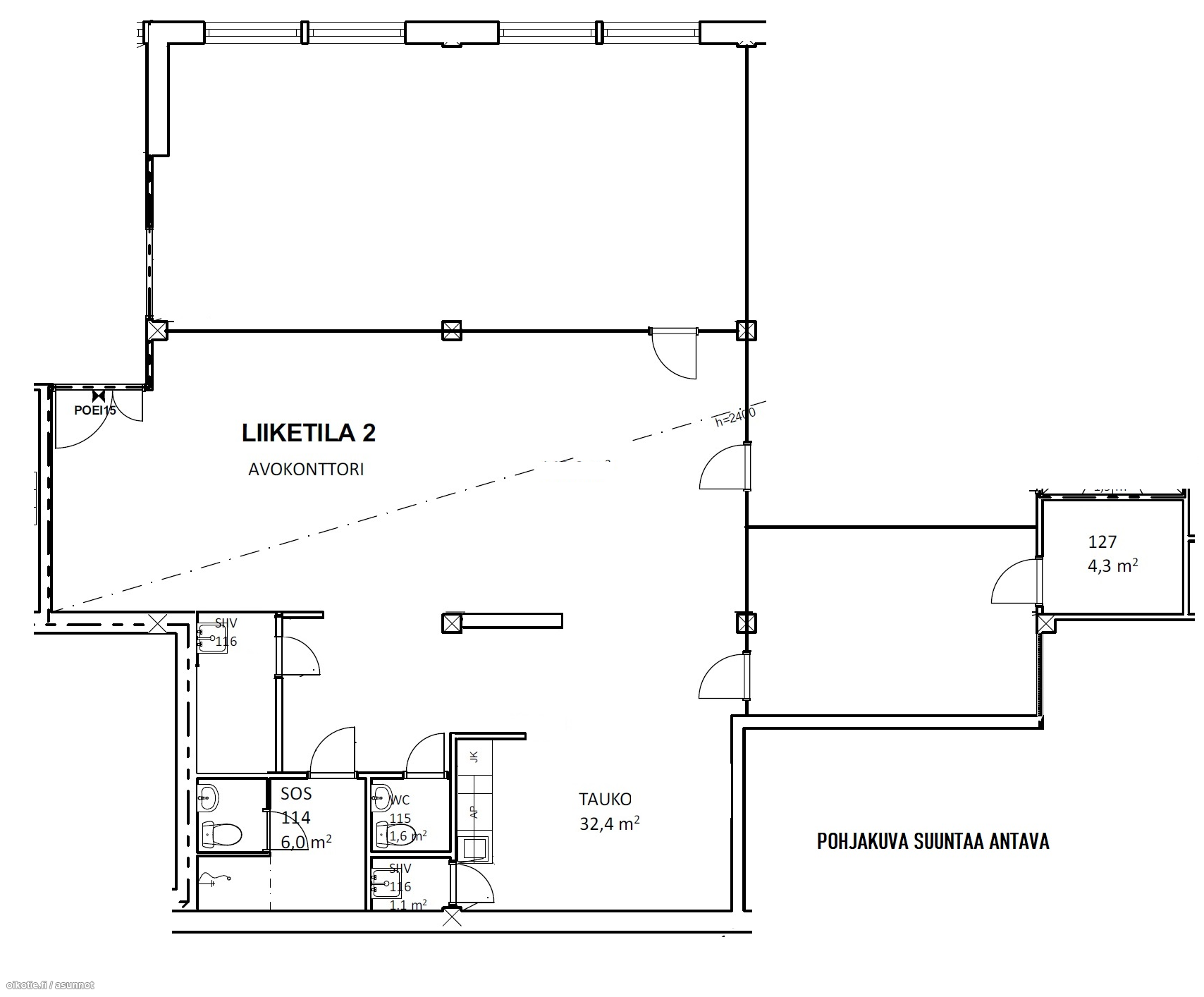
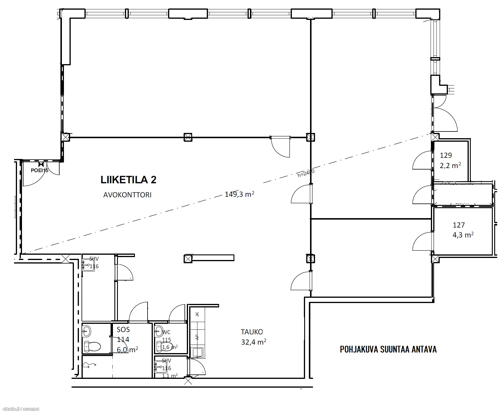
169㎡

Oulu, Limingantulli

Muutama vuosi sitten täydellisesti remontoitua tilaa! Tilat uusittiin sisältä täydellisesti ja julkisivu sekä piha päivitettiin. Tarjolla siis laadukasta ja näyttävää tilaa!

Tilaa on mahdollista muokata mm. pohjaratkaisun osalta tarpeisiinne sopivaksi. Käytössänne on tarvittaessa tilasuunnittelija ja remontin toteuttaja, minkä ansiosta muuttaminen on helppoa!

Millainen alue Limingantulli on?

Limingantie on yksi keskustaan johtavista pääväylistä, jonka vuoksi ilmaista näkyvyyttä on tarjolla. Ohitse ajaa keskimäärin 18 000 autoa päivittäin ja lisäksi runsaat määrät pyöräilijöitä ja jalankulkijoita. Kaupunginosa on kävelymatkan päässä keskustasta ja keskustan ohella kaupungin tärkein kauppapaikka. Lähiympäristössä sijaitsee mm. XXL, Power, Prisma, Gigantti, Alasintien liikekeskus ja paljon eri alojen erikoisliikkeitä. Tämän parempaa paikkaa on siis vaikea löytää.

Muuta tärkeää tietoa tilasta

– Tilassa oma koneellinen ilmanvaihto ja jäähdytys.
– Autopaikkoja vuokrattavissa 3kpl pihalta ja yksi parkkihallista.
– Jyvitetty pinta-ala 169m2, tilan varsinainen pinta-ala 160m2
– Tilan vuokra on 2700 €/kk + alv. Vesimaksut ja sähkö erilliskorvauksena.

Kysy lisätietoja tai sovi esittelystä!

Eikö tämä ole sopiva? Kysy muita vaihtoehtojamme!

Sijainti Rautatienkatu 81, 90400 Oulu
Kaupunginosa Limingantulli
Asuinpinta-ala 169 m²
Huoneiston kokoonpano Remontoitu toimisto/liiketila
Kerros 1
Kunto Erinomainen
Parveke Ei
Asunnossa sauna Ei
Muut ehdot Vuokranmaksupäivä kk:n 5. päivä
Tilan pinta-ala 169m2
Asumistyyppi Liikekiinteistövaihto

Vuokra 2700€ / kk
Takuuvuokra 3kk:n vuokran suuruinen

Uudiskohde Ei
Valmistumisvuosi 1990
Kerroksia 2
Hissi Ei
Taloyhtiössä on sauna Ei
Energialuokka H
Energiatodistus Kyllä
Lisätietoja lämmityksestä K
Isännöinti Retta

Pysäköintimaksu Ei

Kartalla

Ota yhteyttä kohteesta

Kohteen tiedot

Rautatienkatu 81, 90400 Oulu
Välittäjä: Sami Kortesoja
Välittäjän numero: 045 896 4803
Toimipiste: Lumijoentie 1, 90400 Oulu
Yhteydenoton aihe

Vuokrattavat toimitilat