Kirkkokatu 27, 90100 Oulu

2000€ / kk

Remontoituja tiloja

55㎡

Oulu, Keskusta

Keskustan yksi näkyvimmistä liikepaikoista on remontoitu uuteen uskoon. Vapaana vielä pari näyttävää tilaa ensimmäisestä kerroksesta. Tiloissa suuret näyteikkuna Rotuaarin tai Saaristonkadun suuntaan. Kiinteistön näyttävät mainospaikat sisältyvät vuokraan.

Hammarinkulmaan tuo runsaasti asiakasliikennettä Pizza Hut sekä toisen kerroksen UFF Second Hand Store. Rotuaari on Oulun keskustan muodin, ravintolaelämän ja viihteen keskus eli kaupunkilaisten olohuone. Vastapäätä on Kauppakortteli Pekuri, joka on täynnä ravintoloita ja viihtyisiä liikkeitä, vieressä tavaratalo Halonen, Kekäle ja muut keskustan liikkeet.

Vapaat tilat:

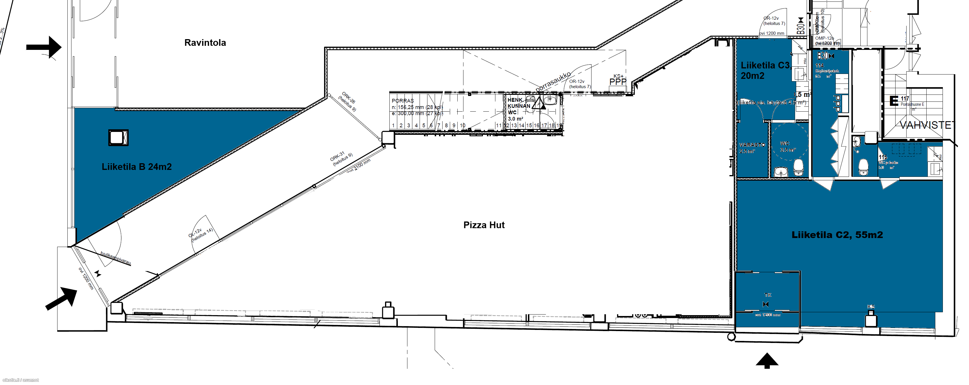
– Liiketila B, 24-44m2, kiinteistön pääsisäänkäynnin vieressä liiketila, jossa kaksi isoa ikkunaa Rotuaarin suuntaan. Tila sopii mm. myymäläksi ja showroomiksi. Tilan välittömästä läheisyydestä vuokrattavissa henkilökunnan taukotila ja varasto. Neliömäärä tilan C3 kanssa 44m2.

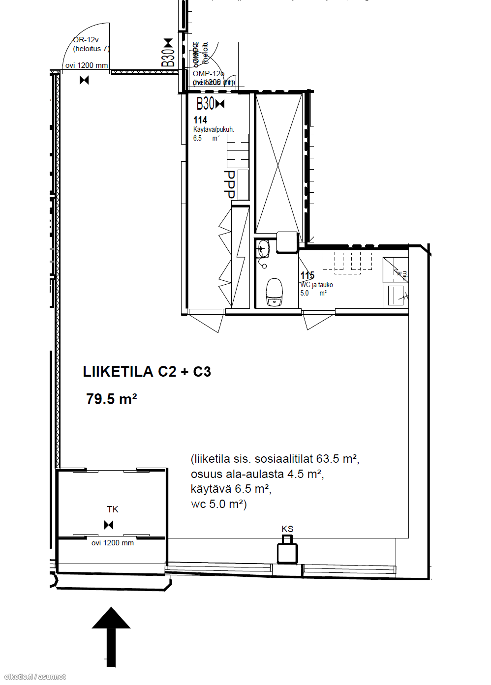
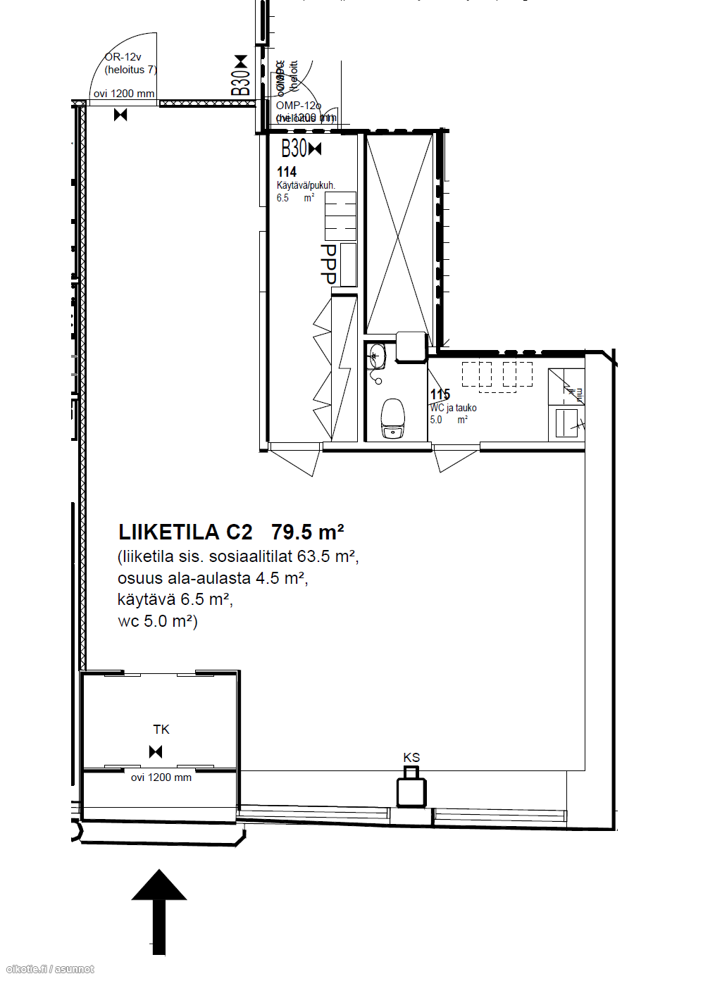
– Liiketila C2, 55-79m2, tyylikäs liiketila tai toimisto, johon käynti Saaristonkadulta. Isot ikkunat pitävät huolen siitä, että tämä tila huomataan! Neliömäärä tilan C3 kanssa 79m2.

– Liiketila C3, 20m2, vuokrattavissa tilan B tai C2 mukana. Tilasta voidaan tehdä esimerkiksi taukotila, jossa myös pieni varasto.

Tilat remontoidaan vuokralaisen tarpeita vastaavaksi. Vuokrataso ilman valmiiksi rakennettuja pintoja 36-90€/m2 tilasta riippuen. Kysy lisätietoa hinnasta ja tiloista!

Kellarista vuokrattavissa autohallipaikkoja ja varastotilaa.

Ota yhteyttä ja suunnitellaan teille uudet tilat!

Eikö tämä tila ole sopiva? Kysy muita vaihtoehtojamme!

#liiketila #myymälä #toimisto

Sijainti Kirkkokatu 27, 90100 Oulu
Kaupunginosa Keskusta
Asuinpinta-ala 55 m²
Huoneiston kokoonpano Remontoituja tiloja
Kerros 1
Kunto Erinomainen
Parveke Ei
Asunnossa sauna Ei
Muut ehdot Vuokranmaksupäivä kk:n 5. päivä
Tilan pinta-ala 55m2
Asumistyyppi Liikekiinteistövaihto

Vuokra 2000€ / kk
Takuuvuokra 3kk:n vuokran suuruinen

Uudiskohde Ei
Valmistumisvuosi 1990
Kerroksia 4
Hissi Kyllä
Taloyhtiössä on sauna Ei
Energialuokka H
Energiatodistus Kyllä
Lisätietoja lämmityksestä K
Isännöinti Oulun Toimitila Oy

Pysäköintimaksu Ei

Kartalla

Ota yhteyttä kohteesta

Kohteen tiedot

Kirkkokatu 27, 90100 Oulu
Välittäjä: Henri Huotari
Välittäjän numero: 0405418854
Toimipiste: Lumijoentie 1, 90400 Oulu
Yhteydenoton aihe

Vuokrattavat toimitilat