Alasintie 10, 90400 Oulu

Uudehkoa liiketilaa

1872㎡

Oulu, Limingantulli

Täydellinen tilaisuus päästä tekemään kauppaa Limingantulliin. Samassa talossa naapureina mm. erätarvikkeiden myyjä Ruoto, lastenleikkipuisto HopLop, Fitness247-kuntosali, lastentarvikeliike, kalusteliike Puustelli ja sisustusliike Värisilmä. Naapurirakennuksissa Kärkkäinen ja XXL. Rakennus sijaitsee erittäin näkyvällä ja keskeisellä paikalla Limingantien varressa Prismaa vastapäätä ja kuten kuvistakin näkyy, näkyvyyttä on tarjolla.

Vuonna 2017 valmistuneessa kiinteistössä on tekniikka kunnossa ja tilat ovat heti valmiit käyttöön. Pihassa riittää pysäköintipaikkoja asiakkaille ja henkilökunnalle.

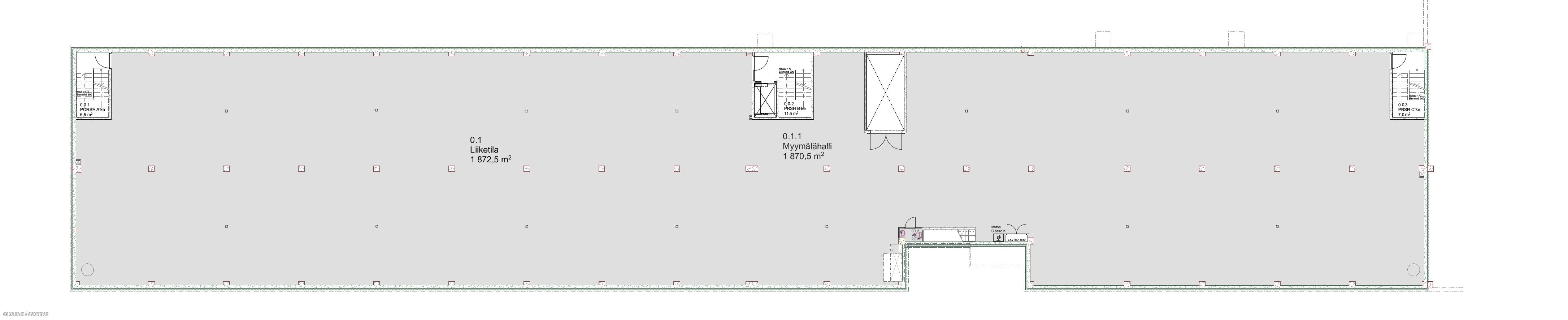
Tila on mahdollista jakaa osiin. Pienin mahdollinen tilan koko on n. 300m2.

Tilat sijaitsevat talon -1. kerroksessa. Tila on kokonaisuudessaan avointa tilaa, mutta tiloihin on mahdollista rakentaa esim. vessa tai pieni toimisto. Ilmanvaihto on rakennettu palvelemaan mm. autoliikkeen tarpeita ja ilmanvaihtoon on integroitu jäähdytys. Tilaan on käynti hissin ja portaikon lisäksi autohissillä.

Pääomavuokra on 15 912 € /kk +alv 24%. Pääomavuokran lisäksi laskutetaan hoitovuokraennakkoa 3€/m2/kk +alv 24%. Toteutuneet hoitokulut tarkistetaan vuosittain. Erilliskustannuksina vesi kulutuksen mukaan. Vuokralaisen omalla sopparilla käyttösähkö, nettiliittymät, postituspalvelut, siivous, mahdollinen tilan vartiointi (alaovien hälytykset vuokranantajan kautta).

Soita tai jätä yhteydenottopyyntö ja sovi esittely tai kysy lisätietoja!

Eikö tämä ole sopiva? Kysy muita vaihtoehtojamme!

Sijainti Alasintie 10, 90400 Oulu
Kaupunginosa Limingantulli
Asuinpinta-ala 1872 m²
Huoneiston kokoonpano Uudehkoa liiketilaa
Kunto Erinomainen
Parveke Ei
Asunnossa sauna Ei
Muut ehdot Vuokranmaksupäivä kk:n 5. päivä
Tilan pinta-ala 1872m2
Asumistyyppi Liikekiinteistövaihto

Takuuvuokra 3kk:n vuokran suuruinen
Vesimaksu (teksti) Laskutetaan kulutuksen mukaisesti.

Uudiskohde Ei
Valmistumisvuosi 2017
Hissi Kyllä
Taloyhtiössä on sauna Ei
Energialuokka C2018
Energiatodistus Kyllä
Lisätietoja lämmityksestä K
Isännöinti OIT Mauri Niemelä

Pysäköintimaksu Ei

Kartalla

Ota yhteyttä kohteesta

Kohteen tiedot

Alasintie 10, 90400 Oulu
Välittäjä: Joni Romppainen
Välittäjän numero: 0405400672
Toimipiste: Lumijoentie 1, 90400 Oulu
Yhteydenoton aihe

Vuokrattavat toimitilat