Koskitie 39, 90500 Oulu

730€ / kk

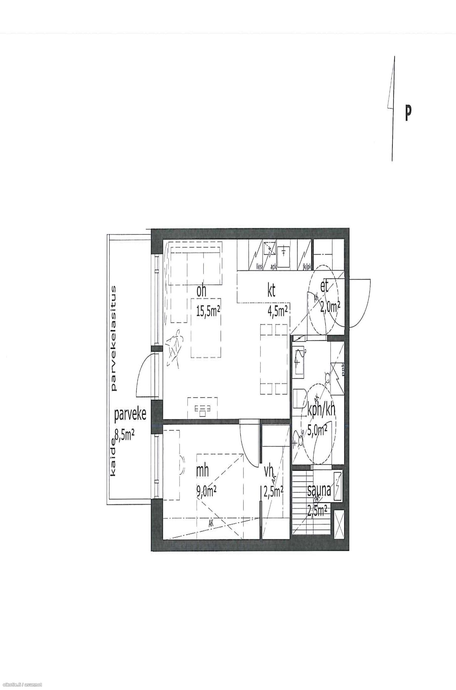
2h,kk,kh,sa,vh,l.parv

43.5㎡

Oulu, Tuira

Vapautuu 01.04.2026

Nyt tarjolla luksusta! Tuirasta Koskenrannan uudesta korttelista vuonna 2016 valmistuneesta talosta vuokrattavana neljännen (4/8) kerroksen valoisa kaksio. Lähellä mm. Tuiran S-market, rotuaari 1,6 km päässä ja yliopistolle tulee matkaa noin 4 km.

Asunnossa laadukkaat materiaalit ja vaalea yleisilme. Lattiat valkomattalakattua tammilautaparkettia. Keittiön varusteluna kivitasot, integroidut jääkaappipakastin, astianpesukone, mikro ja energiaa säästävä induktioliesi. Tilavassa kylpyhuoneessa varaus ja paikka pyykkitornille, oman saunan löylyistä pääset vilvoittelemaan upealle isolle lasitetulle parvekkeelle, jossa valmiina mukavuutta lisäävä DryStep termomatto sekä terassilämmitin. Kellarista löytyy säilytystilaa.

– Vuokra 730€/kk
– Vakuus 730€
– Vesiennakko 20€/hlö/kk
– Lämmitys ja laajakaista sisältyy vuokraan
– Vuokralainen tekee oman käyttösähkösopimuksen sekä ottaa kotivakuutuksen
– Asunnon vuokraus edellyttää puhtaita luottotietoja

Tämä koti vapautuu 1.4.2026!

Soita tai jätä yhteydenottopyyntö.

Sijainti Koskitie 39, 90500 Oulu
Kaupunginosa Tuira
Asuinpinta-ala 43.5 m²
Huoneiston kokoonpano 2h,kk,kh,sa,vh,l.parv
Huoneita 2
Kerros 4
Vapautuu 01.04.2026
Kunto Erinomainen
Parveke Kyllä
Asunnossa sauna Kyllä
Muut ehdot Vuokranmaksupäivä kk:n 5. päivä
Tilan pinta-ala 43.5m2
Asumistyyppi Vuokra

Vuokra 730€ / kk
Takuuvuokra 1kk:n vuokran suuruinen
Vesimaksu (teksti) Laskutetaan kulutuksen mukaisesti.Vesimaksuennakko 20,00 €.

Uudiskohde Ei
Valmistumisvuosi 2016
Talon tyyppi Kerrostalo
Kerroksia 8
Hissi Kyllä
Taloyhtiössä on sauna Ei
Energialuokka C2013
Energiatodistus Kyllä
Lisätietoja lämmityksestä K
Isännöinti Kiinteistötahkola p. 0207 480 200

Pysäköintimaksu Ei

Kartalla

Ota yhteyttä kohteesta

Kohteen tiedot

Koskitie 39, 90500 Oulu
Välittäjä: Juho Kortesoja
Välittäjän numero: 0401380077
Toimipiste: Lumijoentie 1, 90400 Oulu
Yhteydenoton aihe

Vuokrattavat asunnot