Lipporannantie 5, 90500 Oulu

665€ / kk

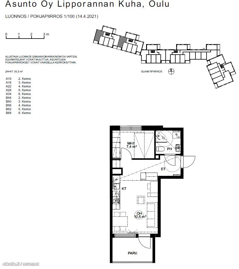
B62 2h,kh,lasparv

35.5㎡

Oulu, Toppilansalmi

Vapautuu 01.04.2026

Nyt tarjolla 2022 valmistuneessa As Oy Lipporannan Taimenessa viidennen (5./6) kerroksen kaksio Oulujokisuiston lähellä. Hartaanselän ja meren läheisyys luovat viihtyisät puitteet laadukkaalle asumiselle kaupungin parhaimmilla paikoilla, modernilla asuinalueella Länsi-Tuirassa.

Tästä on hyvät kävely- ja pyörätiet kaupungin keskustaan, torille tai Toppilansaaren ulkoilu- ja virkistysalueelle. Löytyy luonnonläheisiä reittejä kävelysiltoineen ja vesistöineen. Vähän matkan päästä löytyy uimahallista urheilustadioniin ja melontareitteihin, alueella on erittäin monipuolisesti harrastusmahdollisuuksia. Lähelle rakentuu myös v. 2025 uusi asuntomessualue.

Tämän viidennen kerroksen kivan kaksion sisustusmateriaalit ovat tyylikästä vaaleaa värimaailmaa, valkoiset maalatut seinät ja lattiat laminaattia. Keittiötilasta löytyy nykyaikainen koneistus, jenkkikaappi, keraaminen liesi ja astianpesukone. Kaakeloidussa kylpyhuoneessa on paikka omalle pyykkikoneelle.

Kotikatu365 tarjoaa asukkaiden käyttöön noin 500 m2 yhteistilat, josta löytyvät mm olohuone, vierashuone, kuntosali, kokous- ja juhlatila, saunatilat, leikki- ja pelitila, it-työpisteet, seurusteluhuone ja aulatilat. Yhteiskäyttövälineet mm yhteiskäyttöauto, lainattavat polkupyörät, vene yms. Täällä voit lukaista päivän lehden, järjestää juhlat tai viettää aikaa seurustellen. Myös asukkaiden vieraat voivat majoittua yhteistilojen vierashuoneeseen tai vierasasuntoon. Palvelut kuuluu pääosin 17,80€/kk yhteispalvelumaksuun, joka maksetaan vuokran lisäksi, osasta palveluista peritään erilliskorvaus käytön mukaan.

HOX Kuvat toisesta samantyylisestä kaksiosta, hiukan eri pohjalla olevasta.

Tämä koti on 1.4. vapaa, soita 050 569 5947 tai jätä yhteydenottopyyntö aake.tenttula@kiinteistotahkola.fi.

Sijainti Lipporannantie 5, 90500 Oulu
Kaupunginosa Toppilansalmi
Asuinpinta-ala 35.5 m²
Huoneiston kokoonpano B62 2h,kh,lasparv
Huoneita 2
Kerros 5
Vapautuu 01.04.2026
Kunto Erinomainen
Parveke Kyllä
Asunnossa sauna Ei
Muut ehdot Vuokranmaksupäivä kk:n 5. päivä
Tilan pinta-ala 35.5m2
Asumistyyppi Vuokra

Vuokra 665€ / kk
Takuuvuokra 1kk:n vuokran suuruinen
Vesimaksu (teksti) Laskutetaan kulutuksen mukaisesti.Vesimaksuennakko 20,00 €.

Uudiskohde Ei
Valmistumisvuosi 2022
Talon tyyppi Kerrostalo
Kerroksia 6
Hissi Kyllä
Taloyhtiössä on sauna Kyllä
Energialuokka B2018
Energiatodistus Kyllä
Lisätietoja lämmityksestä K
Isännöinti Terwa Isännöinti

Pysäköintimaksu Ei
Yhteiset tilat Pesutupa

Kartalla

Ota yhteyttä kohteesta

Kohteen tiedot

Lipporannantie 5, 90500 Oulu
Välittäjä: Aake Tenttula
Välittäjän numero: 050 569 5947
Toimipiste: Lumijoentie 1, 90400 Oulu
Yhteydenoton aihe

Vuokrattavat asunnot