Sairaalanrinne 4, 90220 Oulu

890€ / kk

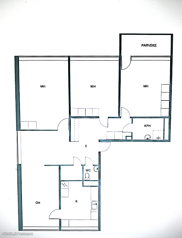
4h,k,kph,wc,parv

100㎡

Oulu, Sairaalanrinne

Tilaa ja toimivuutta Kontinkankaalla – 3mh koti oppilaitosten ja palveluiden vierellä

Etsitkö tilavaa kotia erinomaisella sijainnilla? Tämä kolmen erillisen makuuhuoneen huoneisto Kontinkankaalla vapautuu heti! Pohjaratkaisunsa ansiosta asunto on loistava valinta niin lapsiperheelle kuin opiskelijoiden kimppa-asunnoksi.

Asunnon ominaisuudet:
Kolme makuuhuonetta: Kaikki huoneet ovat erillisiä, mikä takaa oman rauhan jokaiselle asukkaalle. Yhdestä huoneesta on käynti omalle parvekkeelle.

Viihtyisät oleskelutilat: Keittiön yhteydessä on yhteinen oleskelualue, joka toimii kodin sydämenä.

Toimiva keittiö: Varusteluun kuuluu astianpesukone, liesi/uuni sekä jääkaappipakastin.

Sujuvat neliöt: Arkea helpottavat erillinen WC, tilava kylpyhuone sekä suuri vaatehuone, joka tarjoaa runsaasti säilytystilaa.

Pinnat: Huoneistossa on raikkaat vaaleat seinät ja siisti, helppohoitoinen laminaattilattia.

Sijainti palveluiden keskiössä:
Useat oppilaitokset ja Oulun yliopistollinen sairaala (OYS) sijaitsee aivan lähistöllä. Naapurissa on Kastellin monitoimitalo, josta löytyvät päiväkoti, peruskoulu ja lukio.

Liikunta ja vapaa-aika: Raksilan urheilualue, Ouluhalli ja jäähalli ovat vain alle 2 km päässä.

Erinomaiset yhteydet: Lähikaupat löytyvät kilometrin säteeltä. Oulun keskustaan on matkaa noin 3 km, ja matka taittuu vaivatta niin julkisilla, autolla kuin pyöräillenkin.

Kohderyhmä: Sopii erinomaisesti kimppa-asunnoksi tai perheelle.

Kysy tarvittaessa myös autopaikkaa hintaan 60€/kk.

– Vuokra 890€/kk
– Vakuus 890€
– Vesimaksu 28€/hlö/kk
– Vuokraan sisältyy lämmitys
– Vuokralainen ottaa laajan kotivakuutuksen ja tekee käyttösähkösopimuksen
– Vaaditaan puhtaat luottotiedot

Jätä yhteydenottopyyntö tai soita arkisin klo 9-16.00. Käydään katsomassa tätä asuntoa paikan päällä!

Sijainti Sairaalanrinne 4, 90220 Oulu
Kaupunginosa Sairaalanrinne
Asuinpinta-ala 100 m²
Huoneiston kokoonpano 4h,k,kph,wc,parv
Huoneita 4
Kerros 3
Kunto Erinomainen
Parveke Kyllä
Asunnossa sauna Ei
Muut ehdot Vuokranmaksupäivä kk:n 5. päivä
Tilan pinta-ala 100m2
Asumistyyppi Vuokra

Vuokra 890€ / kk
Takuuvuokra 1kk:n vuokran suuruinen
Vesimaksu 28€ / kk

Uudiskohde Ei
Valmistumisvuosi 1971
Talon tyyppi Kerrostalo
Kerroksia 5
Hissi Kyllä
Taloyhtiössä on sauna Ei
Energiatodistus Ei
Lisätietoja lämmityksestä K
Isännöinti Kiinteistötahkola 0207480250

Pysäköintimaksu Ei

Kartalla

Ota yhteyttä kohteesta

Kohteen tiedot

Sairaalanrinne 4, 90220 Oulu
Välittäjä: Jarmo Lepistö
Välittäjän numero: 040 6734433
Toimipiste: Lumijoentie 1, 90400 Oulu
Yhteydenoton aihe

Vuokrattavat asunnot