Asemakatu 16, 90100 Oulu

1790€ / kk

Liiketila, toimisto

165㎡

Oulu, Keskusta

Vapautuu 01.05.2026

Tyylikäs katutason toimisto-/liiketila vapautumassa Oulun keskustasta!

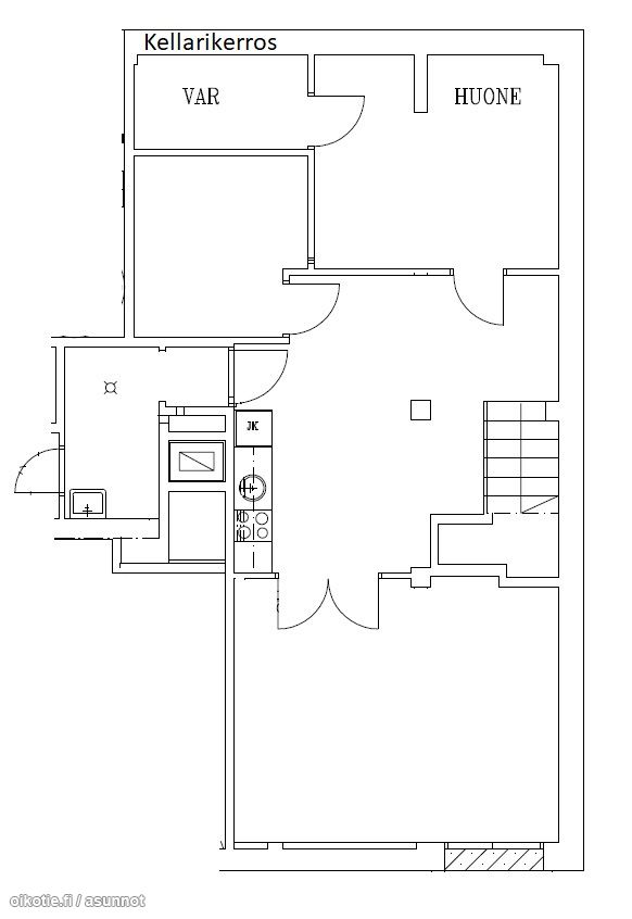
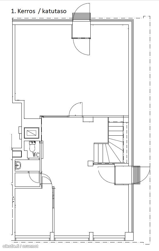
Tila sijaitsee vilkkaalla liikepaikalla Asemakatu 16 talon kulmauksessa ja liikkeen isot näyteikkunat avautuvat Mäkelininkadun ja Asemakadun suuntaan. Tilat koostuu valoisasta katutason tilasta, joka on n. 90 m2 ja tyylikkäästä kellaritason tilasta, jossa on tilaa n. 75 m2. Katutasoon on kaksi sisäänkäyntiä, Asemakadun ja Mäkelininkadun puolelta. Katutason tilassa on myös wc sekä tilan puolelle tuotuna erillinen vesipiste. Kellaritason tyylikkäistä tiloista löytyy aulatila, jossa minikeittiön kalustus, kaksi toimisto-/työhuonetta sekä neuvottelutila ja pieni varastohuone. Myös kellaritiloista löytyy erillinen vesipisteellä varustettu tila.

Tilat sopii monenlaiseen liiketoimintakäyttöön mm. toimistoksi, myymäläksi tai työtilaksi. Tilat ovat tyylikkäät, tiloissa on hyvä valaistus ja koneellinen poistoilmanvaihto. Liiketilan isoja ikkunoita voi hyödyntää esimerkiksi yrityksen ilmeen mukaisin ikkunateippauksin lisäten näkyvyyttä katukuvassa. Tilan yhteyteen on mahdollisuus vuokrata 2 autopaikkaa. Asiakaspysäköintiin löytyy tilaa rakennuksen vierestä sekä kadunvarresta.

Vuokra on 1790,00 €/kk +alv, lämmitys sisältyy vuokraan.
Vuokralainen vastaa vedestä kulutuksen mukaan ja tekee oman sähkösopimuksen. Vuokrattavissa on 2 kpl autopaikkoja, 30 e/kpl/kk +alv.

Tila vapautuu 1.5.2026, joten tässä on loistava tilaisuus aloittaa uutta tai jatkaa nykyistä liiketoimintaa jo valmiiksi tyylikkäissä tiloissa! Tilat on helposti muokattavissa omaan tarpeeseenne sekä yrityksenne ilmeen mukaiseksi tilaksi.

Ole yhteydessä ja sovitaan esittely!

Esittelyt ja lisätiedot:
Sami Kortesoja, 0458964803
sami.kortesoja@kiinteistotahkola.fi

Eikö tämä ole sopiva? Kysy muita vaihtoehtojamme!

Sijainti Asemakatu 16, 90100 Oulu
Kaupunginosa Keskusta
Asuinpinta-ala 165 m²
Huoneiston kokoonpano Liiketila, toimisto
Kerros 1
Vapautuu 01.05.2026
Kunto Erinomainen
Parveke Ei
Asunnossa sauna Ei
Muut ehdot Vuokranmaksupäivä kk:n 5. päivä
Tilan pinta-ala 165m2
Asumistyyppi Liikekiinteistövaihto

Vuokra 1790€ / kk
Takuuvuokra 3kk:n vuokran suuruinen/sovitaan erikseen
Vesimaksu (teksti) Laskutetaan kulutuksen mukaisesti.

Uudiskohde Ei
Valmistumisvuosi 1963
Kerroksia 4
Hissi Ei
Taloyhtiössä on sauna Ei
Energialuokka H
Energiatodistus Kyllä
Lisätietoja lämmityksestä K
Isännöinti Kiinteistötahkola p. 0207 480 200

Pysäköintimaksu Kyllä

Kartalla

Ota yhteyttä kohteesta

Kohteen tiedot

Asemakatu 16, 90100 Oulu
Välittäjä: Sami Kortesoja
Välittäjän numero: 045 896 4803
Toimipiste: Lumijoentie 1, 90400 Oulu
Yhteydenoton aihe

Vuokrattavat toimitilat