Lipporannantie 5, 90500 Oulu

630€ / kk

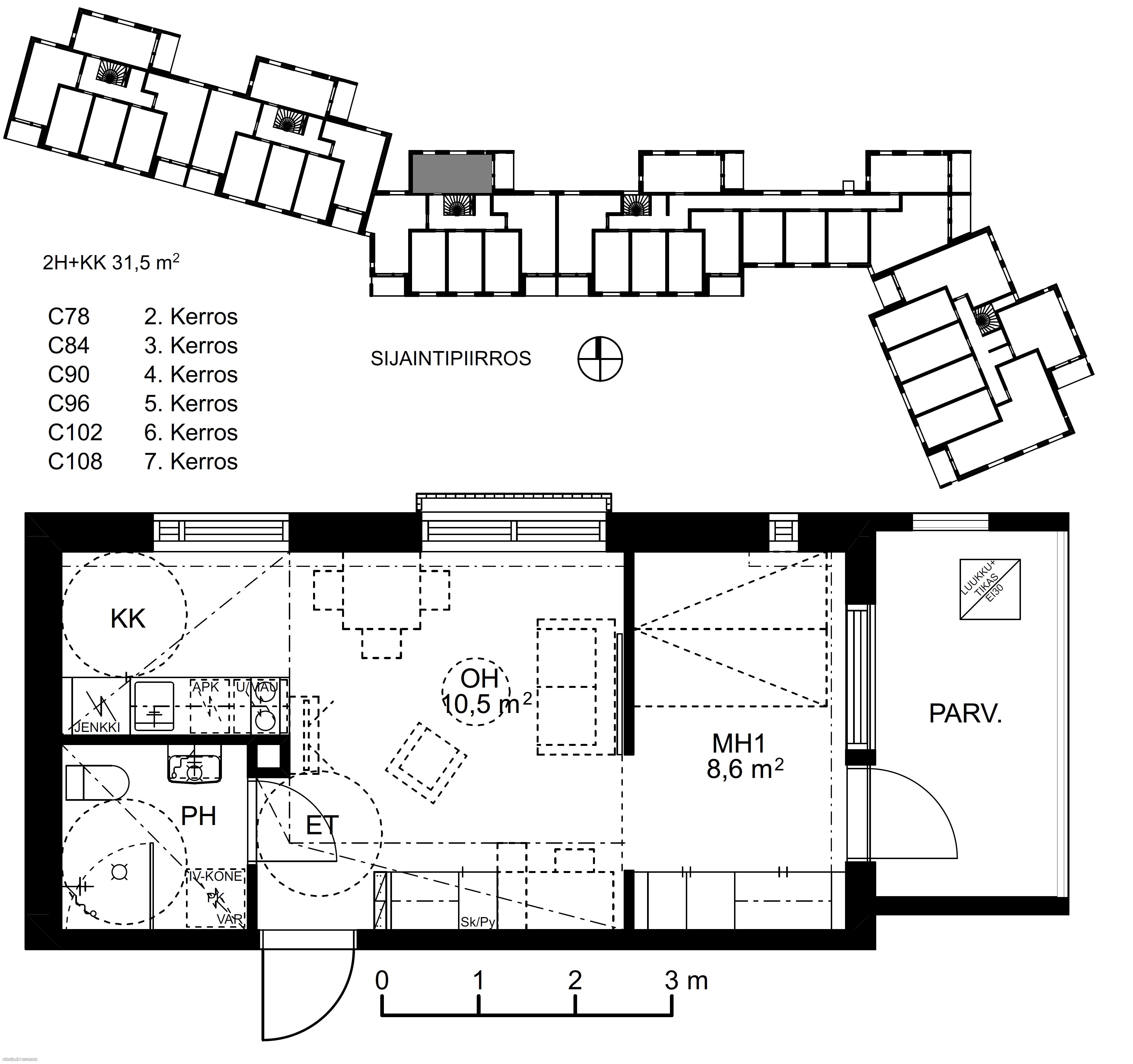
2h,kt,kh,las.parv

31.5㎡

Oulu, Lipporanta

1.2.2026 vapautumassa harvoin tarjolla oleva ylimmän (7/7) kerroksen kaksio!

Tästä on hyvät kävely- ja pyörätiet kaupungin keskustaan, torille tai Toppilansaaren ulkoilu- ja virkistysalueelle. Vierestä löytyy luonnonläheisiä reittejä kävelysiltoineen ja vesistöineen. Vähän matkan päästä löytyy myös uimahalli.

Tämän asunnon materiaalit ovat tyylikästä vaaleaa värimaailmaa, valkoiset maalatut seinät ja lattiat laminaattia. Pohjaratkaisun ansioista asunnossa on neliöitään parempi tilan tuntu, keittiö jää omaan tilaan ja makuuhuoneesta pääsee omalle lasitetulle parvekkeelle. Keittiöstä löytyy nykyaikainen koneistus: nelilevyinen liesi, tilava pakastin/jääkaappi ja integroitu astianpesukone. Keittiöön tuo tyylikkyyttä ruskea marmorikuosinen laminaattityötaso. Valkoisessa kaakeloidussa kylpyhuoneessa on paikka omalle pyykkikoneelle ja kuivausrummulle. Tilava lasitettu parveke lisää puolestaan asumismukavuutta ja tuo yhden lisähuoneen asumiseen aina keväästä alkaen!

Kotikatu365 tarjoaa asukkaiden käyttöön noin 500m2 yhteistilat, josta löytyvät mm olohuone, vierashuone, kuntosali, kokous- ja juhlatila, saunatilat, leikki- ja pelitila, it-työpisteet, seurusteluhuone ja aulatilat. Täällä voit lukaista päivän lehden, järjestää juhlat tai viettää aikaa seurustellen muiden asukkaiden kanssa. Myös asukkaiden vieraat voivat majoittua yhteistilojen vierashuoneeseen (erillismaksusta). Palvelut kuuluu pääosin 17,76€/kk yhteispalvelumaksuun, joka maksetaan vuokran lisäksi, osasta palveluista peritään erilliskorvaus käytön mukaan (kuten erillisestä saunasta ja vierashuoneesta).

Jokaiselle asunnolle löytyy häkkivarasto sekä useampia ulkoiluvälinevarastoja. Taloyhtiöstä löytyy erikseen oma sauna sekä pesutupa asukkaiden käytettäväksi erillismaksusta.

-Vuokra 630€/kk
-Vakuus 630€
-Vesiennakko 20€/hlö/kk
-Vuokraan sisältyy lämmitys sekä taloyhtiölaajakaistan perusnopeus
-Mahdollisuus autopaikkaan 50€/kk
-Kotikatu365 yhteispalvelumaksu 17,76€/kk

Tämä ylimmän (7/7) kerroksen kaksio vapautuu 1.2.2026! Soita arkisin 9.-16.30 (myös tekstiviesti tai whatsapp käy hyvin) tai jätä yhteydenottopyyntö ja kysy lisää!

Sijainti Lipporannantie 5, 90500 Oulu
Kaupunginosa Lipporanta
Asuinpinta-ala 31.5 m²
Huoneiston kokoonpano 2h,kt,kh,las.parv
Huoneita 2
Kerros 7
Kunto Erinomainen
Parveke Kyllä
Asunnossa sauna Ei
Muut ehdot Vuokranmaksupäivä kk:n 5. päivä
Tilan pinta-ala 31.5m2
Asumistyyppi Vuokra

Vuokra 630€ / kk
Takuuvuokra 1kk:n vuokran suuruinen
Vesimaksu (teksti) Laskutetaan kulutuksen mukaisesti.Vesimaksuennakko 20,00 €.

Uudiskohde Ei
Valmistumisvuosi 2022
Talon tyyppi Kerrostalo
Kerroksia 7
Hissi Kyllä
Taloyhtiössä on sauna Kyllä
Energialuokka B2018
Energiatodistus Kyllä
Lisätietoja lämmityksestä K
Isännöinti Kiinteistötahkola

Pysäköintimaksu Kyllä
Yhteiset tilat Pesutupa

Kartalla

Ota yhteyttä kohteesta

Kohteen tiedot

Lipporannantie 5, 90500 Oulu
Välittäjä: Eemil Myllylä
Välittäjän numero: 044 713 0061
Toimipiste: Lumijoentie 1, 90400 Oulu
Yhteydenoton aihe

Vuokrattavat asunnot