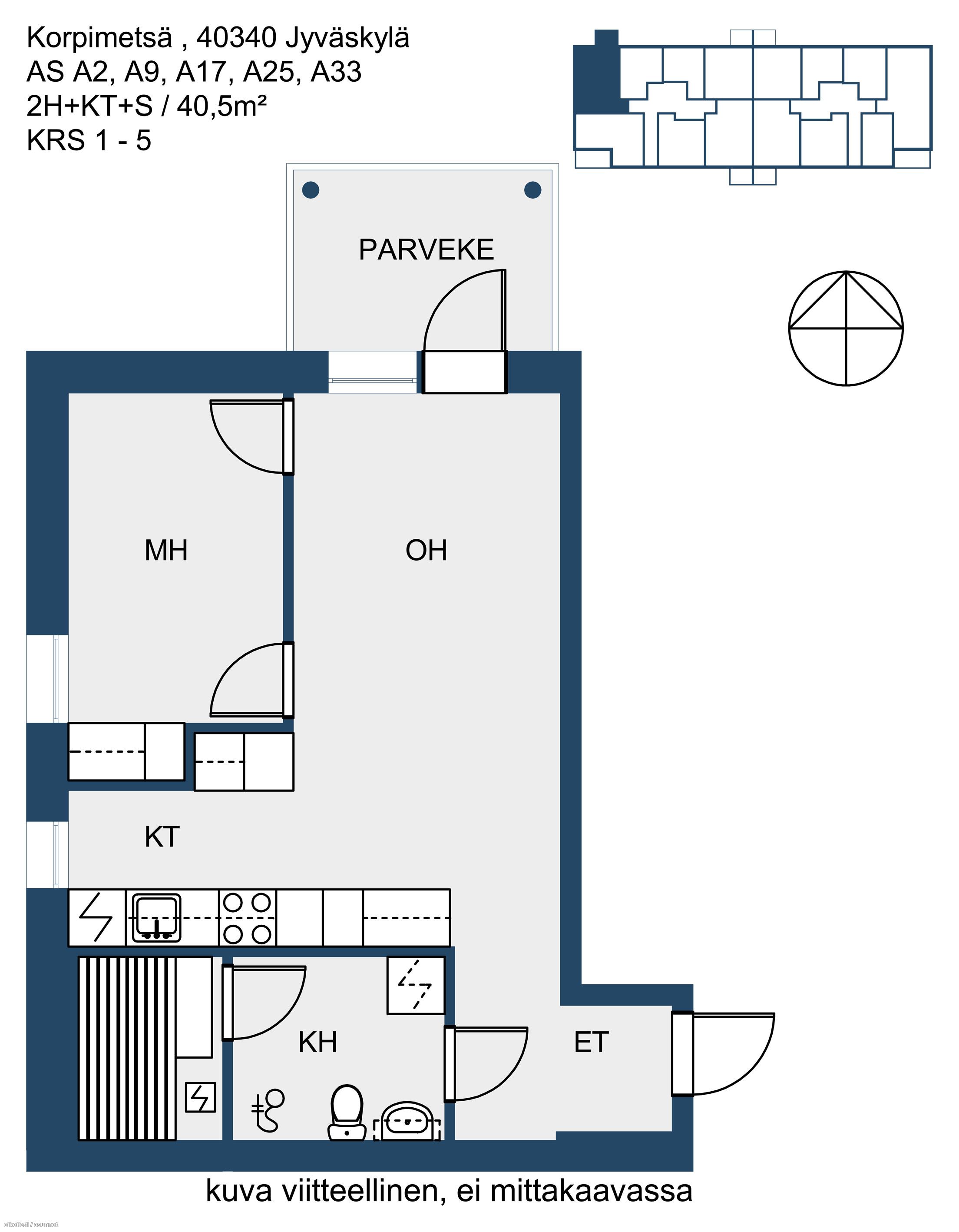
Huhta 5D A 17, 40340 Jyväskylä

610€ / kk

2h+kt+s+parv.

40.5㎡

Jyväskylä, Kangasrinne

Kolmannen kerroksen saunallinen ja parvekkeellinen asunto vapaana uudelle vuokralaiselle.

As Oy Jyväskylän Korpimetsä on valmistunut kesällä 2020 rauhalliselle asuinalueelle hyvien kulkuyhteyksien varteen. Lähikauppa Sale sijaitsee vain parinsadan metrin kävelymatkan päässä. Aivan vierestä löytyy Huhtasuon yhtenäiskoulu ja päiväkoti sekä terveysasema. Noin kilometrin päästä löytyvät Seppälän runsaat palvelut erikoisliikkeineen ja automarketteineen. Suosittu kauppakeskus Seppä tarjoaa palveluita laidasta laitaan. Yhteydet Jyväskylän keskustaan ovat myös hyvät. Matkaa keskustaan on noin viisi kilometriä, jonne myös pääsee hyvin julkisilla.

Lisäksi tämän taloyhtiön asukkaana sinulla on käytössäsi yhtiön parkkipaikalta löytyvä Omago -yhteiskäyttöauto. Auton käyttö maksaa sinulle vain 6€ /h ja hinta sisältää kaiken polttoaineista vakuutuksiin. Käyttö tapahtuu sovelluksella, jonka kautta voit varata auton käyttöösi haluamaasi ajankohtaan. Autona toimii näppärän kokoinen Volkswagen Polo.

Alueella on todella hyvät harrastusmahdollisuudet! Huhtasuon liikuntapuisto monipuolisine pallopelimahdollisuuksineen sijaitsee muutaman sadan metrin päässä. Kerrostalon viereisestä metsästä löytyy Frisbeegolf -rata. Myös kangasvuoren luontopolulle pääsee lenkkeilemään ja retkeilemään todella kätevästi. Lähellä myös hurjapäisille pyöräilijöille valmistettu pyörärata.

Asuntojen lattiat laminaattia, seinät maalipinnoin ja kylpyhuone laatoitettu. Keittiötilassa on yhdistetty jääkaappi ja pakastin, astianpesukone sekä liesi. Pesuhuoneeseen mahtuu hyvin pyykinpesukone. Ikkunoissa sälekaihtimet.

Pihasta mahdollista vuokrata lämpötolpallinen autopaikka hintaan 25€/kk.
Vesiennakkomaksu 22€/hlö/kk. Mediamaksu 7,90€/kk, sisältää kaapeli-TV:n peruskanavat ja 10M laajakaistan.
Valokuitu löytyy myös. Lemmikit tervetulleita!

Ota yhteyttä, kysy lisätietoja ja sovi näytöstä!

Kuvat otettu vastaavasta asunnosta.

Sijainti Huhta 5D A 17, 40340 Jyväskylä
Kaupunginosa Kangasrinne
Asuinpinta-ala 40.5 m²
Huoneiston kokoonpano 2h+kt+s+parv.
Huoneita 2
Kerros 3
Kunto Erinomainen
Parveke Kyllä
Asunnossa sauna Kyllä
Muut ehdot Vuokranmaksupäivä kk:n 5. päivä
Tilan pinta-ala 40.5m2
Asumistyyppi Vuokra

Vuokra 610€ / kk
Takuuvuokra 300€
Vesimaksu (teksti) Laskutetaan kulutuksen mukaisesti.Vesimaksuennakko 22,00 €.

Uudiskohde Ei
Valmistumisvuosi 2020
Talon tyyppi Kerrostalo
Kerroksia 5
Hissi Kyllä
Taloyhtiössä on sauna Ei
Energialuokka B2013
Energiatodistus Kyllä
Lisätietoja lämmityksestä K
Isännöinti Kiinteistö-Tahkola Jyväskylä Oy

Pysäköintimaksu Kyllä

Kartalla

Ota yhteyttä kohteesta

Kohteen tiedot

Huhta 5D A 17, 40340 Jyväskylä
Välittäjä: Niko Taimiaho
Välittäjän numero: 0447258301
Toimipiste: Vapaaherrantie 2 A, 40100 Jyväskylä
Yhteydenoton aihe

Vuokrattavat asunnot