Lipporannantie 5, 90500 Oulu

530€ / kk

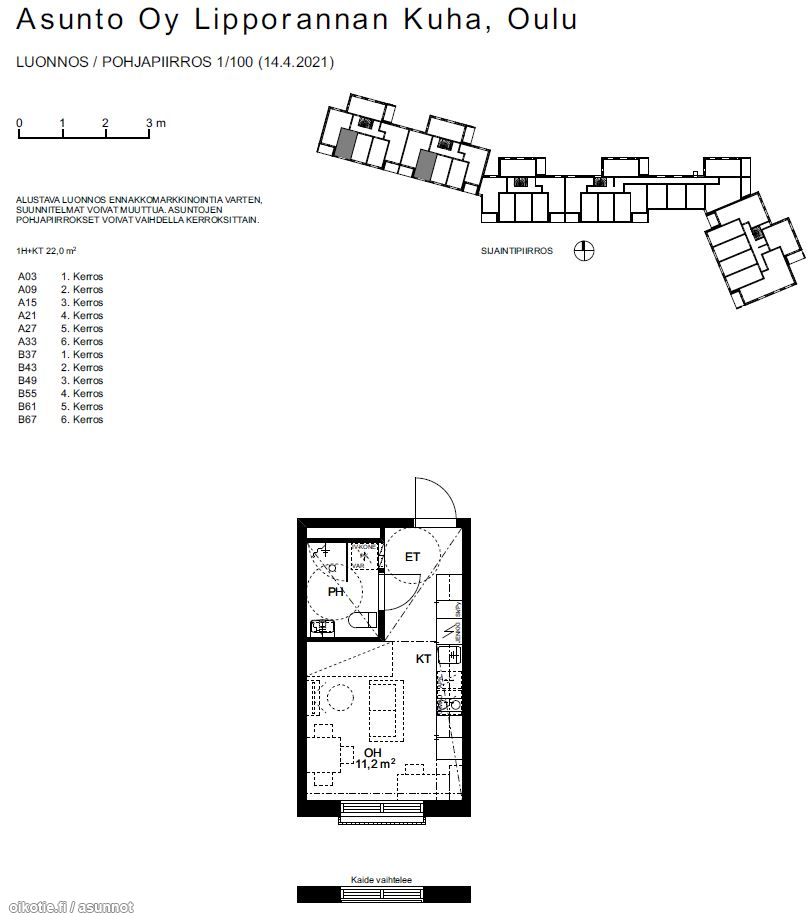
1h,kt,kh,rp

22㎡

Oulu, Tuira

Vapautuu 01.03.2026

Vuokrattavana yksiö upealle paikalta Oulujokisuiston läheisyydestä! Hartaanselän ja meren läheisyys luovat viihtyisät puitteet laadukkaalle asumiselle kaupungin parhaimmilla paikoilla, modernilla uudella asuinalueella Länsi-Tuirassa.

Tästä on hyvät kävely- ja pyörätiet kaupungin keskustaan, torille tai Toppilansaaren ulkoilu- ja virkistysalueelle. Löytyy luonnonläheisiä reittejä kävelysiltoineen ja vesistöineen. Vähän matkan päästä löytyy uimahallista urheilustadioniin ja melontareitteihin, alueella on erittäin monipuolisesti harrastusmahdollisuuksia. Lähelle rakentui myös v. 2025 uusi asuntomessualue

Tämä v. 2022 valmistunut viidennen (5 / 6) kerroksen yksiö on järkevä pohjaratkaisultaan. Huoneiston materiaalit ovat tyylikästä vaaleaa värimaailmaa, valkoiset maalatut seinät ja laminaattilattiassa lämmin tammen sävy. Valkoisesta keittiöstä löytyy nykyaikainen koneistus (mm. astianpesukone, jenkkikaappi, keraaminen liesi sekä uunimikro yhdistelmä) ja kaakeloidussa vaalean ja harmaan sävyisessä kylpyhuoneessa on paikka omalle pyykkikoneelle, sekä suihkuseinä. Olohuoneen päädyssä on ranskalaiset pariovet.

Taloyhtiöllä on pesutupa ja saunatilat, joihin on varattavissa vuoro erillismaksusta. Pihassa muutamakin polkupyörävarasto ja jokaiselle huoneistolle oma häkkivarasto taloyhtiön kellarissa.

Lämmitys ja internetin perusnopeus sisältyvät vuokraan, vesimaksu 20€/hlö/kk. Tähän kotiin on lemmikkieläimet neuvoteltavissa tapauskohtaisesti. Kysy tarvittaessa mahdollisuudesta autopaikkaan!

Taloyhtiö kuuluu Kotikatu365 piiriin, mikä tarjoaa asukkaiden käyttöön noin 500 m2 yhteistilat, ja jonka käyttömaksu on 17,80€/kk/huoneisto. Tiloista löytyvät mm. olohuone, vierashuone (lisämaksusta), kuntosali, kokous- ja juhlatila, erilliset saunatilat joissa ilmaisia yleisiä vuoroja että erillismaksusta omia varauksia, leikki- ja pelitila, it-työpisteet, seurusteluhuone ja aulatilat. Täällä voit lukaista päivän lehden, järjestää juhlat tai viettää aikaa seurustellen. Tämän lisäksi löytyy yhteiskäyttövälineitä kuten mm. yhteiskäyttöauto (lisämaksusta), lainattavat polkupyörät, vene, tikkaat yms.

-Vuokra 530€/kk
-Vakuus 530€
-Vesiennakko 20€/hlö/kk
-Vapautuu 1.3.2026
-Lämmitys ja laajakaistan perusnopeus sisältyy vuokraan
-Asunnon vuokraus edellyttää puhtaat luottotiedot

Tämä koti vapautuu 1.3.2026! Soita p. 040 571 0144 / Niina Lumila tai jätä yhteydenottopyyntö.

Sijainti Lipporannantie 5, 90500 Oulu
Kaupunginosa Tuira
Asuinpinta-ala 22 m²
Huoneiston kokoonpano 1h,kt,kh,rp
Huoneita 1
Kerros 5
Vapautuu 01.03.2026
Kunto Erinomainen
Parveke Ei
Asunnossa sauna Ei
Muut ehdot Vuokranmaksupäivä kk:n 5. päivä
Tilan pinta-ala 22m2
Asumistyyppi Vuokra

Vuokra 530€ / kk
Takuuvuokra 1kk:n vuokran suuruinen
Vesimaksu (teksti) Laskutetaan kulutuksen mukaisesti.Vesimaksuennakko 20,00 €.

Uudiskohde Ei
Valmistumisvuosi 2022
Talon tyyppi Kerrostalo
Kerroksia 6
Hissi Kyllä
Taloyhtiössä on sauna Ei
Energialuokka B2018
Energiatodistus Kyllä
Lisätietoja lämmityksestä K
Isännöinti Kiinteistötahkola

Pysäköintimaksu Ei

Kartalla

Ota yhteyttä kohteesta

Kohteen tiedot

Lipporannantie 5, 90500 Oulu
Välittäjä: Niina Lumila
Välittäjän numero: 0505710144
Toimipiste: Lumijoentie 1, 90400 Oulu
Yhteydenoton aihe

Vuokrattavat asunnot