Ilmarinkatu 4, 90400 Oulu

620€ / kk

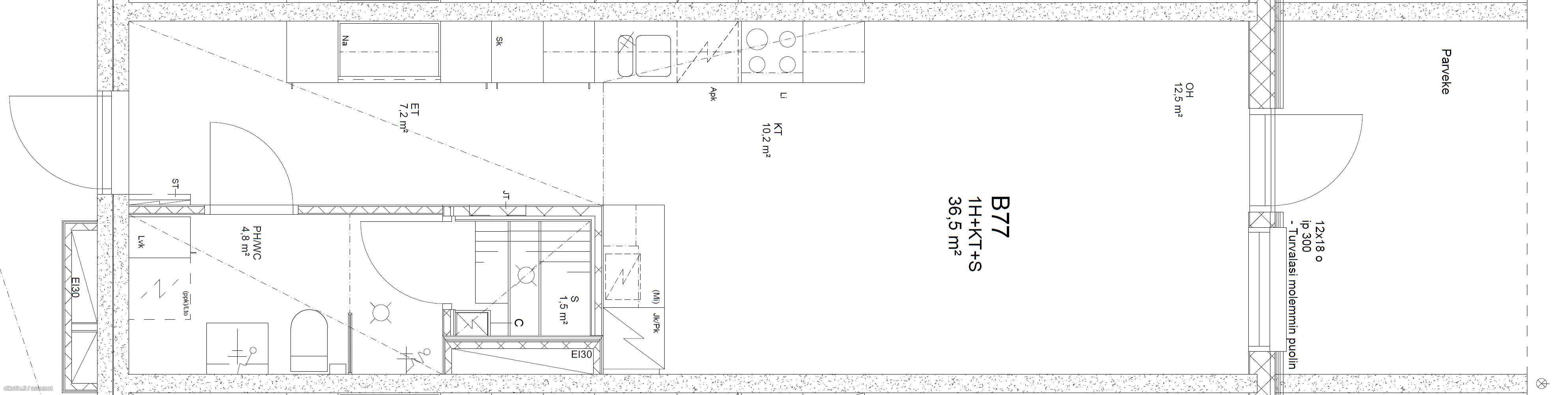
1h,kk,kh,sa,parv

36.5㎡

Oulu, Limingantulli

Vapautuu 01.03.2026

Limingantullissa Ilmarinkadulla vuokrattavana arkkitehtuurisesti kauniista kerrostalosta upea ylimmän kerroksen (5/5) iso ja valoisa yksiö, jossa on laadukkaat sisustusmateriaalit. Lattiat tammiparkettia, eteisaulassa led-valaistus, keittiössä modernit altaat ja vesikalusteet, cappuccinon väriset kaapistot ja antiikkitammikuvioiset työtasot. Tekniset varusteet liesi, astianpesukone ja jää-pakastinkaappi. Kylpyhuoneessa kivikuvioinen lattialaatta ja seinissä mattavalkoinen seinälaatta. Saunassa kuusipanelointi ja haapalauteet sekä tunnelmallinen led-valaistus. Tilava lasitettu parveke tuo lisäarvoa ja mukavuutta asumiseen. Vesi kulutuksen mukaan, ennakko 20€/hlö/kk. Vuokraa tästä viihtyisä ja upea kaupunkiasunto kodiksesi!

– Vuokra 620€/kk
– Vakuus 620€
– Vesimaksuennakko 20€/kk/hlö
– sisältää lämmityksen
– Vuokralainen ottaa oman kotivakuutuksen ja tekee käyttösähkösopimuksen
– Luottotiedot tarkistetaan

Tämä koti on 1.3.2026 vapaa! Jätä yhteydenottopyyntö tai soita arkisin klo 9-16.30 numeroon 050 569 5947 / Aake Tenttula

Sijainti Ilmarinkatu 4, 90400 Oulu
Kaupunginosa Limingantulli
Asuinpinta-ala 36.5 m²
Huoneiston kokoonpano 1h,kk,kh,sa,parv
Huoneita 1
Kerros 5
Vapautuu 01.03.2026
Kunto Erinomainen
Parveke Kyllä
Asunnossa sauna Kyllä
Muut ehdot Vuokranmaksupäivä kk:n 5. päivä
Tilan pinta-ala 36.5m2
Asumistyyppi Vuokra

Vuokra 620€ / kk
Takuuvuokra 1kk:n vuokran suuruinen
Vesimaksu (teksti) Laskutetaan kulutuksen mukaisesti.Vesimaksuennakko 20,00 €.

Uudiskohde Ei
Valmistumisvuosi 2014
Talon tyyppi Kerrostalo
Kerroksia 5
Hissi Kyllä
Taloyhtiössä on sauna Ei
Energialuokka H
Energiatodistus Kyllä
Lisätietoja lämmityksestä K
Isännöinti Kiinteistötahkola 0207 480 200

Pysäköintimaksu Ei

Kartalla

Ota yhteyttä kohteesta

Kohteen tiedot

Ilmarinkatu 4, 90400 Oulu
Välittäjä: Aake Tenttula
Välittäjän numero: 050 569 5947
Toimipiste: Lumijoentie 1, 90400 Oulu
Yhteydenoton aihe

Vuokrattavat asunnot