Verstastie 1, 33470 Ylöjärvi

6500€ / kk

Hallitila + toimisto

538㎡

Ylöjärvi, Elovainio

Erinomaisesti rakennettu hallikiinteistö Elovainiossa – huippusijainti ja poikkeuksellisen hyvät tilat

Tila soveltuu loistavasti monipuoliseen käyttöön.

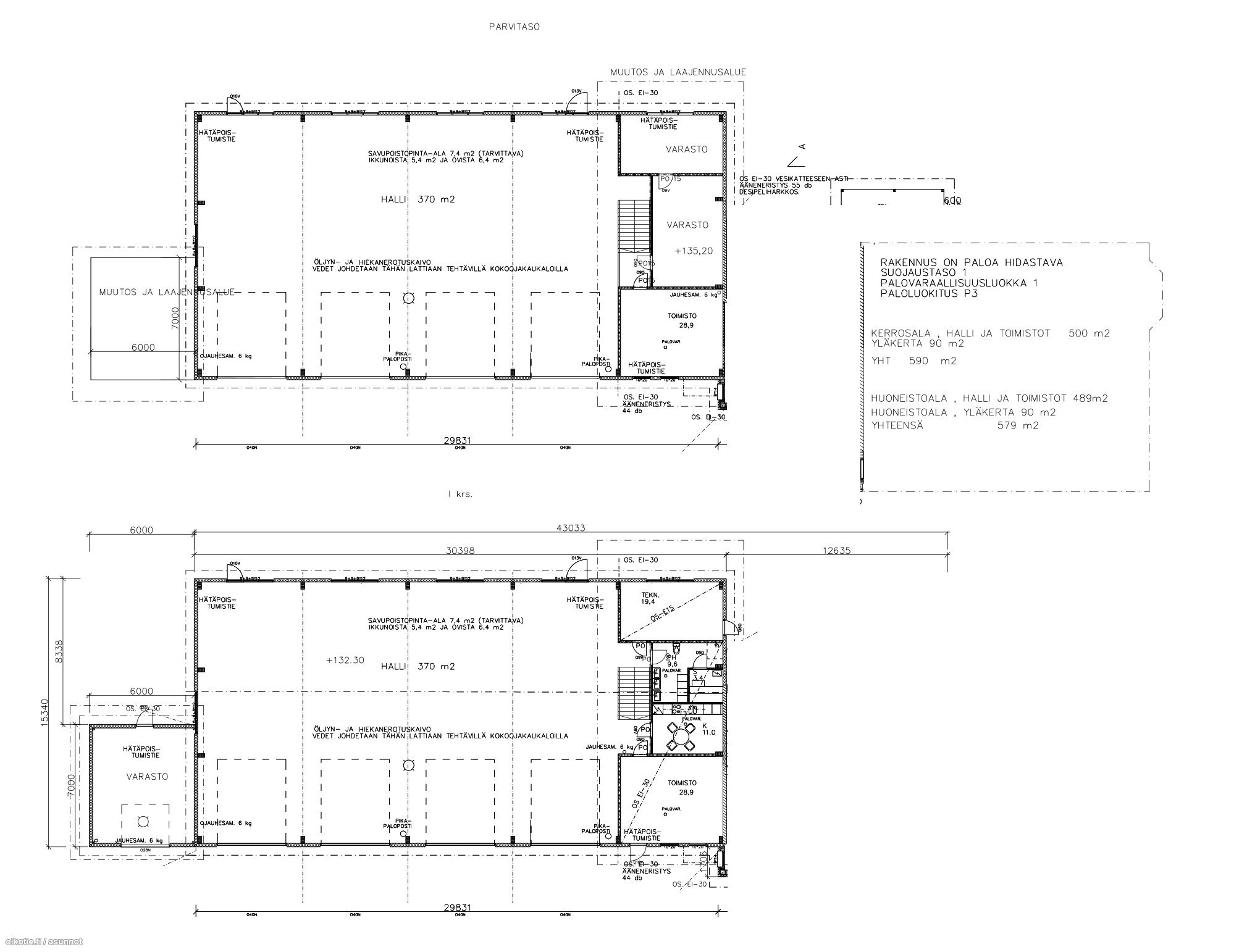
Ylöjärven Elovainiossa, arvostetulla ja kysytyllä alueella, tarjolla poikkeuksellisen laadukas hallitila. Kyseessä on mahdollisesti koko talousalueen parhaiten rakennettu halli – suunniteltu ja toteutettu erityisesti autohuollon tarpeisiin, nostureineen ja korkeine tiloineen. Rauhallinen sijainti metsän laidassa, aidattu ja asfaltoitu piha-alue tuo lisäturvaa ja toimivuutta.

Kokonaisuus tarjoaa monipuolista ja avaraa tilaa sekä erinomaiset sosiaalitilat: sauna, suihkut, keittiö, toimistohuoneet, asiakastilat ja varastotilat tekevät tilasta toimivan ja viihtyisän. Tilava yli 2000m2 piha-alue tuo hyvin tilaa asiakasvirralle.

Lattia on tehty erittäin kestävästä laatasta, ja keskelle sijoitettu kaivo helpottaa tilan puhtaanapitoa. Suuret, ikkunalliset nosto-ovet mahdollistavat suoran ajon sisään ja valoisan toimintaympäristön koko vuoden ympäri.

Lämmitys sisältyy vuokraan.

Kysy lisää!
jani.kaisto@kiinteistotahkola.fi / 040 960 6424

Sijainti Verstastie 1, 33470 Ylöjärvi
Kaupunginosa Elovainio
Asuinpinta-ala 538 m²
Huoneiston kokoonpano Hallitila + toimisto
Kerros 1
Kunto Erinomainen
Parveke Ei
Asunnossa sauna Ei
Muut ehdot Vuokranmaksupäivä kk:n 5. päivä
Tilan pinta-ala 538m2
Asumistyyppi Liikekiinteistövaihto

Vuokra 6500€ / kk
Takuuvuokra 1kk:n vuokran suuruinen

Uudiskohde Ei
Valmistumisvuosi 2011
Kerroksia 1
Hissi Ei
Taloyhtiössä on sauna Ei
Energialuokka A
Energiatodistus Kyllä
Lisätietoja lämmityksestä K

Pysäköintimaksu Ei

Kartalla

Ota yhteyttä kohteesta

Kohteen tiedot

Verstastie 1, 33470 Ylöjärvi
Välittäjä: Jani Kaisto
Välittäjän numero: 040 960 6424
Toimipiste: Kuokkamaantie 4, 33800 Tampere
Yhteydenoton aihe

Vuokrattavat toimitilat