Iso Roobertinkatu 52, 00120 Helsinki

1000€ / kk

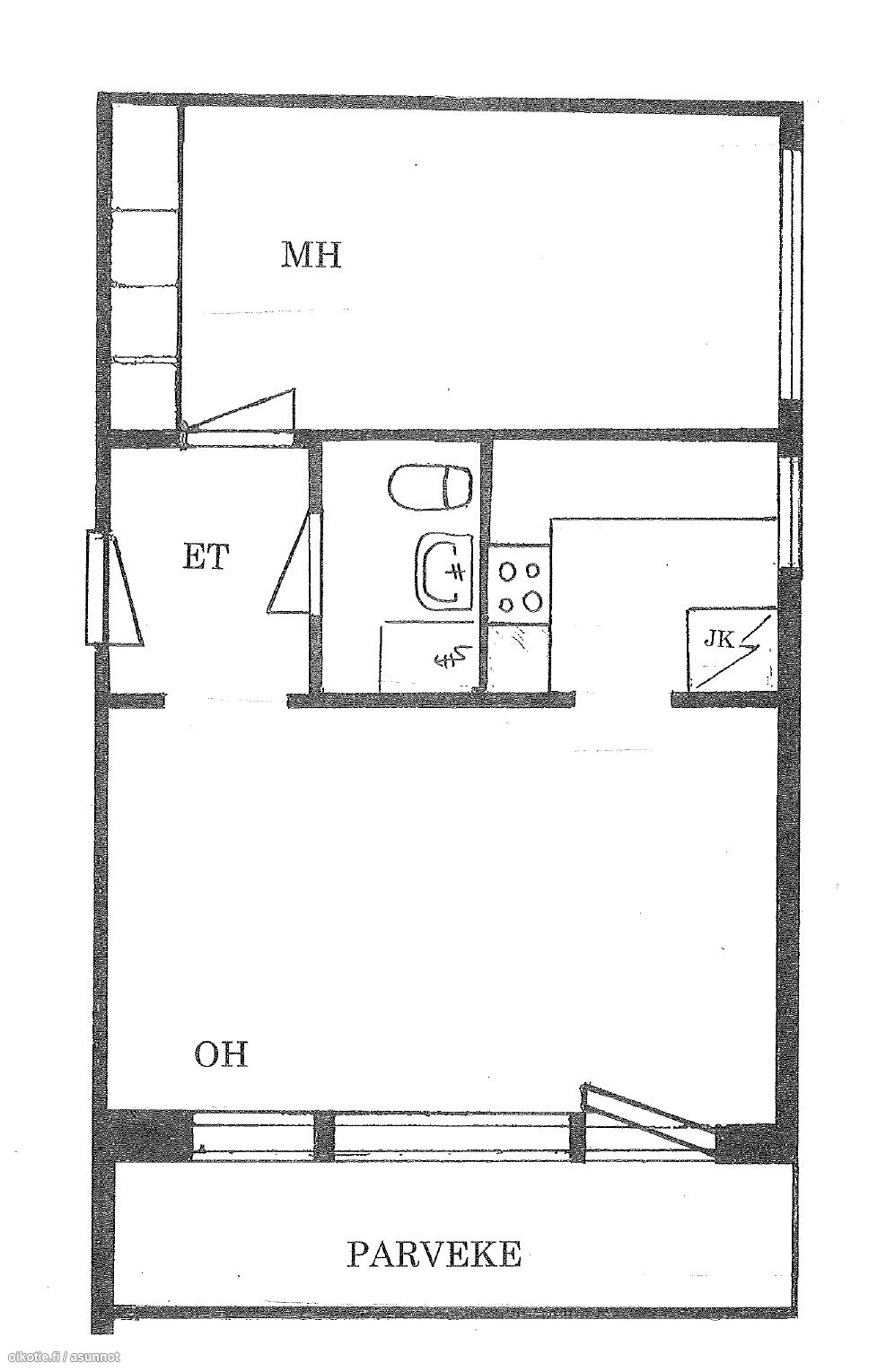
2h,kk,kh,parv

38㎡

Helsinki, Punavuori

Viihtyisä kaksio Punavuoresta!

Loistavalla paikalla Sinebrychoffin-puiston reunalla viidennen kerroksen kaksio. Todella hiljainen ja rauhallinen yhtiö.

Makuhuoneessa on tilaa isommallekin sängylle sekä hyvin säilytystilaa. Kylpyhuoneessa on lavuaarin alla paikka pyykinpesukoneelle. Lasitettu parveke tuo lisää viihtyvyyttä asumiseen.

-Vuokra 1000€
-Vakuus 1000€
-Vesimaksu 25€/kk/hlö
-Vuokralainen tekee oman sähkösopimuksen ja ottaa kotivakuutuksen

Vuokrasopimus tehdään toistaiseksi voimassa olevana – ensimmäinen mahdollinen irtisanomisajan alkamispäivä on 11 kuukauden kuluttua vuokrasopimuksen alkamisesta. Vuokralainen voi irtisanoutua aikaisemminkin maksamalla 1 kk:n vuokran suuruisen irtisanomiskorvauksen vuokranantajalle.

Kysy näyttöä tai lisätietoja silja.p.ojala@kiinteistotahkola.fi. Jos olet kiinnostunut vuokraamaan asunnon, täytä hakemus osoitteessa https://kiinteistotahkola.fi/vuokra-asuntohakemus/

Sijainti Iso Roobertinkatu 52, 00120 Helsinki
Kaupunginosa Punavuori
Asuinpinta-ala 38 m²
Huoneiston kokoonpano 2h,kk,kh,parv
Huoneita 2
Kerros 5
Kunto Erinomainen
Parveke Kyllä
Asunnossa sauna Ei
Muut ehdot Vuokranmaksupäivä kk:n 5. päivä
Tilan pinta-ala 38m2
Asumistyyppi Vuokra

Vuokra 1000€ / kk
Takuuvuokra 1kk:n vuokran suuruinen
Vesimaksu 25€ / kk

Uudiskohde Ei
Valmistumisvuosi 1963
Talon tyyppi Kerrostalo
Kerroksia 6
Hissi Kyllä
Taloyhtiössä on sauna Kyllä
Energialuokka E2018
Energiatodistus Kyllä
Lisätietoja lämmityksestä K

Pysäköintimaksu Ei

Kartalla

Ota yhteyttä kohteesta

Kohteen tiedot

Iso Roobertinkatu 52, 00120 Helsinki
Välittäjä: Silja Ojala
Välittäjän numero: 050 473 1643
Toimipiste: Itälahdenkatu 15-17, 00210 Helsinki
Yhteydenoton aihe

Vuokrattavat asunnot