Puustellinniitynkaari 3, 04300 Tuusula

822€ / kk

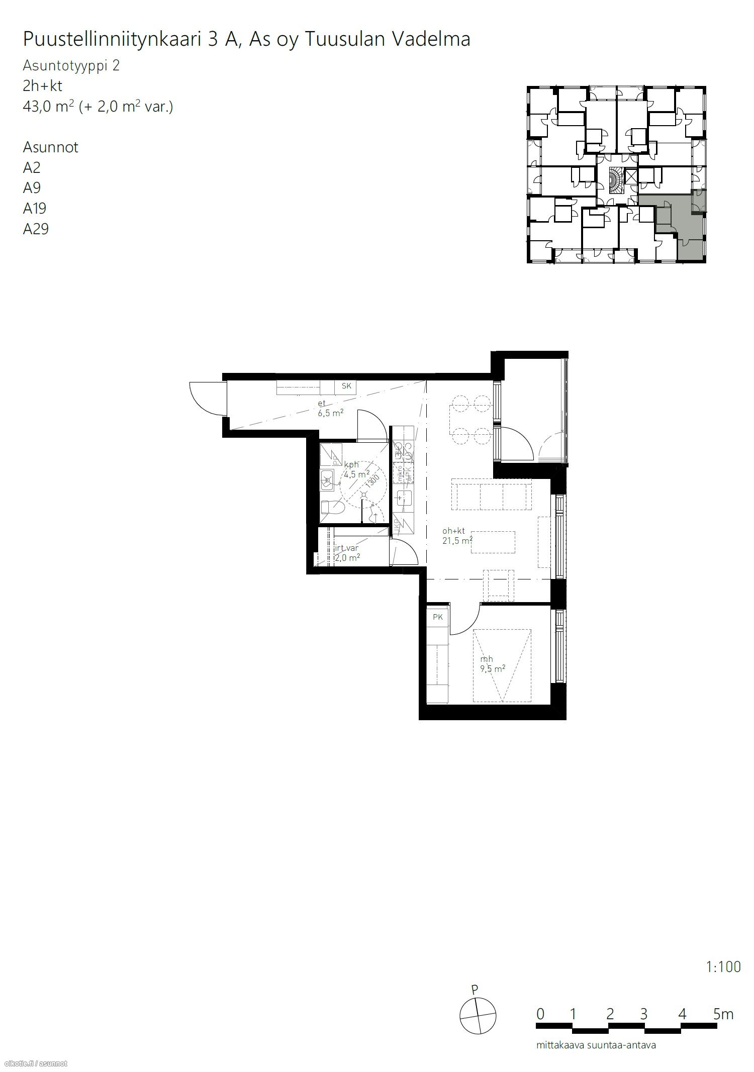
2h+kt+parv

43㎡

Tuusula, Hyrylä

Uuden vuokralaisen Etu! Ensimmäiselle neljälle asumiskuukaudelle saat -50% alennuksen vuokrasta. Sopimuksen pitää alkaa viimeistään 1.1. Kampanja-ajan jälkeen tämän asunnon vuokra on 822€/kk.

Valoisa tilava kaksio viilennyksellä Tuusulan Rykmentinpuistosta!

Tämä asunto sijaitsee rauhallisella paikalla Tuusulan Rykmentinpuistossa. Asunto on valoisa ja avara lattiasta kattoon ulottuvien ikkunoiden ansiosta. Keittiö on moderni ja sieltä löytyy laadukkaat kodinkoneet integroituna. Lisämukavuutta tuo viilennys sekä lasitettu parveke. Irtaimistovarasto sijaitsee asunnon sisällä, sitä ei ole laskettu mukaan ilmoitettuun pinta-alaan. Kylpyhuone on tilava ja sieltä löytyy paikka ja liitännät pesukoneelle.

As Oy Tuusulan Mustikassa on 50M taloyhtiölaajakaista ja asukkaiden käytössä on pesutupa sekä viihtyisä saunaosasto.

Rykmentinpuistosta pääset kulkemaan näppärästi eri puolille pääkaupunkiseutua. Asunnon vuokrauksen yhteydessä on mahdollisuus vuokrata autopaikka, josta e-Parking järjestelmä. Tämä mahdollistaa esimerkiksi sähköautojen latauksen. Taloyhtiössä on myös yhteiskäyttöautona täyssähköinen Nissan Leaf.

– Vuokra 411€/kk (Kampanja-ajan jälkeen vuokra: 822€/kk)
– Vakuus 820€
– Vesimaksuennakko 26 €/kk/hlö
– Mediamaksu 10€/kk
– Vuokralainen tekee oman sähkösopimuksen ja ottaa kotivakuutuksen.

Vuokrasopimus tehdään toistaiseksi voimassa olevana – ensimmäinen mahdollinen irtisanomisajan alkamispäivä on 11 kuukauden kuluttua vuokrasopimuksen alkamisesta. Vuokralainen voi irtisanoutua aikaisemminkin maksamalla 1 kk:n vuokran suuruisen irtisanomiskorvauksen vuokranantajalle.

Kysy näyttöä tai lisätietoja joel.sjoman@kiinteistotahkola.fi tai 0505701320.
Voit myös täyttää asuntohakemuksen osoitteesta:https://kiinteistotahkola.fi/vuokra-asuntohakemus/

Sijainti Puustellinniitynkaari 3, 04300 Tuusula
Kaupunginosa Hyrylä
Asuinpinta-ala 43 m²
Huoneiston kokoonpano 2h+kt+parv
Huoneita 2
Kerros 2
Kunto Erinomainen
Parveke Kyllä
Asunnossa sauna Ei
Muut ehdot Vuokranmaksupäivä kk:n 5. päivä
Tilan pinta-ala 43m2
Asumistyyppi Vuokra

Vuokra 822€ / kk
Takuuvuokra 1kk:n vuokra
Vesimaksu (teksti) Laskutetaan kulutuksen mukaisesti.Vesimaksuennakko 26,00 €.

Uudiskohde Ei
Valmistumisvuosi 2023
Talon tyyppi Kerrostalo
Kerroksia 5
Hissi Kyllä
Taloyhtiössä on sauna Ei
Energialuokka A2018
Energiatodistus Kyllä
Lisätietoja lämmityksestä K

Pysäköintimaksu Kyllä

Kartalla

Ota yhteyttä kohteesta

Kohteen tiedot

Puustellinniitynkaari 3, 04300 Tuusula
Välittäjä: Joel Sjöman
Välittäjän numero: 050 570 1320
Toimipiste: Itälahdenkatu 15-17, 00210 Helsinki
Yhteydenoton aihe

Vuokrattavat asunnot