Rommakkokatu 4, 90120 Oulu

640€ / kk

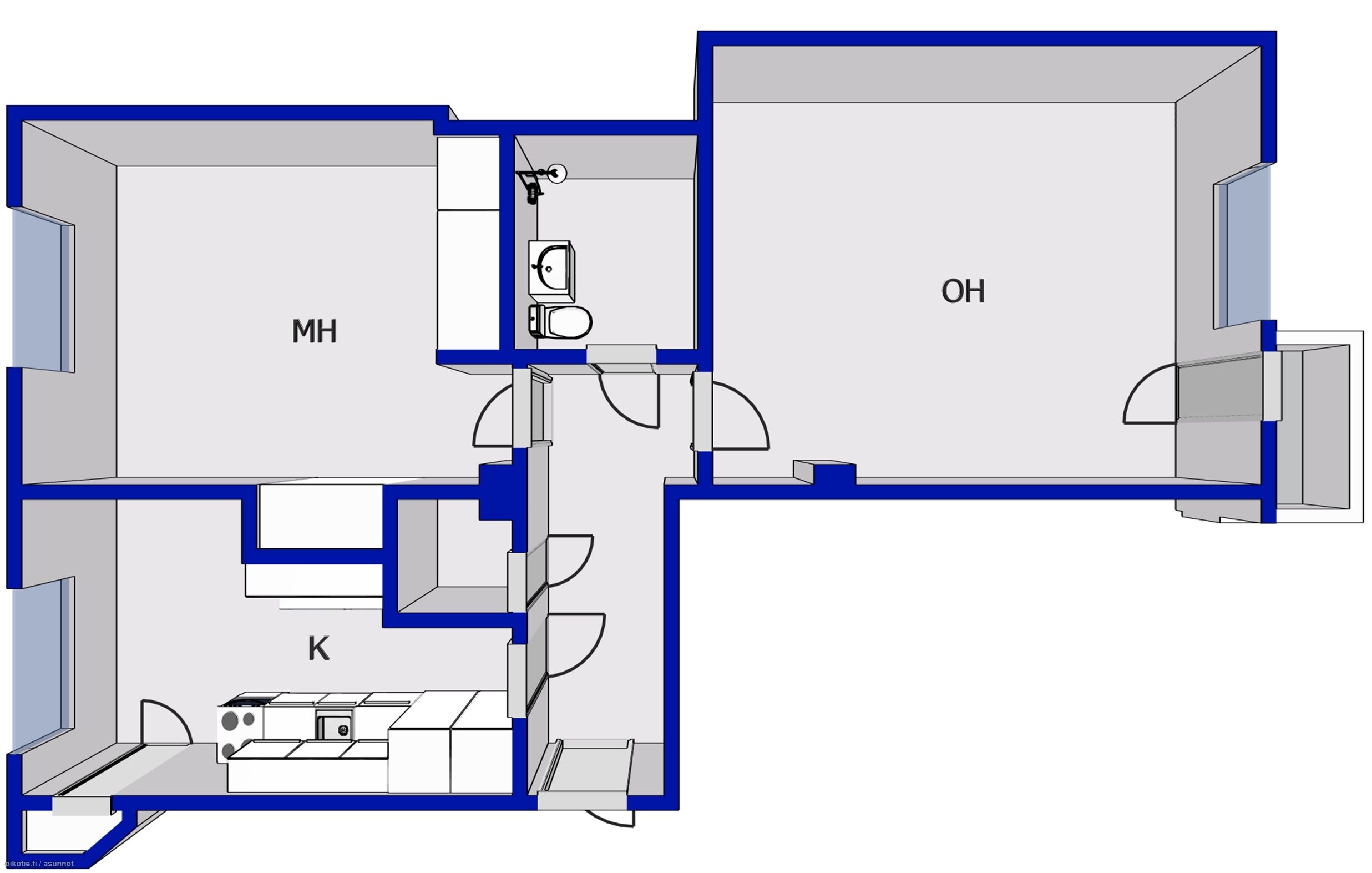
2h,k,kh,parv

62㎡

Oulu, Heinäpää

Ei vuokravakuutta!

Heinäpäästä, puistomaisessa ympäristössä, vuokrattavana todella tilava toisen (2/5) kerroksen kaksio omalla parvekkeella. Lattiassa laminaatti ja seinät maalattu maalipinnoin. Keittiössä pirteät keltaiset kaapistot tuomassa persoonallisuutta! Uuni/liesi ja jääkaappipakastin kuuluu varusteluun, mutta valitettavasti asuntoon ei saa astianpesukonetta. Kylpyhuoneessa on tila ja liitännät pyykinpesukoneelle.

Vesimaksu kiinteä 24€/hlö/kk ja lämmitys sisältyy vuokraan. Kysy tarvittaessa myös mahdollisuudesta pistokkeelliseen pihapaikkaan autolle 15€/kk tai kylmään autotallipaikkaan 30€/kk. Taloyhtiössä on myös sauna (10€/kk) ja ilmainen pesutupa asukkaiden käytettävissä. Lemmikit tapauskohtaisesti neuvoteltavissa.

– Vuokra 640€/kk
– Ei vakuutta!
– Vuokraan sisältyy lämmitys ja 10M DNA netti
– Vesimaksu kiinteä 24€/hlö/kk
– Kysy tarvittaessa autopaikkaa

Soita p. 040 152 9999, laita meiliä vuokra.oulu@kiinteistotahkola.fi tai jätä yhteydenottopyyntö, ja kysy lisää tästä heti muuttovalmiista kodista!

Sijainti Rommakkokatu 4, 90120 Oulu
Kaupunginosa Heinäpää
Asuinpinta-ala 62 m²
Huoneiston kokoonpano 2h,k,kh,parv
Huoneita 2
Kerros 2
Kunto Erinomainen
Parveke Kyllä
Asunnossa sauna Ei
Muut ehdot Vuokranmaksupäivä kk:n 5. päivä
Tilan pinta-ala 62m2
Asumistyyppi Vuokra

Vuokra 640€ / kk
Takuuvuokra ei vakuutta
Vesimaksu 24€ / kk

Uudiskohde Ei
Valmistumisvuosi 1953
Talon tyyppi Kerrostalo
Kerroksia 5
Hissi Kyllä
Taloyhtiössä on sauna Kyllä
Energialuokka H
Energiatodistus Kyllä
Lisätietoja lämmityksestä K
Isännöinti Kiinteistötahkola

Pysäköintimaksu Kyllä
Yhteiset tilat Pesutupa

Kartalla

Ota yhteyttä kohteesta

Kohteen tiedot

Rommakkokatu 4, 90120 Oulu
Välittäjä: Kiinteistötahkola Oulu
Välittäjän numero: 0401529999
Toimipiste: Lumijoentie 1, 90400 Oulu
Yhteydenoton aihe

Vuokrattavat asunnot