Lipporannantie 5, 90500 Oulu

690€ / kk

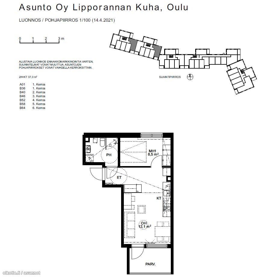
2h,kt,kh,las.parv

37㎡

Oulu, Lipporanta

Vuokrattavana joulukuussa 2022 valmistuneesta, As Oy Lipporannan Kuhasta, kiva lasitetulla parvekkeella varusteltu kaksio uusille vuokralaisille!

Hartaanselän ja meren läheisyys luovat viihtyisät puitteet laadukkaalle asumiselle kaupungin parhaimmilla paikoilla, modernilla uudella asuinalueella Länsi-Tuirassa. Tästä on hyvät kävely- ja pyörätiet kaupungin keskustaan, torille tai Toppilansaaren ulkoilu- ja virkistysalueelle. Löytyy luonnonläheisiä reittejä kävelysiltoineen ja vesistöineen. Vähän matkan päästä löytyy uimahallista urheilustadioniin ja melontareitteihin, alueella on erittäin monipuolisesti harrastusmahdollisuuksia.

Tämän neljännen (4/6) kerroksen kaksion sisustusmateriaalit ovat tyylikästä vaaleaa värimaailmaa: valkoiset maalatut seinät ja lattiat laminaattia. Keittiötilasta löytyy nykyaikainen koneistus eli jenkkikaappi, keraaminen liesi ja astianpesukone. Kaakeloidussa kylpyhuoneessa on paikka omalle pyykkikoneelle. Tilava lasitettu parveke tuo yhden huoneen lisää aina keväästä alkaen!

Kotikatu365 tarjoaa asukkaiden käyttöön noin 500 m2 yhteistilat, josta löytyvät mm olohuone, vierashuone, kuntosali, kokous- ja juhlatila, saunatilat, leikki- ja pelitila, it-työpisteet, seurusteluhuone ja aulatilat. Yhteiskäyttövälineet mm yhteiskäyttöauto, lainattavat polkupyörät, vene yms. Täällä voit lukaista päivän lehden, järjestää juhlat tai viettää aikaa seurustellen. Myös asukkaiden vieraat voivat majoittua yhteistilojen vierashuoneeseen. Palvelut kuuluu pääosin 17,80€/kk yhteispalvelumaksuun, joka maksetaan vuokran lisäksi, osasta palveluista peritään erilliskorvaus käytön mukaan (esim oma saunavuoro, vierashuone)

– Vuokra 690€
– Vuokravakuus 690€
– Vesimaksuennakko 20€/hlö/kk
– Lämmitys ja laajakaistan perusnopeus sisältyvät vuokraan
– Asunnon mukana ei ole suoraan vuokrattavana autopaikkaa, mutta voin antaa yhteystiedot autopaikkoja vuokraavalle taholle

Vuokralaiselta edellytetään puhtaat luottotiedot, laaja kotivakuutus vastuuosineen sekä oma sähkösopimus. Sopimus on toistaiseksi voimassaoleva, 1kk irtisanomisajalla irtisanottavissa, mutta vuokrasuhteen kestäessä alle 12kk, sopimuksen irtisanoneen osapuolen tulee maksaa 1 kk:n vuokran suuruinen sopimussakko sopimuksen toiselle osapuolelle.

Tämä koti vapautuu sovittaessa 16.12.2025.-1.1.2026. Soita arkisin 9.-16.30 (myös tekstiviesti tai whatsapp käy hyvin) tai jätä yhteydenottopyyntö ja kysy lisää!

Sijainti Lipporannantie 5, 90500 Oulu
Kaupunginosa Lipporanta
Asuinpinta-ala 37 m²
Huoneiston kokoonpano 2h,kt,kh,las.parv
Huoneita 2
Kerros 4
Kunto Erinomainen
Parveke Kyllä
Asunnossa sauna Ei
Muut ehdot Vuokranmaksupäivä kuukauden 5.päivä
Tilan pinta-ala 37m2
Asumistyyppi Vuokra

Vuokra 690€ / kk
Takuuvuokra 1kk vuokran suuruinen
Vesimaksu (teksti) Laskutetaan kulutuksen mukaisesti.Vesimaksuennakko 20,00 €.

Uudiskohde Ei
Valmistumisvuosi 2022
Talon tyyppi Kerrostalo
Kerroksia 6
Hissi Kyllä
Taloyhtiössä on sauna Ei
Energialuokka B2018
Energiatodistus Kyllä
Lisätietoja lämmityksestä K
Isännöinti Terwa isännöinti

Pysäköintimaksu Ei

Kartalla

Ota yhteyttä kohteesta

Kohteen tiedot

Lipporannantie 5, 90500 Oulu
Välittäjä: Jonna Lakso
Välittäjän numero: 0447060200
Toimipiste: Lumijoentie 1, 90400 Oulu
Yhteydenoton aihe

Vuokrattavat asunnot