Kangastie 7, 90500 Oulu

595€ / kk

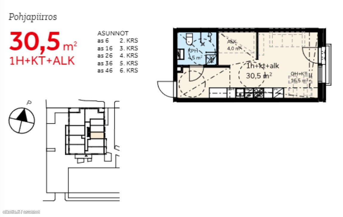
1h,kt,kh,alk,rp

30.5㎡

Oulu, Tuira

Vapautuu 01.01.2026

Haluatko viihtyisää asumista lähellä luontoa ja palveluita? Nyt vapautumassa upea yksiö seuraavalle asukkaalle! Lähellä jokivarren ulkoilukadut, keskustan palvelut, Tuiran kaupat ja Nallikari uimarantoineen. Todella hyvät kulkuyhteydet, pyöräbaana kulkee vierestä ja laajat bussiyhteydet joka puolelle Oulua menee läheltä.

Tässä viidennen (5/7) kerroksen yksiössä on toimiva pohjaratkaisu alkovineen. Kodin kaapistot ja keittiö on sijoitettu yhdelle seinälle, jolloin muu tila jää vapaasti sisustettavaksi. Keittiössä on valmiina astianpesukone, jääkaappipakastin sekä erillisuuni liesitasoineen. Olohuoneessa on tilaa ruokapöydälle ja vaikkapa sohvalle. Olohuoneesta avautuu myös kodin ranskalainen parveke. Kylpyhuoneessa on varaus pyykinpesukoneelle ja kuivausrummulle. Halutessasi altaan viereen mahtuu vaikkapa pieni hyllykkö. Asunnon lattiat ovat kaunista laminaattia, ja seinät maalipinnoin.

Huoneistovarastot, polkupyörävarasto ja ulkoiluvälinevarasto sijaitsevat talon ensimmäisessä kerroksessa.

-Vuokra 595€/kk
-Vakuus 595€
-Vesimaksu 20€/kk/hlö
-Sisältää lämmityksen ja taloyhtiölaajakaistan 10M
-Vuokralainen ottaa oman kotivakuutuksen ja tekee käyttösähkösopimuksen
-Vaaditaan puhtaat luottotiedot!

Tämä ihastuttava koti vapautuu 1.1.2026. Laita viestiä, soita p. 050 4667491/ Manu Saarikoski tai jätä yhteydenottopyyntö, käydään ihastelemassa paikan päällä!

Sijainti Kangastie 7, 90500 Oulu
Kaupunginosa Tuira
Asuinpinta-ala 30.5 m²
Huoneiston kokoonpano 1h,kt,kh,alk,rp
Huoneita 1
Kerros 5
Vapautuu 01.01.2026
Kunto Erinomainen
Parveke Ei
Asunnossa sauna Ei
Muut ehdot Vuokranmaksupäivä kk:n 5. päivä
Tilan pinta-ala 30.5m2
Asumistyyppi Vuokra

Vuokra 595€ / kk
Takuuvuokra 1kk:n vuokran suuruinen
Vesimaksu 20€ / kk

Uudiskohde Ei
Valmistumisvuosi 2023
Talon tyyppi Kerrostalo
Kerroksia 7
Hissi Kyllä
Taloyhtiössä on sauna Ei
Energialuokka B
Energiatodistus Kyllä
Lisätietoja lämmityksestä K
Isännöinti OIT

Pysäköintimaksu Ei

Kartalla

Ota yhteyttä kohteesta

Kohteen tiedot

Kangastie 7, 90500 Oulu
Välittäjä: Manu Saarikoski
Välittäjän numero: 050 466 7491
Toimipiste: Lumijoentie 1, 90400 Oulu
Yhteydenoton aihe

Vuokrattavat asunnot