Kokinniitty 11, 02250 Espoo

625€ / kk

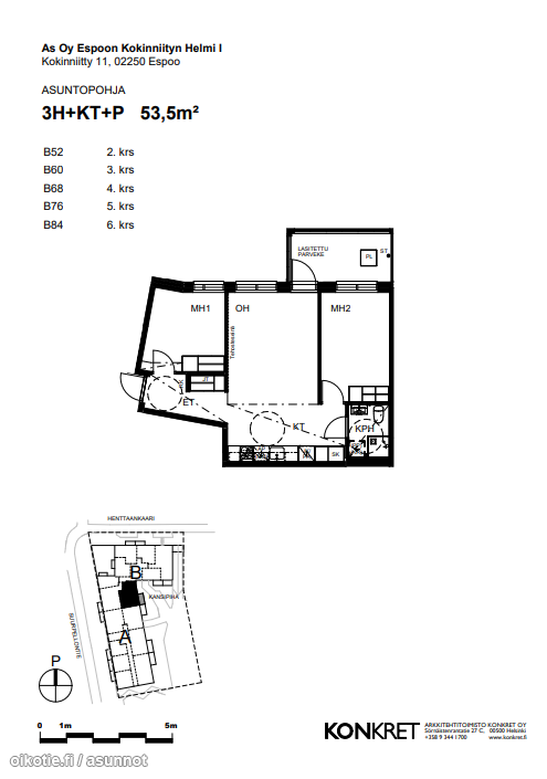
3h+kt+p

53.5㎡

Espoo, Suurpelto

Vapautuu 01.01.2026

Vuokrataan valoisa ja viihtyisä asunto Espoon kokinniitystä!

Tässä asunnossa on tilaa ja avaruutta arjen sujuvuuteen. Lattiassa tyylikäs laminaatti ja vaaleat seinäpinnat tuovat sisustukseen valoisuutta ja raikkautta.
Tilavasta pesuhuoneesta löytyvät valmiit liitännät pyykinpesukoneelle. Moderni keittiö on varustettu nykyaikaisilla kodinkoneilla – myös astianpesukone kuuluu mukavuuksiin.
Säilytystilaa on runsaasti kaapistoissa, mikä helpottaa kodin arjen järjestelyä.

Espoon Kokinniityn Helmen uudet asunnot ovat varusteltu modernilla keskusilmanvaihto-viilennyksellä, jolla asuntoja saadaan viilennettyä jopa useita asteita!

Kokinniitty sijaitsee Espoon Henttaan kaupunginosassa, Suurpellon ja Olarin välimaastossa – rauhallinen sijainti, mutta silti hyvien kulkuyhteyksien äärellä. Alueelta löytyy viihtyisiä ympärivuotisia ulkoilureittejä ja puistoalueita. Aivan kivenheiton päästä löytyvät Ostoskeskus Suuris. Alue on erityisen ihanteellinen lapsiperheille, opiskelijoille ja kaikille, jotka arvostavat luonnonläheisyyttä ja kaupunkielämän mukavuuksia.

Asukkaiden käyttöön tulee autohallipysäköinti, joka mahdollistaa auton lämmityksen- sekä latauksen! Lisäksi asukkaat saavat käytössä on hyvät varastointitilat sekä 50/50M laajakaista sekä taloyhtiön sauna, joka sijaitsee ylimmässä kerroksessa!

Uuden vuokralaisen etu! Ensimmäiselle neljälle asumiskuukaudelle saat -50% alennuksen vuokrasta. Sopimuksen pitää alkaa viimeistään 1.1. Kampanja-ajan jälkeen tämän asunnon vuokra on 1250€

– Vuokra: 625€ Kampanja-ajan jälkeen vuokra: 1250€/kk.
– Vakuus: 1250€
– Mediamaksu 10€/kk
– Lemmikit tervetulleita
– Autohallipaikka 65€/kk
– Vesimaksuennakko 26€/kk/hlö
– Vuokralainen tekee oman sähkösopimuksen ja ottaa kotivakuutuksen.

Vuokrasopimus tehdään toistaiseksi voimassa olevana – ensimmäinen mahdollinen irtisanomisajan alkamispäivä on 11 kuukauden kuluttua vuokrasopimuksen alkamisesta. Vuokralainen voi irtisanoutua aikaisemminkin maksamalla 1 kk:n vuokran suuruisen irtisanomiskorvauksen vuokranantajalle.

Asunto vapautuu 1.1.2026 Kysy näyttöä tai lisätietoja tuulia.riihimaki@kiinteistotahkola.fi tai 050 411 1035. Voit myös täyttää hakemuksen osoitteessa https://kiinteistotahkola.fi/valitys/vuokravalitys/vuokralaiselle/vuokra-asuntohakemus/

Sijainti Kokinniitty 11, 02250 Espoo
Kaupunginosa Suurpelto
Asuinpinta-ala 53.5 m²
Huoneiston kokoonpano 3h+kt+p
Huoneita 3
Kerros 4
Vapautuu 01.01.2026
Kunto Erinomainen
Parveke Kyllä
Asunnossa sauna Ei
Muut ehdot Vuokranmaksupäivä kk:n 5. päivä
Tilan pinta-ala 53.5m2
Asumistyyppi Vuokra

Vuokra 625€ / kk
Takuuvuokra 1kk:n vuokran suuruinen
Vesimaksu (teksti) Laskutetaan kulutuksen mukaisesti.Vesimaksuennakko 26,00 €.

Uudiskohde Ei
Valmistumisvuosi 2025
Talon tyyppi Kerrostalo
Kerroksia 6
Hissi Kyllä
Taloyhtiössä on sauna Ei
Energialuokka A2018
Energiatodistus Kyllä
Lisätietoja lämmityksestä K
Isännöinti Kiinteistötahkola Helsinki

Pysäköintimaksu Ei

Kartalla

Ota yhteyttä kohteesta

Kohteen tiedot

Kokinniitty 11, 02250 Espoo
Välittäjä: Tuulia Riihimäki
Välittäjän numero: 0504111035
Toimipiste: Itälahdenkatu 15-17, 00210 Helsinki
Yhteydenoton aihe

Vuokrattavat asunnot