Vuokrataan Oulun keskustasta remontoitua toimistotilaa hyvältä sijainnilta!
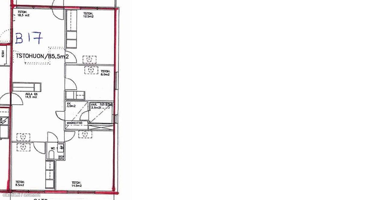
Tämä juuri pintaremontista valmistunut tyylikäs 85,5m2 toimistotila sijaitsee hissillisen talon toisessa kerroksessa. Tilat koostuvat neljästä toimistohuoneesta, keittiöstä, aulasta, vessasta ja isosta lasitetusta parvekkeesta. Tilat ovat siistit ja lisävarustuksena huoneissa on jäähdytyslaitteet.
Tila on heti vapaa vuokrattavaksi.
Vuokra 950 €/kk + alv sisältäen lämmityksen.
Vesi ja käyttösähkö erilliskustannuksena.
Mahdollista vuokrata myös alvittomaan toimintaan!
Ole yhteydessä ja kysy lisää!
Esittelyt ja lisätiedot:
Sami Kortesoja, 0458964803
sami.kortesoja@kiinteistotahkola.fi
Eikö tämä ole sopiva? Kysy muita vaihtoehtojamme!
| Sijainti | Uusikatu 58, 90100 Oulu |
|---|---|
| Kaupunginosa | Keskusta |
| Asuinpinta-ala | 85.5 m² |
| Huoneiston kokoonpano | Toimisto |
| Kerros | 2 |
| Kunto | Erinomainen |
| Parveke | Ei |
| Asunnossa sauna | Ei |
| Muut ehdot | Vuokranmaksupäivä kk:n 5. päivä |
| Tilan pinta-ala | 85.5m2 |
| Asumistyyppi | Liikekiinteistövaihto |
| Vuokra | 950€ / kk |
|---|---|
| Takuuvuokra | 3kk:n vuokran suuruinen |
| Vesimaksu (teksti) | Laskutetaan kulutuksen mukaisesti. |
| Uudiskohde | Ei |
|---|---|
| Valmistumisvuosi | 1983 |
| Kerroksia | 3 |
| Hissi | Kyllä |
| Taloyhtiössä on sauna | Ei |
| Energiatodistus | Ei |
| Lisätietoja lämmityksestä | K |
| Isännöinti | Kiinteistötahkola |
| Pysäköintimaksu | Kyllä |
|---|
Kartalla
Ota yhteyttä kohteesta
Kohteen tiedot
Uusikatu 58, 90100 Oulu
Välittäjä:
Sami Kortesoja
Välittäjän numero:
045 896 4803
Toimipiste:
Lumijoentie 1, 90400 Oulu