Aleksanterinkatu 31, 33100 Tampere

Toimistotila

67㎡

Tampere, Keskusta

Vapautuu 01.03.2026

Kulmassa sijaitseva liiketila erinomaisella näkyvyydellä vapaana

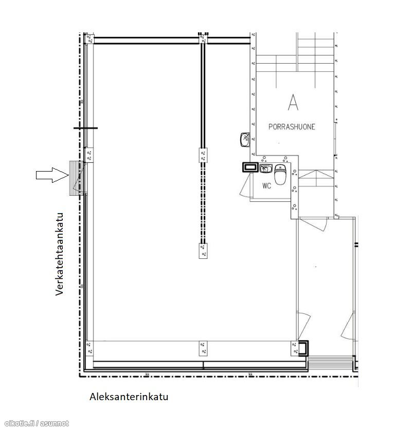
Aleksanterinkadun ja Verkatehtaankadun kulmassa, Pizzeria Napolin naapurissa, liiketila vapaana.
Erinomaisen hyvä näkyvyys useasta suunnasta. Liiketila sijaitsee vilkkaasti liikennöidyssä risteyksessä. Vieressä suosittu Napoli, jonne jonottaessaan ihmiset eivät voi olla huomaamatta tätä.

Sisäänkäynti Verkatehtaan puolelta jalkakäytävältä ja toinen sisäänkäynti rapusta, Napolin sisäänkäyntiovea vastapäätä.
Suuret lähes koko tilan korkuiset ikkunat kahteen suuntaan. Tila avaraa, jossa kevytrakenteinen seinä. Lisäksi pieni wc. Tilaa ollaan valmiita yhteisesti vuokralaisen kanssa suunniteltaessa remontoimaan ja muokkaamaan toimintaan sopivaksi.

Vuokran määrästä neuvotellaan.
Tämä pitää nähdä omin silmin!

Ota yhteyttä: jani.kaisto@kiinteistotahkola.fi, p. 040 960 6424

Sijainti Aleksanterinkatu 31, 33100 Tampere
Kaupunginosa Keskusta
Asuinpinta-ala 67 m²
Huoneiston kokoonpano Toimistotila
Kerros 1
Vapautuu 01.03.2026
Parveke Ei
Asunnossa sauna Ei
Muut ehdot Vuokranmaksupäivä kk:n 2. päivä
Tilan pinta-ala 67m2
Asumistyyppi Liikekiinteistövaihto

Takuuvuokra sovitaan
Vesimaksu (teksti) Laskutetaan kulutuksen mukaisesti.

Uudiskohde Ei
Valmistumisvuosi 1959
Kerroksia 7
Hissi Ei
Taloyhtiössä on sauna Ei
Energiatodistus Ei
Lisätietoja lämmityksestä K

Pysäköintimaksu Ei

Kartalla

Ota yhteyttä kohteesta

Kohteen tiedot

Aleksanterinkatu 31, 33100 Tampere
Välittäjä: Jani Kaisto
Välittäjän numero: 040 960 6424
Toimipiste: Kuokkamaantie 4, 33800 Tampere
Yhteydenoton aihe

Vuokrattavat toimitilat