Huhta 5D B 42, 40340 Jyväskylä

560€ / kk

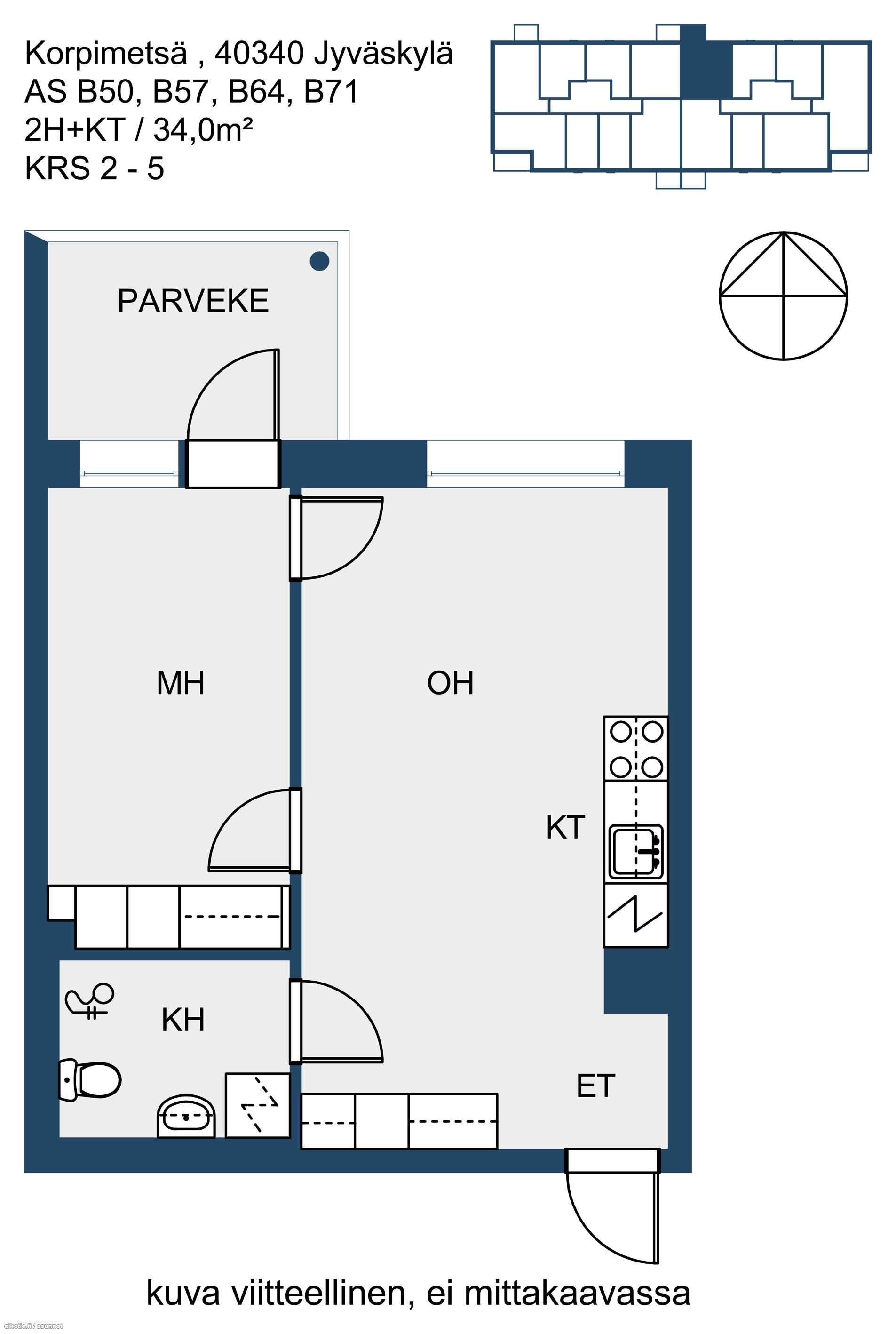
2h+kt+parv.

34㎡

Jyväskylä, Kangasvuori

Hei vapaana uudelle asukkaalle tilava ja viihtyisä yksiö lasitetulla parvekkeella.

Asunnon lattiat laminaattia, seinät maalipinnoin ja kylpyhuone laatoitettu. Keittiötilassa on yhdistetty jääkaappi ja pakastin, astianpesukone sekä liesi. Pesuhuoneeseen mahtuu hyvin pyykinpesukone. Ikkunoissa sälekaihtimet. Asunnossa on kaukolämpö ja vesikiertoinen lattialämmitys. As Oy Jyväskylän Aarnimetsä valmistui vuonna 2020 rauhalliselle asuinalueelle hyvien kulkuyhteyksien varteen. Lähikauppa Sale sijaitsee vain parinsadan metrin kävelymatkan päässä. Aivan vierestä löytyy Huhtasuon yhtenäiskoulu ja päiväkoti sekä terveysasema. Noin kilometrin päästä löytyvät Seppälän ja kauppakeskus Seppä. Yhteydet Jyväskylän keskustaan ovat myös hyvät. Matkaa keskustaan on noin viisi kilometriä, jonne myös pääsee hyvin julkisilla.

Alueella on todella hyvät harrastusmahdollisuudet! Huhtasuon liikuntapuisto monipuolisine pallopelimahdollisuuksineen sijaitsee muutaman sadan metrin päässä. Kerrostalon viereisestä metsästä löytyy Frisbeegolf -rata. Myös Kangasvuoren luontopolulle pääsee lenkkeilemään ja retkeilemään helposti.

Lisäksi tämän taloyhtiön asukkaana sinulla on käytössäsi yhtiön parkkipaikalta löytyvä Omago -yhteiskäyttöauto. Käyttömaksu asukkaille on: 8 €/h + 0,14 €/km (tai yli 7 tunnin varauksissa 60 € / vuorokausi + 0,14 €/km). Käyttö tapahtuu sovelluksella, jonka kautta voit varata auton käyttöösi haluamaasi ajankohtaan. Autona toimii näppärän kokoinen Toyota Yaris.

– Vakuus 300€
– Vesiennakko 22€/hlö/kk
– Mediamaksu 7,90€/kk, sisältää kaapeli-TV:n peruskanavat ja 10M laajakaistan (valokuitu löytyy myös)
– Mahdollista vuokrata lämpötolpallinen autopaikka hintaan 25€/kk.
– Vuokralainen tekee oman sähkösopimuksen ja ottaa laajan kotivakuutuksen
– Vuokraan sisältyy irtainvarasto ja lämmitys
– Vuokralaiselta vaaditaan puhtaat luottotiedot
– Lemmikit ovat asuntoon tervetulleita!

Ota yhteyttä, kysy lisätietoja ja sovi näytöstä.

Mikäli olet kiinnostunut vuokraamaan asunnon kuvien perusteella, voit täyttää asuntohakemuksen osoitteessa: https://kiinteistotahkola.fi/vuokra-asuntohakemus/

Sijainti Huhta 5D B 42, 40340 Jyväskylä
Kaupunginosa Kangasvuori
Asuinpinta-ala 34 m²
Huoneiston kokoonpano 2h+kt+parv.
Huoneita 2
Kerros 1
Kunto Erinomainen
Parveke Kyllä
Asunnossa sauna Ei
Muut ehdot Vuokranmaksupäivä kk:n 5. päivä
Tilan pinta-ala 34m2
Asumistyyppi Vuokra

Vuokra 560€ / kk
Takuuvuokra 300€
Vesimaksu (teksti) Laskutetaan kulutuksen mukaisesti.Vesimaksuennakko 22,00 €.

Uudiskohde Ei
Valmistumisvuosi 2020
Talon tyyppi Kerrostalo
Kerroksia 5
Hissi Kyllä
Taloyhtiössä on sauna Ei
Energialuokka B2013
Energiatodistus Kyllä
Lisätietoja lämmityksestä K
Isännöinti Kiinteistö-Tahkola Jyväskylä Oy

Pysäköintimaksu Kyllä

Kartalla

Ota yhteyttä kohteesta

Kohteen tiedot

Huhta 5D B 42, 40340 Jyväskylä
Välittäjä: Niko Taimiaho
Välittäjän numero: 0447258301
Toimipiste: Vapaaherrantie 2 A, 40100 Jyväskylä
Yhteydenoton aihe

Vuokrattavat asunnot