Lipporannantie 5, 90500 Oulu

49 229€

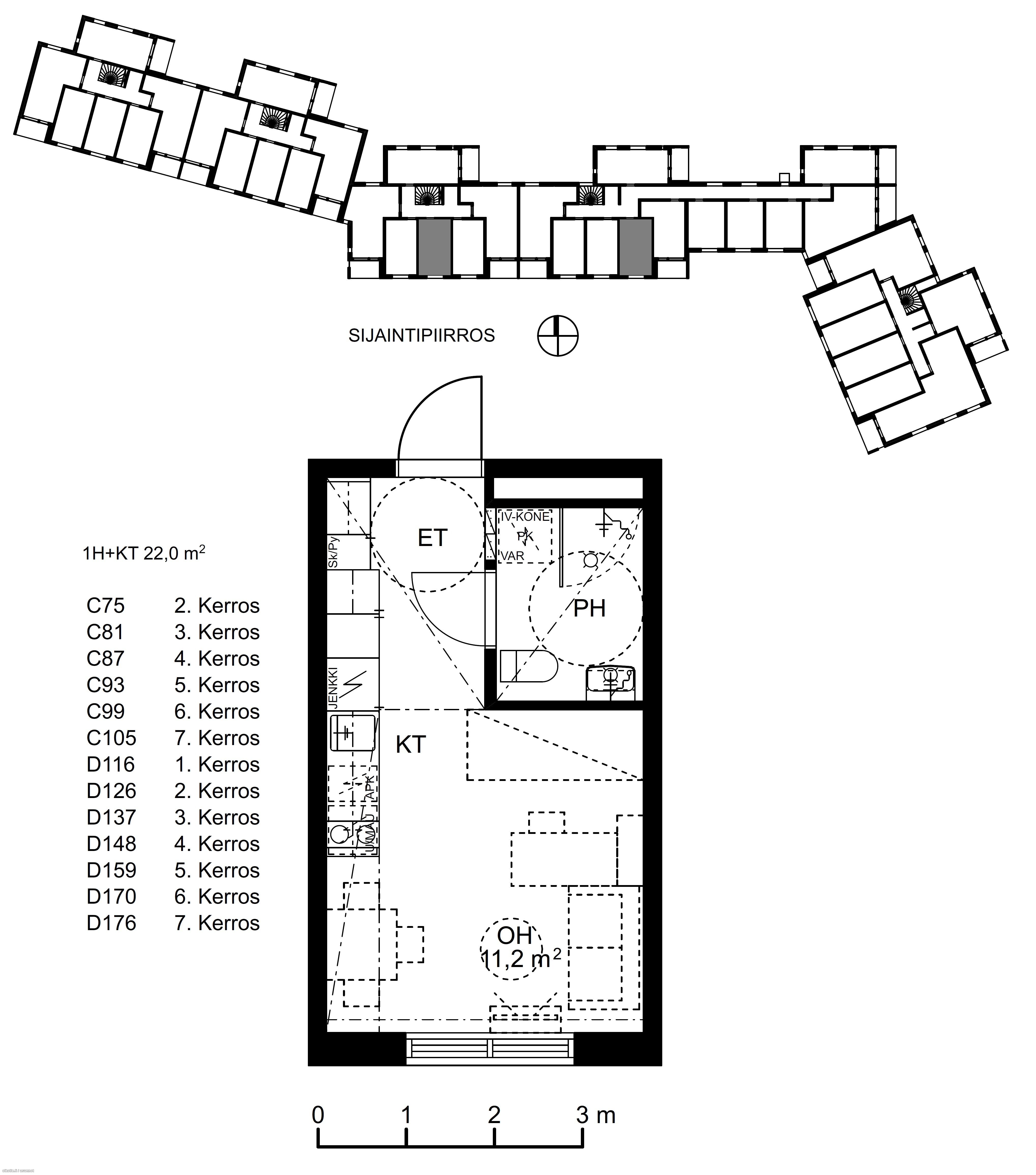
1h,kt,kh

22㎡

Oulu, Tuira

Nyt hyvällä tuotolla positiivisen kassavirran kohde tarjolla uudelle omistajalle. Vuokratuotto 5,4 % ja kassavirta 159 €/kk ennen veroja.

Alueen ympäristö tarjoaa toimivat ulkoilu- ja pyöräilyreitit sekä mahtavat merelliset maisemat Nallikarin hiekkarantoineen. Uusi kesällä valmistunut asuntomessualue tuo kivan säväyksen lähiympäristöön.

Asukkaiden käytössä on oman kodin tilojen lisäksi ainutlaatuinen Kotikatu365 -konsepti eli 500 lisäneliötä yhteiskäyttötiloja, lainattavia työkaluja, yhteiskäyttöauto, -pyörä ja -vene, päivän lehdet ja paljon muuta! Yhteistiloja ovat tasokas kuntosali, olohuone ja leikkihuone, saunatilat sekä vieraiden käyttöön on vuokrattavissa asunto sekä erillinen vierashuone. Lipporannan Taimenen tiloissa on myös sauna ja pesutupa.

Lipporannassa asuu lähellä kaikkea, mutta rauhallisella paikalla. Ruokakauppa, taloyhtiön oma kuntosali ja terveyspalvelut löytyvät kävelyetäisyydeltä, pyörällä pääsee joka suuntaan ja vierestä menee hyvät bussiyhteydet mm. keskustan, Linnanmaan korkeakoulukampuksen ja Haukiputaan suuntaan.

Asunto myydään vuokrattuna, vuokra on 557,80 €/kk sisältäen yhteiskäyttömaksun. Kysy valmiit tuotto- ja kassavirtalaskelmat!

Asuntomessualue ja uusi Hartaanselän silta eivät näy ilmakuvissa, jotka otettu vuosi sitten kesällä.

Kysy lisää, sovi esittely asuntoon tai etänä!

Henri Huotari, LKV
040 541 8854
henri.huotari@kiinteistotahkola.fi

Sijainti Lipporannantie 5, 90500 Oulu
Kaupunginosa Tuira
Asuinpinta-ala 22 m²
Kokonaispinta-ala 22m2
Pinta-alojen lisätiedot Yhtiöjärjestyksen mukainen, Isännöitsijäntodistuksen mukainen
Huoneiston kokoonpano 1h,kt,kh
Huoneita 1
Kerros 4
Kunto Erinomainen
Parveke Ei
Tulevat remontit

Seuraavia toimenpiteitä sunniteltu kunnossapitotarveselvityksessä:
2026 Lukituksen päivitys (ulko-ovet)
2027 Salaojien, sadevesijärjestelmien ja tonttiliittymän kuvaus
2028 Pohjaviemäreiden ja viemärijärjestelmän pistotarkastus
2031 IV-kanavien puhdistus ja ilmamäärien säätö

Tehdyt remontit

2023 Lämmityksen tasapainotus (kuului rakentamisurakkaan)
2023 Vuositarkastuksen ennakkotarkastus

Asunnossa sauna Ei
Tilan pinta-ala 22m2
Asumistyyppi Omistus
Kohde on Osakehuoneisto

Myyntihinta 49 229 €
Neliöhinta 4 268.18 € /m²
Velaton hinta 93 900€
Rahoitusvastike 273.46€ / kk
Hoitovastike 105.6€ / kk
Yhtiövastike yhteensä 398.72€ / kk
Vesimaksu (teksti) Kulutuksen mukaan, ennakkomaksu. 20 € / hlö / kk
Muut kustannukset Erityisvastike: 19,66 € / kk. Hoitovastike A, 105,60 €/kk, Hoitovastike B, yhteistilat 17,76 €/kk ja mediavastike1,90 €/kk. Rahoitusvastike 1.12.2025 alkaen 12,43 €/m2, yhteensä 273,46 €/kk. Rahoitusvastike sisältää yhtiölainalyhennykset.

Uudiskohde Ei
Valmistumisvuosi 2022
Talon tyyppi Kerrostalo
Kerroksia 7
Hissi Kyllä
Taloyhtiössä on sauna Kyllä
Energialuokka B2018
Energiatodistus Ei
Lisätietoja lämmityksestä Lämmitystapa: Kaukolämpö. Lämmönjakotapa: Vesikiertoinen patterilämmitys
Isännöinti Isännöintipalvelu Terwa Oy, helena@terwaisannointi.fi, 0447448693
Taloyhtiön nimi Asunto Oy Lipporannan Taimen, Oulu
Rakennusmateriaali Pääasiallinen rakennusmateriaali: Betoni
Kattotyyppi Harjakatto
Kattomateriaali Kuparikate
Tontin omistus Vuokrattu
Onko osuus lunastettavissa Ei
Tontin koko 6103m2
Maan vuokraaja Oulun Kaupunki
Kiinteistön hoito Huoltoyhtiö. Huoltia Oy
Kaavoitustiedot Asemakaava

Kartalla

Ota yhteyttä kohteesta

Kohteen tiedot

Lipporannantie 5, 90500 Oulu
Välittäjä: Henri Huotari
Välittäjän numero: +358405418854
Toimipiste: Lumijoentie 1, 90400 Oulu
Yhteydenoton aihe

Myytävät asunnot