Lipporannantie 5, 90500 Oulu

660€ / kk

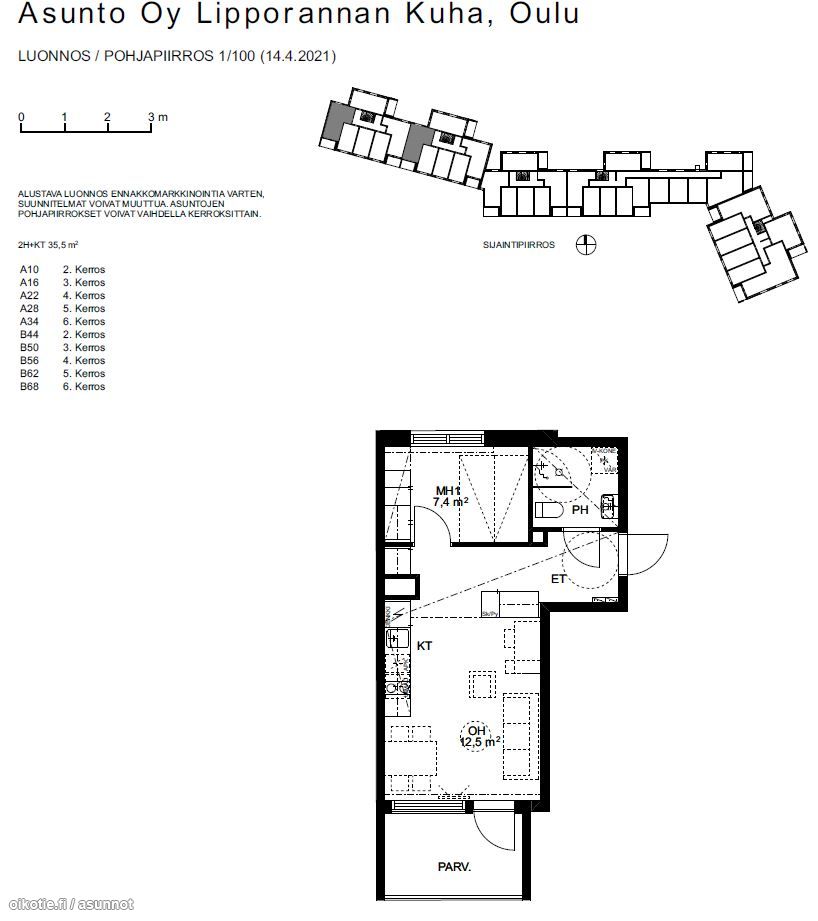
2h,kt,kh,las.parv.

35.5㎡

Oulu, Toppilansalmi

Vapautuu 01.01.2026

Hartaanselän ja meren läheisyys luovat viihtyisät puitteet laadukkaalle asumiselle kaupungin parhaimmilla paikoilla, modernilla uudella asuin alueella Länsi-Tuirassa. Tästä on hyvät kävely- ja pyörätiet kaupungin keskustaan, torille tai Toppilansaaren ulkoilu- ja virkistysalueelle. Löytyy luonnonläheisiä reittejä kävelysiltoineen ja vesistöineen.

Tämän kuudennen (6/6) kerroksen kivan kaksion sisustusmateriaalit ovat tyylikästä vaaleaa värimaailmaa, valkoiset maalatut seinät ja lattiat laminaattia. Keittiötilasta löytyy nykyaikainen koneistus, jenkkikaappi, keraaminen liesi ja astianpesukone. Kaakeloidussa kylpyhuoneessa on paikka omalle pyykkikoneelle. Lasitettu parveke lisää asumismukavuutta!

Kotikatu365 tarjoaa asukkaiden käyttöön noin 500 m2 yhteistilat, josta löytyvät mm olohuone, vierashuone, kuntosali, kokous- ja juhlatila, saunatilat, leikki- ja pelitila, it-työpisteet, seurusteluhuone ja aulatilat. Yhteiskäyttövälineet mm yhteiskäyttöauto, lainattavat polkupyörät, vene yms. Täällä voit lukaista päivän lehden, järjestää juhlat tai viettää aikaa seurustellen. Myös asukkaiden vieraat voivat majoittua yhteistilojen vierashuoneeseen. Palvelut kuuluu pääosin 17,76€/kk yhteispalvelumaksuun, joka maksetaan vuokran lisäksi, osasta palveluista peritään erilliskorvaus käytön mukaan.

HUOM! Asunnon kuvat vastaavanlaisesta asunnosta suuntaa antamaan. Pohjakuva juuri tästä asunnosta.

Tämä asunto vapautuu sopimuksen mukaan jo joulukuun 6 pv jälkeen.

– Vuokra 660€/kk
– Vakuus 660€
– Vesimaksuennakko 20€/hlö/kk
– Yhteispalvelumaksu 17,76€/kk
– Vuokraan sisältyy lämmitys ja taloyhtiölaajakaista
– Vuokralainen tekee oman käyttösähkösopimuksen sekä ottaa laajan kotivakuutuksen
– Luottotiedot tarkistetaan

Jätä yhteydenottopyyntö tai soita arkisin klo 9-16.30 ja pääse ihastelemaan tätä kotia paikan päälle.

Sijainti Lipporannantie 5, 90500 Oulu
Kaupunginosa Toppilansalmi
Asuinpinta-ala 35.5 m²
Huoneiston kokoonpano 2h,kt,kh,las.parv.
Huoneita 2
Kerros 6
Vapautuu 01.01.2026
Kunto Erinomainen
Parveke Kyllä
Asunnossa sauna Ei
Muut ehdot Vuokranmaksupäivä kk:n 5. päivä
Tilan pinta-ala 35.5m2
Asumistyyppi Vuokra

Vuokra 660€ / kk
Takuuvuokra 1kk:n vuokran suuruinen
Vesimaksu (teksti) Laskutetaan kulutuksen mukaisesti.Vesimaksuennakko 20,00 €.

Uudiskohde Ei
Valmistumisvuosi 2022
Talon tyyppi Kerrostalo
Kerroksia 6
Hissi Kyllä
Taloyhtiössä on sauna Kyllä
Energialuokka B2018
Energiatodistus Kyllä
Lisätietoja lämmityksestä K
Isännöinti Kiinteistötahkola

Pysäköintimaksu Ei

Kartalla

Ota yhteyttä kohteesta

Kohteen tiedot

Lipporannantie 5, 90500 Oulu
Välittäjä: Jarmo Lepistö
Välittäjän numero: 040 6734433
Toimipiste: Lumijoentie 1, 90400 Oulu
Yhteydenoton aihe

Vuokrattavat asunnot