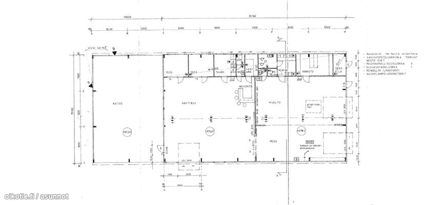
Hyvinkäällä hallitilaa vuokrattavana n.350m2 (sisältää toimisto ja hallitilaa).
– Sisätilaa n.200m2
– Katostilaa n.150m2
– Runsaasti pihatilaa
Lisätiedot: Sampo Ylikulju 040 354 1771 / sampo.ylikulju@kiinteistotahkola.fi tai
Jesse Kaskisuo 0400 760 900 / jesse.kaskisuo@kiinteistotahkola.fi
| Sijainti | Avainkierto 11, 05840 Hyvinkää |
|---|---|
| Kaupunginosa | Veikkari |
| Asuinpinta-ala | 350 m² |
| Parveke | Ei |
| Asunnossa sauna | Ei |
| Muut ehdot | Vuokranmaksupäivä kk:n 5. päivä |
| Tilan pinta-ala | 350m2 |
| Asumistyyppi | Liikekiinteistövaihto |
| Takuuvuokra | 1kk:n vuokran suuruinen |
|---|
| Uudiskohde | Ei |
|---|---|
| Hissi | Ei |
| Taloyhtiössä on sauna | Ei |
| Energiatodistus | Ei |
| Lisätietoja lämmityksestä | K |
| Pysäköintimaksu | Ei |
|---|
Kartalla
Ota yhteyttä kohteesta
Kohteen tiedot
Avainkierto 11, 05840 Hyvinkää
Välittäjä:
Sampo Ylikulju
Välittäjän numero:
040 354 1771
Toimipiste:
Itälahdenkatu 15-17, 00210 Helsinki