Voimatie 6, 90440 Kempele

Laadukasta toimistotilaa

481㎡

Kempele, Kempele

Vuokrattavana laadukasta toimistotilaa Kempeleessä!

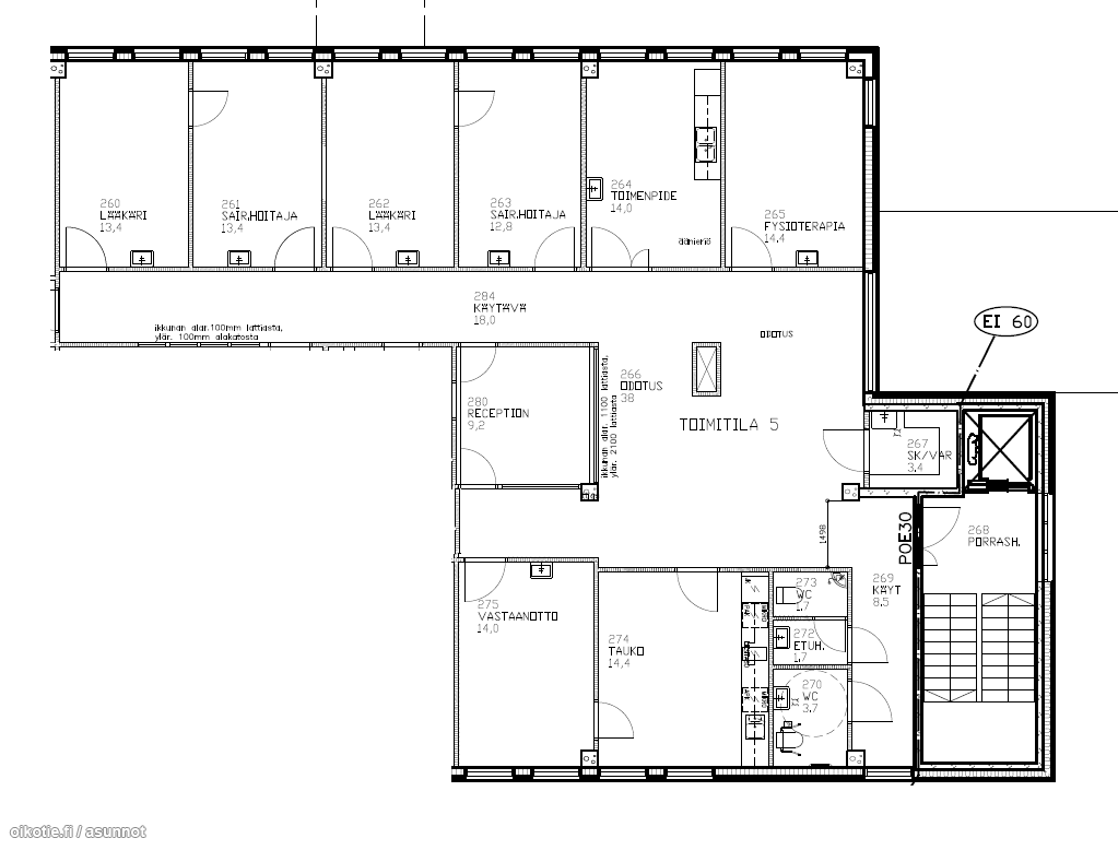
Remontoidut ja jäähdytyksellä varustetut tilat on toteutettu laadukkailla sisustusmateriaaleilla. Vuokrattavaa tilaa on 2. kerroksessa 218m2 ja 3. kerroksessa 263m2.
Tiloissa on useita eri kokoisia huoneita ja osittain avotilaa. Tilamuutoksista ja pintojen päivittämisestä voidaan neuvotella.

Kohde sijaitsee moottoritien varressa Kempeleessä, joten valomainoksella saat yrityksellesi näkyvyyden moottoritielle. Talolla on oma iso parkkipaikka ja alakerrassa pidetty lounasravintola.
Vuokra 17€/m2 +alv sis. lämmityksen, sähkön, veden, jätehuollon ja kulunvalvonnan. Autopaikkoja on runsaasti vuokrattavana, myös sähköautoilijoille.

Lisätiedot 040 5400 672 tai joni.romppainen@kiinteistotahkola.fi.

Eikö tämä ole sopiva? Kysy muita vaihtoehtojamme!

Sijainti Voimatie 6, 90440 Kempele
Kaupunginosa Kempele
Asuinpinta-ala 481 m²
Huoneiston kokoonpano Laadukasta toimistotilaa
Kerros 2
Kunto Erinomainen
Parveke Ei
Asunnossa sauna Ei
Muut ehdot Vuokranmaksupäivä kk:n 5. päivä
Tilan pinta-ala 481m2
Asumistyyppi Liikekiinteistövaihto

Takuuvuokra sopimuksen mukaan

Uudiskohde Ei
Kerroksia 3
Hissi Kyllä
Taloyhtiössä on sauna Ei
Energiatodistus Ei
Lisätietoja lämmityksestä K

Pysäköintimaksu Kyllä

Kartalla

Ota yhteyttä kohteesta

Kohteen tiedot

Voimatie 6, 90440 Kempele
Välittäjä: Joni Romppainen
Välittäjän numero: 0405400672
Toimipiste: Lumijoentie 1, 90400 Oulu
Yhteydenoton aihe

Vuokrattavat toimitilat