Vihiluodontie 261, 90440 Kempele

1400€ / kk

Siistiä toimistotilaa

108㎡

Kempele, Vihiluoto

Lentokentäntien varresta, näkyvältä paikalta siistiä toimistotilaa.

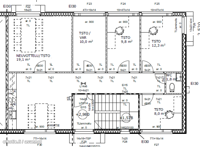
Jäähdytetty toimistotila on talon 108m2 toisessa kerroksessa. Tila koostuu neljästä erillisestä toimistohuoneesta jonka lisäksi on iso neukkari. Hyvin varustellun keittiön yhteydessä on mukavasti avotilaa. Talo on maalämmössä ja lämmitys sekä vesi kuuluu vuokraan. Käyttösähköstä maksetaan kulutuksen mukaan. Autopaikkoja löytyy noin 5kpl pihalta, ja vierailijoille on autopaikkoja.

Sijainti on Suomen toiseksi vilkkaimmalle lentokentälle johtavan tien varressa. Paikalle on helppo tulla ja yrityksesi saa hyvän näkyvyyden. Kulkuyhteydet ovat erinomaiset, sillä Oulun keskustaan ajaa vartissa, lentokentälle alle 10 minuutissa sekä hyvä bussiyhteys kulkee edestä. Tällä kehittyvällä alueella toimii paljon yrityksiä, lounaspaikkoja on lähellä ja lentokenttähotelli 500m päässä.

Lisätiedot 040 5400 672 tai joni.romppainen@kiinteistotahkola.fi.

Eikö tämä ole sopiva? Kysy muita vaihtoehtojamme!

Sijainti Vihiluodontie 261, 90440 Kempele
Kaupunginosa Vihiluoto
Asuinpinta-ala 108 m²
Huoneiston kokoonpano Siistiä toimistotilaa
Kerros 2
Kunto Erinomainen
Parveke Ei
Asunnossa sauna Ei
Muut ehdot Vuokranmaksupäivä kk:n 5. päivä
Tilan pinta-ala 108m2
Asumistyyppi Liikekiinteistövaihto

Vuokra 1400€ / kk
Takuuvuokra sopimuksen mukaan

Uudiskohde Kyllä
Valmistumisvuosi 2021
Kerroksia 2
Hissi Ei
Taloyhtiössä on sauna Ei
Energiatodistus Ei
Lisätietoja lämmityksestä K

Pysäköintimaksu Kyllä

Kartalla

Ota yhteyttä kohteesta

Kohteen tiedot

Vihiluodontie 261, 90440 Kempele
Välittäjä: Joni Romppainen
Välittäjän numero: 0405400672
Toimipiste: Lumijoentie 1, 90400 Oulu
Yhteydenoton aihe

Vuokrattavat toimitilat